

CDH1 MP3 12570200A1XB1CGEMWW重载型液压缸设计【液压油缸设计】
作品包括:
Word版设计说明书1份,共33页
CAD版本图纸,共11张
摘要
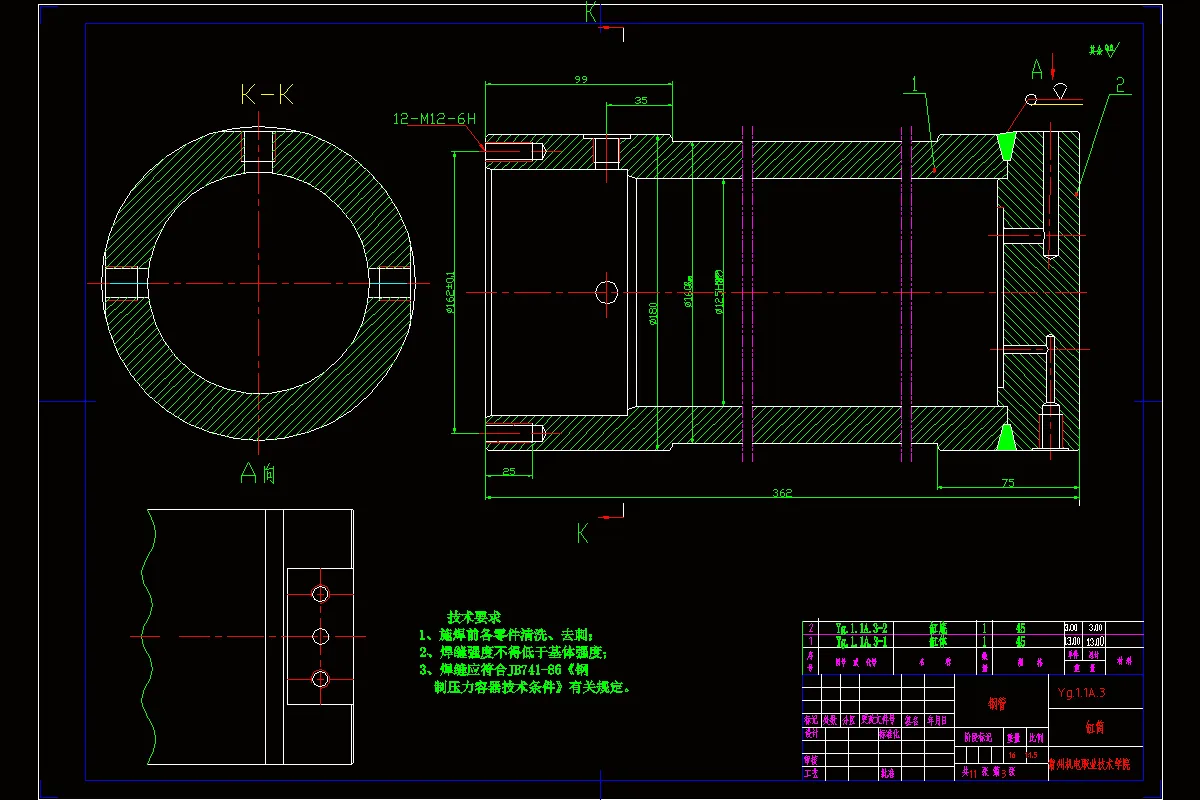
油缸是最常见的液压元件,可靠性是指系统不因意外的原因而无法工作(如油管破裂、无电等情况)。可维护性是指系统尽可能简单,元件尽可能选标准件,结构上尽可能使维护方便安全性是指不因液压缸的故障导致后车厢盖的其它事故效率是指液压缸的各种能量损失尽可能的小。上述要求中,除满足系统的动力要求外,最重要的是保证系统的安全性和可靠性。关键词:液压缸,油缸
温馨提示:
1、题目前面的备注【字母数字编号】为本站整理分类的编号,与课题内容无关,请选题时忽视;
2、若题目上备注三维,则表示文件里包含三维源文件,由于三维组成零件数量较多,为保证预览截图的简洁性,本站将三维文件夹进行了打包。三维及CAD预览截图,均为本站电脑打开软件进行截图的,保证能够打开,下载原件超高清,下载后解压即可;
3、本站所有资源如无特殊说明,都需要本地电脑安装Office2007。图纸软件为AutoCAD,PROE,UG,SolidWorks,CATIA等;
4、本站所有图文资料仅供用户学习参考,不作为任何商用或其他用途;
5、本站不保证下载资源的准确性、安全性和完整性, 不包修改,不支持退换,同时也不承担用户因使用这些下载资源对自己和他人造成任何形式的伤害或损失;
6、 下载文件中如有侵权或不适当内容,请与我们联系,我们立即纠正。