

作品包括:
Word版说明书1份,共37页,约15000字
开题报告一份
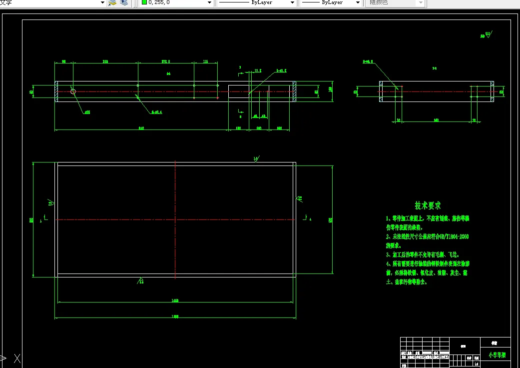
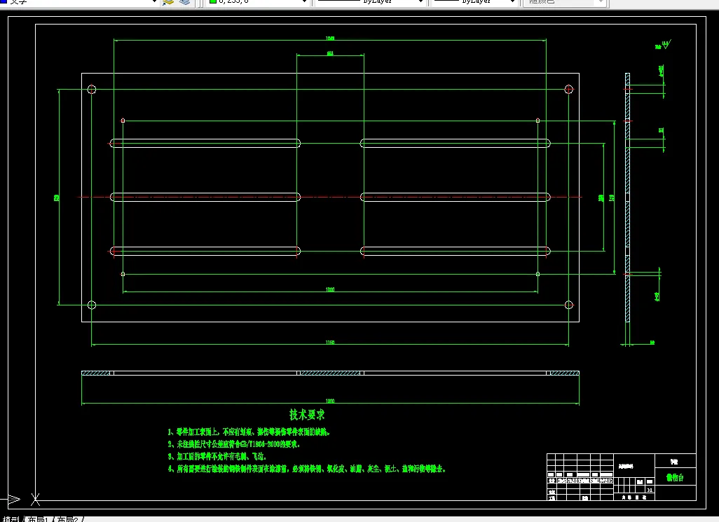
CAD版本图纸,共12张
SW三维图一套
![1744504826990154.webp 1@X71IUN(E2T(TS4SSV][ZD.webp](/static/upload/image/20250413/1744504826990154.webp)
摘要
进来的生产制造上,很多的便捷式的搬运上采用自动化的搬运设备,实现了机器人结构形式的搬运工具代替人工搬运的过程。本次设计的《小型履带式搬运车设计》针对现代搬运作业的特殊需求,提出了一种小型履带式搬运车的设计方案。基于国内外履带车辆技术的发展现状,论文深入研究了履带传动结构设计的重要性,并通过详尽的计算分析,构建了一套适应复杂地形的高效传动系统。在动力运动设计方面,综合考虑了承载能力、动力性能和能耗,以实现搬运作业的高效与节能。借助现代仿真技术,论文对履带运动进行了模拟仿真,验证了设计的合理性与可行性。在工业生产领域,很多的自动化的设备被应用在生产制造上,实现了在物料自动化的搬运运输,实现了生产过程中的便捷性。其主要的设计优势是在对批量的零件或者物料实现在生产制造上自动搬运的效果,对人工搬运的改变并实现自动化的搬运作用,更好更快的实现工作的效率和达到工作效率提升。实现更好的提高生产的效率,降低人工劳动的工作强度,减少人工在搬运生产上的误伤,更好提高加工生产的质量。在本次的小型履带式搬运车设计的设计中,对不同方向上的履带运行行走的机构进行确定,选择合适的电机进行推拉动力的提供,实现对物料进行自动化搬运的工作过程。完成小型履带式搬运车设计的结构设计,绘制三维结构总成,导出并完成二维结构总体的设计,绘制关键零部件的生产制造加工图纸。
确认了搬运车在不同工况下的稳定性和可靠性,此外,论文还探讨了搬运车在物流、农业、建筑等领域的应用潜力,并对未来设计的优化方向进行了展望。本文的研究成果为小型履带式搬运车的工程应用提供了理论支持和技术参考。
关键词:履带;链传动;动力运动;运动仿真;搬运车应用
目 录
小型履带式搬运车设计 I
目 录 I
小型履带式搬运车设计 III
摘 要 III
Abstract IV
第一章 绪论 1
1.1 课题研究的意义和目的 1
1.1.1 课题研究的背景 1
1.1.2 研究目的 1
1.1.3 研究意义 2
1.2 国内外发展现状 3
1.2.1 国内发展现状 3
1.2.2 国外发展现状 4
1.3课题研究的主要内容 5
第二章 履带传动结构设计 7
2.1 搬运车的原理及设计要求 7
2.1.1 履带车的原理 8
2.1.2 设计关键要素 8
2.1.3设计参数要求 9
2.2 履带结构及内张紧结构设计 9
2.3传动效率与优化 9
2.3.1 传动效率分析 9
2.3.2 优化策略 10
2.4 车架机构传动系统 10
第三章 动力运动设计 12
3.1 引擎选型 12
3.1.1 电机性能参数确定 12
3.1.2电机的选型 13
3.1.3 电机的安装设计 13
3.2传动系统的设计 14
3.2.1传动系统的方案 14
3.2.2传动效率机构的确定 16
3.3运动仿真的设计 16
3.3.1动力学模型 17
3.3.2仿真软件与参数设定 17
3.3.3仿真流程与步骤 17
第四章 关键部件的计算校核 19
4.1导轨滑块组件的计算校核 19
4.2电机减速器设计计算 20
4.3轴承寿命校核 23
4.3.1 轴承类型选择 23
4.3.2 轴承的寿命计算 23
4.4链传动的计算 25
4.4.1选择传动链轮的精度等级 25
4.4.2传动链轮的计算 25
4.4.3按机齿根弯曲强度设计 27
4.5链轮轴的计算 27
结 论 29
参考文献 30
致谢 31
温馨提示:
1、题目前面的备注【字母数字编号】为本站整理分类的编号,与课题内容无关,请选题时忽视;
2、若题目上备注三维,则表示文件里包含三维源文件,由于三维组成零件数量较多,为保证预览截图的简洁性,本站将三维文件夹进行了打包。三维及CAD预览截图,均为本站电脑打开软件进行截图的,保证能够打开,下载原件超高清,下载后解压即可;
3、本站所有资源如无特殊说明,都需要本地电脑安装Office2007。图纸软件为AutoCAD,PROE,UG,SolidWorks,CATIA等;
4、本站所有图文资料仅供用户学习参考,不作为任何商用或其他用途;
5、本站不保证下载资源的准确性、安全性和完整性, 不包修改,不支持退换,同时也不承担用户因使用这些下载资源对自己和他人造成任何形式的伤害或损失;
6、 下载文件中如有侵权或不适当内容,请与我们联系,我们立即纠正。