

作品包括:
Word版设计说明书1份,共35页,约10000字
任务书一份
外文翻译一份
CAD版本图纸,共7张
SW三维图一份

摘要
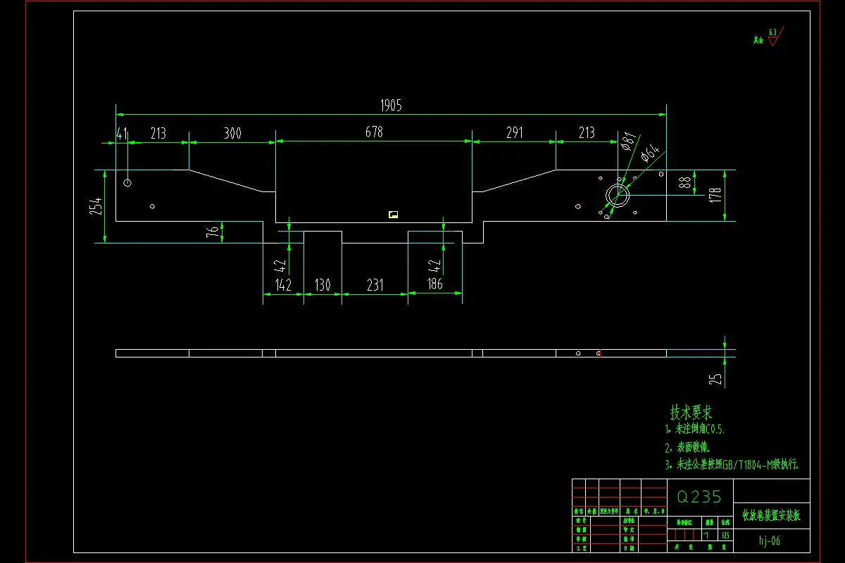
本文详细介绍了运用SolidWorks软件(3D 机械设计软件的标准)进行凹印实验台收放卷装置及调整机构的设计。由于SolidWorks软件无论对零件设计,还是对整个机构设计都起了一个模拟仿真的作用,在SolidWorks软件中,我们可以直观,清楚地了解整个设计的外形,运作甚至是材料的分析。 借助SolidWorks,将产品更快地投入市场。SolidWorks 提供无与伦比的性能和价值,它是技术创新的领先者,并且还拥有最大的用户群。没有其他CAD 系统可以帮助您快速准确地完成产品设计工作。 本文先对SolidWorks软件作出简介,对此三维软件作出一系列的说明,而后对凹印实验台收放卷装置及调整机构进行介绍,并结合SolidWorks软件,将二者融会贯通。通过SolidWorks软件设计,从二维的AUTOCAD零件图纸,到三维的SolidWorks整个设备,大大地提高了设计的效果和效率,避免了工程师们在现实中出现的错误,切切实实地展现出三维软件的强大性能。
温馨提示:
1、题目前面的备注【字母数字编号】为本站整理分类的编号,与课题内容无关,请选题时忽视;
2、若题目上备注三维,则表示文件里包含三维源文件,由于三维组成零件数量较多,为保证预览截图的简洁性,本站将三维文件夹进行了打包。三维及CAD预览截图,均为本站电脑打开软件进行截图的,保证能够打开,下载原件超高清,下载后解压即可;
3、本站所有资源如无特殊说明,都需要本地电脑安装Office2007。图纸软件为AutoCAD,PROE,UG,SolidWorks,CATIA等;
4、本站所有图文资料仅供用户学习参考,不作为任何商用或其他用途;
5、本站不保证下载资源的准确性、安全性和完整性, 不包修改,不支持退换,同时也不承担用户因使用这些下载资源对自己和他人造成任何形式的伤害或损失;
6、 下载文件中如有侵权或不适当内容,请与我们联系,我们立即纠正。