

作品包括:
Word版设计说明书1份,共42页,约13000字
开题报告一份
PPT答辩一份
CAD版本图纸,共7张
UG三维图一份

摘要
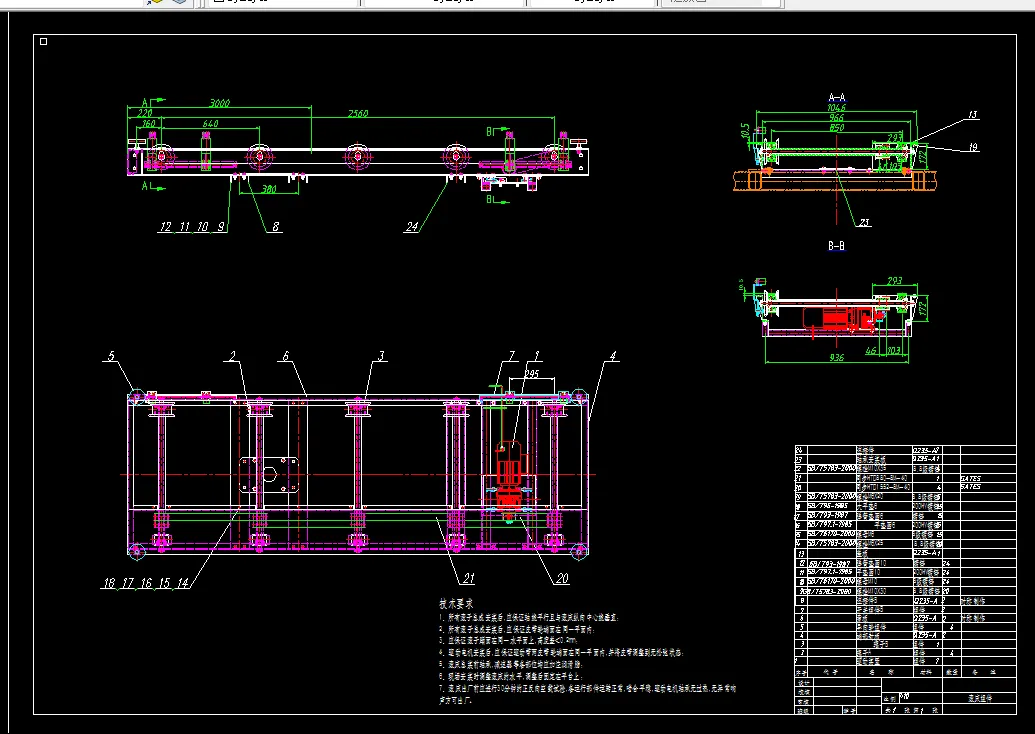
滚床输送线是一种汽车生产装用输送设备,多用在车间物流生产中,工作可靠、传动平稳。而偏心旋转滚床,通过其整体的旋转可以实现工件不同方向的移动,使得滚床输送线的使用范围大大提高。
首先分析偏心旋转滚床的国内外形势,分析其工艺路线,并对主要部件:滚床组件、旋转组件、轨道组件进行设计,再通过三维软件solidworks建立并简化模型。
通过任务书上的设计要求,确定以下参数:额定荷重490Kg,最大荷重1000Kg,线体长度3000mm,辊轮直径125mm,辊轮间距640mm,完成滚床的总体设计,并对其零部件进行选型与参数的计算。
关键词 偏心旋转滚床;减速电机;同步带
目 录
摘要 I
Abstract II
1 绪论 1
1.1偏心旋转滚床的研究背景和意义 1
1.2偏心旋转滚床国内外发展分析 1
1.2.1国内发展分析 1
1.2.2国外发展概述 1
1.3本课题的研究内容和所需解决的问题 2
2 总体方案设计 3
2.1 偏心旋转滚床的市场前景 3
2.2偏心旋转滚床的工艺路线 3
2.3拟定设计参数 3
2.4毕业设计步骤 4
2.5偏心旋转滚床设计方案的选择 5
2.51运输方案的选择 5
2.52 驱动方案的选择 5
2.53比较并确定设计方案 6
3 主要部件设计 7
3.1滚床组件设计 7
3.1.1驱动装置设计 7
3.1.2同步带设计 10
3.1.3辊子的设计 14
3.1.4辊子轴承的设计 14
3.1.5计算各轴的参数 15
3.2旋转组件设计 15
3.2.1旋转电机设计 15
3.2.2 电机驱动轴的设计 17
3.2.3 滚轮轴的选型与参数计算 18
3.2.4开关组件设计 20
3.2.5导向轮设计 21
3.3轨道组件设计 22
3.3. 1轨道的作用和分类 22
3.3.2 轨道应满足的条件 22
3.3.3 轨道的计算 22
3.3.4固定撞块设计 23
3.3.5接触强度的计算 23
4偏心旋转滚床的三维设计 24
4.1 三维软件介绍 24
4.2旋转轴组件的建模 25
4.3轨道的建模 27
4.4旋转电机的建模 30
5小型零件的三维设计 31
5.1小型零件的建模图 31
5.2偏心旋转滚床的运动仿真 34
结论 35
致 谢 36
参考文献 37
温馨提示:
1、题目前面的备注【字母数字编号】为本站整理分类的编号,与课题内容无关,请选题时忽视;
2、若题目上备注三维,则表示文件里包含三维源文件,由于三维组成零件数量较多,为保证预览截图的简洁性,本站将三维文件夹进行了打包。三维及CAD预览截图,均为本站电脑打开软件进行截图的,保证能够打开,下载原件超高清,下载后解压即可;
3、本站所有资源如无特殊说明,都需要本地电脑安装Office2007。图纸软件为AutoCAD,PROE,UG,SolidWorks,CATIA等;
4、本站所有图文资料仅供用户学习参考,不作为任何商用或其他用途;
5、本站不保证下载资源的准确性、安全性和完整性, 不包修改,不支持退换,同时也不承担用户因使用这些下载资源对自己和他人造成任何形式的伤害或损失;
6、 下载文件中如有侵权或不适当内容,请与我们联系,我们立即纠正。