

作品包括:
Word版设计说明书1份,共62页,约16000字
CAD版本图纸,共11张

摘要
通过对分析液压机的国内外生产及研究现状,确定了本课题的主要设计内容。在确定了液压机初步设计方案后,采用了传统设计方法对100T液压机机身结构进行设计计算及强度校核,并采用AutoCAD设计软件对上横梁、底座、拉伸滑块、压边滑块、拉伸缸、压边缸、顶出缸、立柱及总装图进行了工程绘图,且用ug模拟液压机整体结构,在参考了某公司生产的三梁四柱式液压机液压系统以及查阅了有关关于液压系统设计的书籍后,设计了液压系统的工作说明书,并对其进行了可行性分析,最后对整个设计进行系统分析,得出整个设计切实可行。
目录
1绪论..................................................................1
2液压机的主要技术参数3
2.1 YA32─100T四柱万能液压机主要参数3
2.2 YA32─100T四柱万能液压机系统工况图4
3液压基本回路以及控制阀6
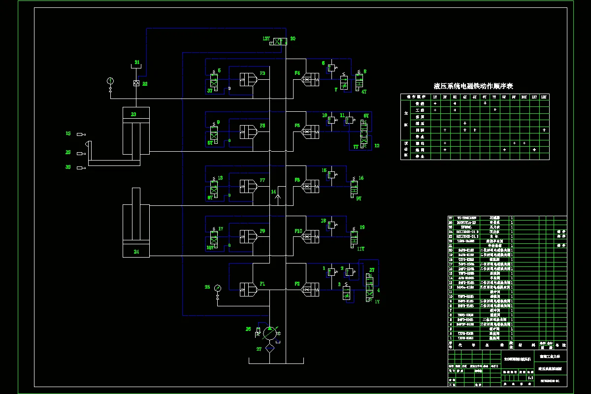
3.1 YA32─100T四柱万能液压机液压系统图6
3.2 YA32─100T四柱万能液压机工作循环图9
4液压缸10
4.1主缸10
4.2主缸活塞杆18
4.3主缸的总效率20
4.4顶出20
4.5顶出缸活塞杆25
4.6顶出缸的总效率26
4.7各油缸工作流量27
4.8液压缸损坏情况及原因分析......................................29
5液压工作介质31
6液压辅助件及液压泵站32
6.1管件32
6.2密封件33
6.3油箱35
6.4过滤器38
6.5立柱导杆38
6.6泵站的组成及工作过程...................................................40
7梁的设计………………………………………………………….…………………….41
7.1横梁的结构设计..................................................41
7.2上梁…………………………………………………………………………………………46
7.3下梁…………………………………………………………………………………………49
8液压系统的安装49
总结50
致谢51
参考文献52
附录……………………………………………………………………………….………53
温馨提示:
1、题目前面的备注【字母数字编号】为本站整理分类的编号,与课题内容无关,请选题时忽视;
2、若题目上备注三维,则表示文件里包含三维源文件,由于三维组成零件数量较多,为保证预览截图的简洁性,本站将三维文件夹进行了打包。三维及CAD预览截图,均为本站电脑打开软件进行截图的,保证能够打开,下载原件超高清,下载后解压即可;
3、本站所有资源如无特殊说明,都需要本地电脑安装Office2007。图纸软件为AutoCAD,PROE,UG,SolidWorks,CATIA等;
4、本站所有图文资料仅供用户学习参考,不作为任何商用或其他用途;
5、本站不保证下载资源的准确性、安全性和完整性, 不包修改,不支持退换,同时也不承担用户因使用这些下载资源对自己和他人造成任何形式的伤害或损失;
6、 下载文件中如有侵权或不适当内容,请与我们联系,我们立即纠正。