

作品包括:
Word版说明书1份,共53页,约22000字
CAD版本图纸,共8张
摘要
毕业设计课题的内容是导弹发动机壳体清洗机的液压系统设计,课题设计的主要目的就是通过液压系统传动来实现对导弹发动机壳体的清洗过程。在导弹发动机壳体清洗过程中,课题所设计的液压系统就需要完成清洗机毛刷的进给、旋转以及工作台的行走动作。
本设计在围绕液压系统设计为中心的基础上,通过对液压缸和液压马达等液压回路的确定,完成了对导弹发动机壳体清洗机液压系统的总体方案设计设计、液压系统设计、液压集成块的设计、液压泵站设计四个主要部分的设计,总体阐述了清洗机的构思和设计过程。
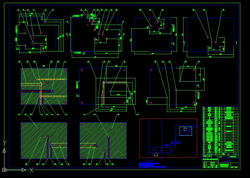
此设计内容又细分为六章,其中第一章主要叙述了导弹发动机壳体清洗机的工作原理以及设计要求;第二章是清洗机总体结构方案的设计,主要包括主机结构的选定、运动副的确定、机架支撑座以及小车运动形式等的确定;第三章的内容是确定液压系统的主要参数,即执行元件的选用、分析、计算、校核以及液压系统图的制定和液压元件的选用等;第四章主要讲述了液压集成块的优缺点和液压集成块的设计;第五章是液压泵站的设计,内容包括了液压泵站结构形式的选择以及液压泵站各种构件的选用等;最后一章讲述了导弹发动机壳体清洗机的操作与维护。
关键词:清洗机、液压系统、集成块、泵站
目录
摘要 1
Abstract 2
第一章 清洗机工作原理设计要求 3
1.1 清洗机工作原理 3
1.2 清洗机的技术要求 3
1.2.1环境要求 3
1.2.2 技术参数 3
1.2.3 特殊要求 4
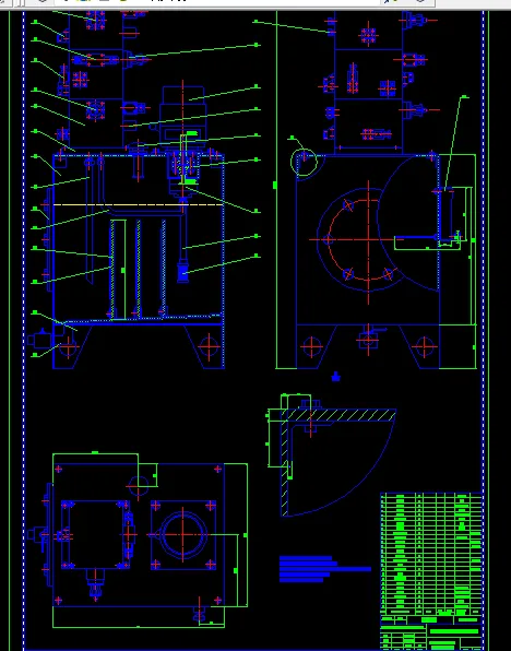
第二章 总体结构方案设计 5
2.1 机架结构的选择 5
2.1.1 机架设计方案一 5
2.1.2 机架设计方案二 6
2.2 垂直运动副的确定 7
2.3 机架支撑座的确定 7
2.4 小车运动形式及导轨的确定 8
2.5 小车顶板结构及夹紧装置的确定 8
2.6 小车结构的确定 8
2.7 进给机构的选择 8
2.8 确定主机机构 9
第三章 液压系统主要参数的确定 10
3.1 壳体清洗机液压系统设计要求及有关设计参数 10
3.1.1 动作对液压新系统的要求 10
3.1.2 给定的液压系统设计参数 10
3.2 执行元件负载特性的分析和计算 10
3.2.1 升降液压缸的载荷力计算 10
3.2.2 行走液压缸的载荷力计算 11
3.2.3 液压马达载荷转矩计算 12
3.3 初选系统工作压力 12
3.4 确定执行元件的主要参数及液压缸壁厚校核 12
3.4.1 计算升降液压缸的主要结构尺寸及校核 12
3.4.2 计算行走液压缸的主要结构尺寸及校核 17
3.4.3 液压马达的计算与选择 22
3.4.4 计算执行元件的实际工作压力 22
3.4.5 计算液压执行元件实际所需流量 23
3.4.6 对液压马达的校核 24
3.5 制定液压系统方案和拟定液压系统图 24
3.5.1 制定液压系统方案 24
3.5.2 拟定液压系统原理图 26
3.6 液压元件的选择和专用件设计 28
3.6.1 液压泵的选择 28
3.6.2 电动机功率的确定 29
3.6.3 液压阀的选择 29
3.6.4 液压系统油路管内径的计算 31
3.6.5 液压系统油箱设计与计算 33
3.7 液压系统性能计算 33
3.7.1 液压系统的压力损失 33
3.7.2 液压系统总效率的估算 35
3.7.3 液压系统发热温升的计算 36
3.7.4 计算液压系统的散热功率 37
第四章 液压集成块的设计 39
4.1 块式集成块的特点 39
4.2 集成块块体结构 39
4.3 集成块结构尺寸的确定 40
第五章 液压泵站的设计 42
5.1 液压泵站的结构形式 42
5.2 液压泵站构件的选择 42
5.2.1 油箱尺寸的选择 42
5.2.2 空气过滤器的选择 43
5.2.3 吸油过滤器的选择 43
5.2.4 电动机的选择 43
5.2.5 联轴器的选择 43
5.2.6 压力表的选择 44
5.2.7 液位仪表的选择 44
5.2.8 压力继电器的选择 44
第六章 发动机壳体清洗机的操作与维护 45
结束语 48
致 谢 49
参考文献 50
温馨提示:
1、题目前面的备注【字母数字编号】为本站整理分类的编号,与课题内容无关,请选题时忽视;
2、若题目上备注三维,则表示文件里包含三维源文件,由于三维组成零件数量较多,为保证预览截图的简洁性,本站将三维文件夹进行了打包。三维及CAD预览截图,均为本站电脑打开软件进行截图的,保证能够打开,下载原件超高清,下载后解压即可;
3、本站所有资源如无特殊说明,都需要本地电脑安装Office2007。图纸软件为AutoCAD,PROE,UG,SolidWorks,CATIA等;
4、本站所有图文资料仅供用户学习参考,不作为任何商用或其他用途;
5、本站不保证下载资源的准确性、安全性和完整性, 不包修改,不支持退换,同时也不承担用户因使用这些下载资源对自己和他人造成任何形式的伤害或损失;
6、 下载文件中如有侵权或不适当内容,请与我们联系,我们立即纠正。