

作品包括:
Word版说明书1份,共42页,约18000字
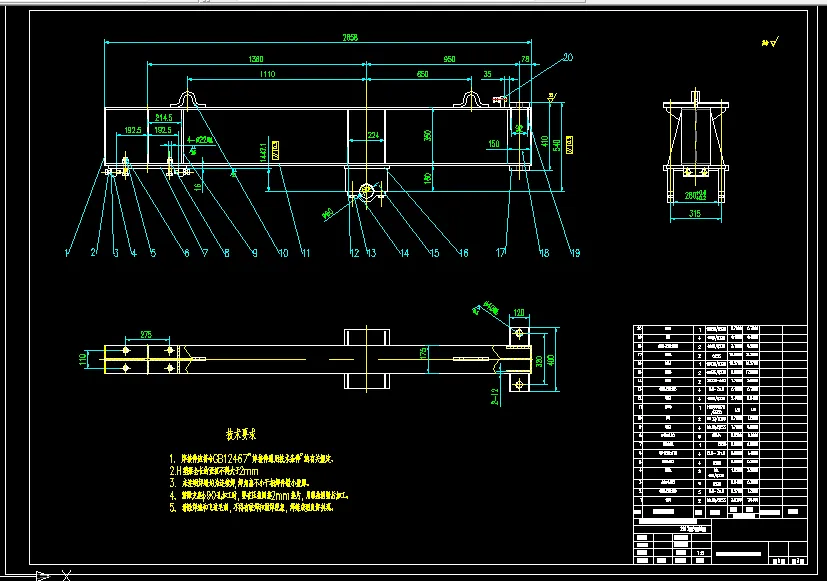
CAD版本图纸,共9张
摘要
目前,由于大多数油田已逐渐丧失自喷能力,我国的油井基本都在使用抽油机进行机械采油。
文章以设计煤层气CYJY3-1.5-9HB抽油机为目的,从较基础的角度比较全面的设计了适用于煤层气气田的抽油机。第一章阐述了国内外抽油机的发展概况;抽油机发展趋势,即大型化、低能耗、高适应性、长冲程无游梁、自动化和智能化;分析了抽油机的工作原理;说明了煤层气专用抽油机的4大特点,以及抽油机针对煤层气气田开采在驱动装置和平衡装置的改进。第二章介绍了CYJY3-1.5-9HB抽油机的设计计算,包括基本参数的确定,驴头悬点载荷P=30kN,悬点冲程长度S=1.5m,悬点的冲程次数N=12/min~1.25次/min,减速器曲柄轴最大允许扭矩M =9kN•m;基本结构组成:驴头、游梁、横梁、连杆、曲柄、减速箱、电机、底座、支架;四杆机构的特点、机械性能、分析及其尺寸的优化设计;使用计算软件进行设计计算并列出分析数据;抽油机的曲柄平衡配种分析;电动机和减速箱的选择。第三章是其他主要零部件V带和悬绳的设计。最后在第四章配以图片根据API SPEC 11E 采油行业标准进行了该抽油机的各重要零部件校核,包括游梁的应力计算扭矩计算;横梁的应力计算弯矩计算;连杆的应力计算;曲柄的应力计算;吊绳的强度校核;支架前腿和后退的应力计算;轴承计算分为中座轴承、尾座轴承和曲柄销轴承;键槽计算分为曲柄键的压应力计算剪应力计算、减速箱皮带轮及刹车轮键压应力计算剪应力计算、电机皮带轮键压应力剪应力计算;连接螺栓计算分为游梁支座与支架连接螺栓、支架与底座连接螺栓、横梁轴承固紧螺栓。
关键词: 抽油机 ;设计 ;优化 ;强度校核
目录
摘要 I
ABSTRACT II
目录 - 1 -
第一章 概述 - 3 -
1.1 抽油机简介 - 3 -
1.2 国内外抽油机发展概况及发展趋势 - 3 -
1.2.1 国外抽油机发展概况 - 3 -
1.2.2 国内抽油机发展概况 - 4 -
1.2.3 抽油机发展趋势 - 5 -
1.2.4 抽油机节能技术及发展情况 - 5 -
1.3 游梁式抽油机基本工作原理 - 6 -
1.4 煤层气气田抽油机的特点与改进 - 8 -
1.4.1 游梁式抽油机的特点 - 9 -
1.4.2 游梁式抽油机的改进 - 9 -
第二章 CYJY3-1.5-9HB抽油机的设计计算 - 11 -
2.1 CYJY3-1.5-9HB抽油机基本参数的确定 - 11 -
2.2 四连杆机构(曲柄摇杆机构)的分析 - 11 -
2.2.1 四杆机构的基本型式 - 11 -
2.2.2 四杆机构的应用特点 - 12 -
2.2.3 机械性能的特点 - 13 -
2.3 四连杆尺寸的优化设计 - 15 -
2.3.1 设计变量 - 15 -
2.3.2 目标函数 - 15 -
2.3.3 约束条件 - 16 -
2.3.4 优化计算 - 16 -
2.4 利用江汉石油学院抽油机计算软件进行各重要数据计算 - 18 -
2.5 曲柄平衡配重 - 20 -
2.6 电动机和减速箱的选择 - 21 -
第三章 其它主要零部件设计 - 22 -
3.1 V带的设计 - 22 -
3.2 悬绳的选用 - 24 -
3.2.1绳丝根数的选择 - 24 -
3.2.2钢丝绳直径的确定 - 25 -
第四章 主要零部件的强度校核 - 26 -
4.1 游梁应力计算 - 26 -
4.2 横梁应力计算 - 27 -
4.3 连杆应力计算 - 28 -
4.4 曲柄应力计算 - 28 -
4.5 吊绳校核 - 29 -
4.6 支架受力计算 - 29 -
4.7 轴承计算 - 30 -
4.7.1 游梁支座轴承计算 - 31 -
4.7.2 尾座轴承计算 - 31 -
4.7.3 曲柄销轴承计算 - 32 -
4.8 键槽应力计算 - 33 -
4.8.1 曲柄键压应力 - 33 -
4.8.2 曲柄键剪应力 - 34 -
4.8.3 减速箱皮带轮及刹车轮键压应力 - 34 -
4.8.4 减速箱皮带轮及刹车轮键剪切应力 - 34 -
4.8.6 电机皮带轮键压应力 - 35 -
4.8.5 电机皮带轮键剪切应力 - 36 -
4.9 连接螺栓强度计算 - 36 -
4.9.1 游梁支座与支架连接螺栓 - 36 -
4.9.2 支架与底座连接螺栓 - 36 -
4.9.3 横梁轴承固紧螺栓 - 37 -
结论 - 38 -
致谢 - 39 -
参考文献 - 40 -
温馨提示:
1、题目前面的备注【字母数字编号】为本站整理分类的编号,与课题内容无关,请选题时忽视;
2、若题目上备注三维,则表示文件里包含三维源文件,由于三维组成零件数量较多,为保证预览截图的简洁性,本站将三维文件夹进行了打包。三维及CAD预览截图,均为本站电脑打开软件进行截图的,保证能够打开,下载原件超高清,下载后解压即可;
3、本站所有资源如无特殊说明,都需要本地电脑安装Office2007。图纸软件为AutoCAD,PROE,UG,SolidWorks,CATIA等;
4、本站所有图文资料仅供用户学习参考,不作为任何商用或其他用途;
5、本站不保证下载资源的准确性、安全性和完整性, 不包修改,不支持退换,同时也不承担用户因使用这些下载资源对自己和他人造成任何形式的伤害或损失;
6、 下载文件中如有侵权或不适当内容,请与我们联系,我们立即纠正。