

作品包括:
Word版说明书1份,共48页,约15000字
CAD版本图纸,共13张
SW三维图一套
单片机程序一份

摘要
除草机是日常人们修剪杂草的主要机器,而智能的遥控除草机是近代工业发展的结晶产物。除草机的出现把劳动者在繁重琐碎的农业劳作中解放出来。由于普通除草依赖人工,所以实现机械化除草是中国科研工作经过不懈努力而开发出的一种智能化设备。
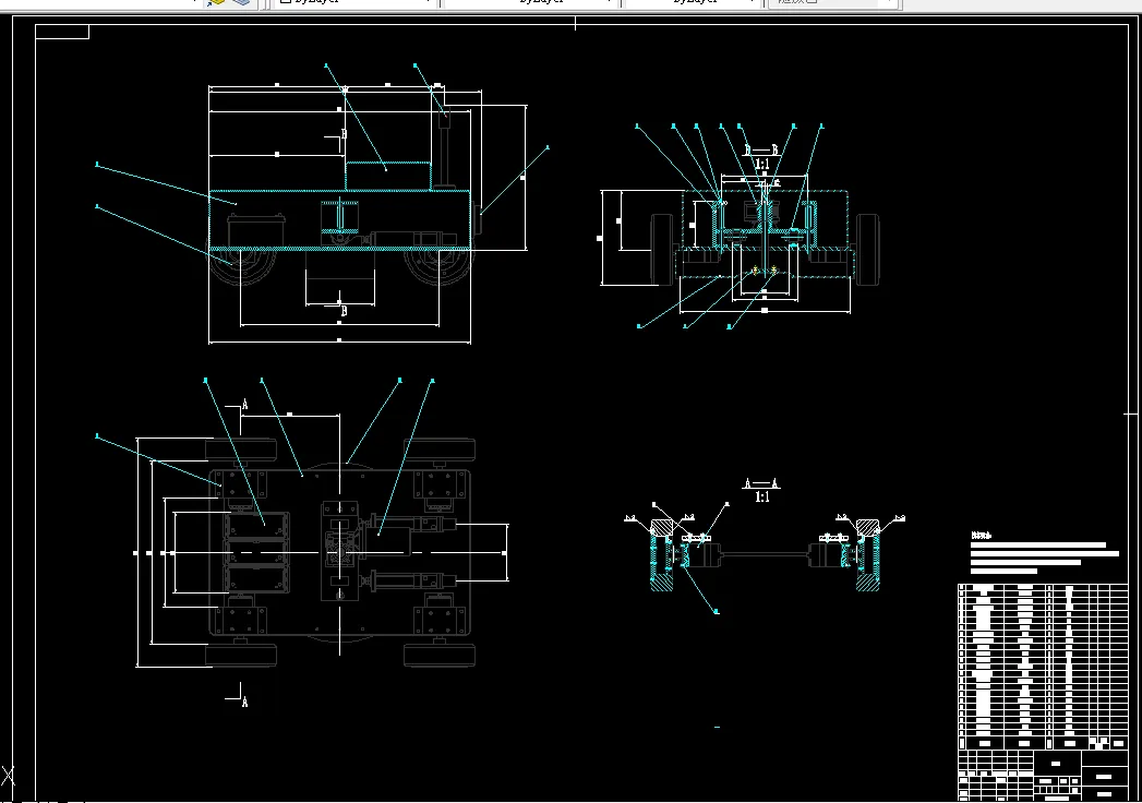
本文对遥控除草机进行系统设计,其设计包括机械结构设计、以及单片机设计。机械结构设计中驱动轮结构设计应用电动轮式底盘实现差速转向的方式行进、除草机刀片旋转机构结构设计实现割草和除草机刀片高度距离提升结构设计实现可控除草高度的作用。
本文对电子控制进行系统设计,其设计包括远程遥控以及单片机控制。运用远程遥控完成除草机脱离人力跟随作业,改善目前的农业状态,使劳动者不再艳阳高照下进行工作。控制方面以单片机为主,完成I/O口分配、电路原理图和程序的仿真。
关键词 单片机;除草机;差速驱动
目 录
摘要 I
Abstract II
第1章 绪论 1
1.1 课题研究的背景与意义 1
1.2 除草机系统设计国内外研究现状分析 1
1.2.1 国外研究现状 1
1.2.2 国内研究现状 2
1.3 研究的主要内容和方法 4
第2章 除草机系统总体方案设计 5
2.1 除草机系统总体方案设计 5
2.1.1 除草机机械结构方案设计 5
2.1.2 除草机外形尺寸规格 5
2.1.3 除草机除草方法以及行驶转向方法 5
2.2 除草机驱动系统方案设计 6
(1)液压传动方案 6
(2)机械传动方案 6
(3)电力传动方案 7
2.3 除草机除草结构系统方案 7
(1)除草机滚刀 7
(2)除草机一字行旋转刀 7
2.4 除草机除草滚刀升降结构 7
2.5 除草机控制系统方案 8
(1)PLC控制系统方案 8
(2)单片机控制系统方案 8
2.6 本章小结 8
第3章 除草机总体方案设计 9
3.1 除草机驱动结构设计 9
3.1.1 除草机驱动结构设计 9
3.2 除草机除草机构设计 11
3.2.1 除草机除草机构电机选型计算 11
3.2.2 除草机刀片链接轴设计 12
3.2.3 链接轴强度核校 13
3.2.4 除草机刀片提升机构 14
3.3 本章小结 16
第4章 除草机系统硬件设计 17
4.1 单片机控制方案设计 17
4.2 电子器件选型 17
4.2.1 主控制器-STC8F1K08S2单片机 18
4.2.2 无线模块-LC12S/灵-TR2/2.4G模块 19
4.3 I/O口分配设计 19
4.4 电路原理图设计 20
4.4.1 主控板单片机外围电路原理图 20
4.4.2 遥控板单片机外围电路原理图 23
4.5 本章小结 26
第5章 除草机控制系统软件设计 27
5.1 程序总体设计 27
5.2 关键程序设计 28
5.2.1 主函数程序 28
5.3 模型仿真验证 36
5.3.1 除草机刀具升降仿真 37
5.3.2 除草机割草仿真 38
5.3.3 除草机驱动割草仿真 38
5.4 本章小结 40
结论 41
致谢 42
参考文献 43
温馨提示:
1、题目前面的备注【字母数字编号】为本站整理分类的编号,与课题内容无关,请选题时忽视;
2、若题目上备注三维,则表示文件里包含三维源文件,由于三维组成零件数量较多,为保证预览截图的简洁性,本站将三维文件夹进行了打包。三维及CAD预览截图,均为本站电脑打开软件进行截图的,保证能够打开,下载原件超高清,下载后解压即可;
3、本站所有资源如无特殊说明,都需要本地电脑安装Office2007。图纸软件为AutoCAD,PROE,UG,SolidWorks,CATIA等;
4、本站所有图文资料仅供用户学习参考,不作为任何商用或其他用途;
5、本站不保证下载资源的准确性、安全性和完整性, 不包修改,不支持退换,同时也不承担用户因使用这些下载资源对自己和他人造成任何形式的伤害或损失;
6、 下载文件中如有侵权或不适当内容,请与我们联系,我们立即纠正。