

作品包括:
Word版说明书1份,共38页,约9000字
PPT答辩一份
CAD版本图纸,共10张
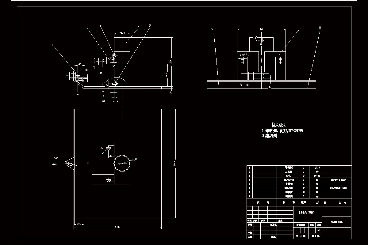
![1742859402950438.webp THY31VY1)5LKAP{98RJKL]C.webp](/static/upload/image/20250325/1742859402950438.webp)
摘 要
由于我国土地形状复杂,类型繁多,且纬度跨越大,故我国各省的农业机械各有差异,其现代化程度不同。我省土地类型主要以丘陵为主,但又是以水稻为主要粮食的地区。无法适用于大规模的生产,但又是水田,泥泞土地的作业有一定的难度。本文基于机械设计和相关的理论研究,利用减速箱,单片机和液压装置设计了一台水田平地机。由于本人能力有限,此文只着重设计了其传动装置与平地的液压装置。此次设计的水田平地机特点是结构简单,受力均匀,运行平稳,工作效率高。
关键词:水田平地机 ;耕整机 ;手推 ;液压系统设计
目 录
摘要 Ⅰ
ABSTRACT Ⅱ
前言 Ⅴ
1 绪论 1
1.1 水田平地机在国内外的发展和使用 1
1.2 设计水田平地机的意义 1
1.3 作品的结构特点与优势 1
2 水田平地机的方案选择 2
3 柴油机的选择 4
4 减速箱的设计 6
4.1 减速箱的传动比分配 6
4.2 计算传动装置的运动和动力参数 6
4.3 设计V带 7
4.4 齿轮的设计 9
4.5 轴的设计 11
4.6 高速大齿轮及带轮的设计 22
5 液压系统的设计及整体方案的确定 24
5.1 确定液压系统的压力和流量 24
5.2 液压缸主要尺寸的确定 24
5.3 各主要液压器件选择及其工作原理 25
5.4 其他 27
6 润滑方式的确定以及其它的一些要求 30
7 总结 31
参考文献 32
致谢 33
温馨提示:
1、题目前面的备注【字母数字编号】为本站整理分类的编号,与课题内容无关,请选题时忽视;
2、若题目上备注三维,则表示文件里包含三维源文件,由于三维组成零件数量较多,为保证预览截图的简洁性,本站将三维文件夹进行了打包。三维及CAD预览截图,均为本站电脑打开软件进行截图的,保证能够打开,下载原件超高清,下载后解压即可;
3、本站所有资源如无特殊说明,都需要本地电脑安装Office2007。图纸软件为AutoCAD,PROE,UG,SolidWorks,CATIA等;
4、本站所有图文资料仅供用户学习参考,不作为任何商用或其他用途;
5、本站不保证下载资源的准确性、安全性和完整性, 不包修改,不支持退换,同时也不承担用户因使用这些下载资源对自己和他人造成任何形式的伤害或损失;
6、 下载文件中如有侵权或不适当内容,请与我们联系,我们立即纠正。