

作品包括:
Word设计说明书1份,共36页,约16000字
任务书一份
开题报告一份
CAD版本图纸,共6张
摘要
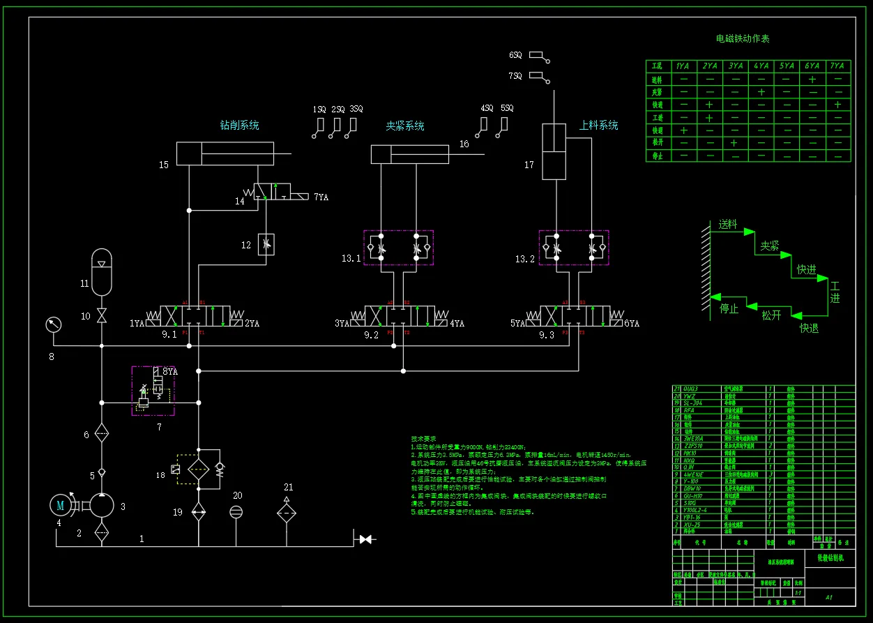
轮毂钻削机专用液压系统构建与设计,包含液压系统原理图,油箱焊合图,阀块,负载和速度图,泵站总装配图和工况图,包含设计计算书,开题和任务书。(1)实现功能:送料——夹紧——快进——工进——快退——松开——停止的工作循环。 (2)钻削力的计算 已知:材料的布氏硬度为230HB,待加工孔径为80mm,根据设备性能参数,钻削缸的快速进退速率为45mm/s,送料缸的速度为40mm/s,夹紧缸的有效行程为40mm。
温馨提示:
1、题目前面的备注【字母数字编号】为本站整理分类的编号,与课题内容无关,请选题时忽视;
2、若题目上备注三维,则表示文件里包含三维源文件,由于三维组成零件数量较多,为保证预览截图的简洁性,本站将三维文件夹进行了打包。三维及CAD预览截图,均为本站电脑打开软件进行截图的,保证能够打开,下载原件超高清,下载后解压即可;
3、本站所有资源如无特殊说明,都需要本地电脑安装Office2007。图纸软件为AutoCAD,PROE,UG,SolidWorks,CATIA等;
4、本站所有图文资料仅供用户学习参考,不作为任何商用或其他用途;
5、本站不保证下载资源的准确性、安全性和完整性, 不包修改,不支持退换,同时也不承担用户因使用这些下载资源对自己和他人造成任何形式的伤害或损失;
6、 下载文件中如有侵权或不适当内容,请与我们联系,我们立即纠正。