

作品包括:
Word版说明书1份,共61页,约25000字
CAD版本图纸,共8张
SW三维图一套

摘要
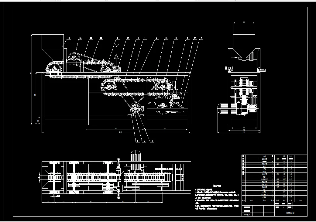
本毕业设计旨在开发一款高效、可靠的小型红枣去核机,以提升生产效率和产品质量。通过动力学分析,我们评估了刀具和链传动系统的受力及运动特性,验证了设计合理性。刀具选用YG6硬质合金并进行TiN涂层处理,增强了耐磨性和抗腐蚀性;链条和链轮采用高强度碳钢和40Cr钢,经过渗碳淬火和调质处理,提升了耐用性和可靠性。
在关键部件设计中,我们对刀具进行了刃口角度微调,并应用物理气相沉积(PVD)技术施加多层复合涂层,提高了切割效率和减少了果肉损伤。传动系统优化了链轮和链条设计,引入可调节张紧装置,确保平稳传动。驱动电机选用高防护等级和低噪音的伺服电机,实现精确速度控制和稳定扭矩输出。
为提升操作安全性和降低噪音污染,设备安装了防护罩、紧急停止按钮,并使用减震垫和隔音材料。成品与废核分离装置利用重力或气流将成品与废核分开,增加了自动清洁功能,便于维护。最终,成功开发出高效、可靠的小型红枣去核机,显著提升了工作效率和产品质量,为食品加工机械行业提供了宝贵经验。
关键词:小型红枣去核机;生产效率;产品质量;动力学分析
目 录
摘要 I
Abstract II
第1章 绪论 1
1.1选题背景及目的和意义 1
1.2国内外研究现状 1
1.2.1国内研究现状 1
1.2.2国外研究现状 3
1.3主要研究内容 4
1.4研究方法和技术路线 4
第2章红枣去核机总体结构设计 6
2.1设计要求 6
2.2红枣去核机组成及原理 6
2.3去核方式及其对效率的影响 7
2.4当前红枣去核机技术存在的问题与发展前景 8
2.5工作原理 9
第3章小型红枣去核机主要机构设计 11
3.1设计理念与基本原则 11
3.2红枣上料夹紧装置设计 11
3.2.1上料装置设计 11
3.2.2夹紧装置设计 12
3.2.3链传动设计计算 13
3.3去核装置设计 20
3.3.1间歇运动机构设计 20
3.3.2去核原理 20
3.3.3曲柄滑块机构设计 21
第4章小型红枣去核机传动系统设计 26
4.1动力传递路线 26
4.2电动机的选择 26
4.3带传动的设计 28
4.4锥齿轮传动的设计 31
4.5直齿轮传动 33
4.6轴的计算和设计 41
4.6.1轴一的设计 41
4.6.2轴二的设计 45
4.7滚子轴承的校核 47
4.8键的校核 48
4.8.1轴一键校核 48
4.8.2轴二键校核 49
第5章关键部件设计优化 50
5.1刀具设计优化 50
5.1.1与传统刀具对比 50
5.1.2几何形状改进 50
5.1.3涂层创新 50
5.1.4制造工艺升级 50
5.2传动系统设计优化 51
5.2.1链轮优化 51
5.2.2链条优化 51
5.2.3张紧装置创新 51
5.3驱动电机选型与优化 51
5.3.1功率匹配优化 51
5.3.2转速控制升级 51
5.3.3防护与噪音优化 52
5.4安全与噪音控制设计优化 52
5.4.1防护罩优化 52
5.4.2紧急停止系统升级 52
5.4.3减震降噪优化 52
5.5成品与废核分离设计与清理便捷性设计优化 52
5.5.1分离装置创新 52
5.5.2清理便捷性升级 53
5.5.3自动化清洁功能增加 53
结论 54
参考文献 55
致谢 57
温馨提示:
1、题目前面的备注【字母数字编号】为本站整理分类的编号,与课题内容无关,请选题时忽视;
2、若题目上备注三维,则表示文件里包含三维源文件,由于三维组成零件数量较多,为保证预览截图的简洁性,本站将三维文件夹进行了打包。三维及CAD预览截图,均为本站电脑打开软件进行截图的,保证能够打开,下载原件超高清,下载后解压即可;
3、本站所有资源如无特殊说明,都需要本地电脑安装Office2007。图纸软件为AutoCAD,PROE,UG,SolidWorks,CATIA等;
4、本站所有图文资料仅供用户学习参考,不作为任何商用或其他用途;
5、本站不保证下载资源的准确性、安全性和完整性, 不包修改,不支持退换,同时也不承担用户因使用这些下载资源对自己和他人造成任何形式的伤害或损失;
6、 下载文件中如有侵权或不适当内容,请与我们联系,我们立即纠正。