

作品包括:
Word版说明书1份,共41页,约20000字
CAD版本图纸,共7张
SW三维图一份
型球磨机机械系统设计
摘 要
自从首台球磨机在1983年被制造出来以后,它就被积极有效的运用在了矿产行业、建筑建造行业、化学加工等其他行业中的物料破碎加工方面。
矿石厂的开采加工过程中,其中磨机选择以及场地修建的投入基本占厂子的总投资中的百分之五十,另外在生产加工过程中, 磨机基本的能源消耗包括电耗和基本材料等占大约破磨作业的百分之五十以上。在矿厂的基本生产环节里, 磨机可以作为其主要的生产装置,加工工作效率也同时对工厂生产效率和指标起着决定性作用,也是工厂在作业中的“咽喉”。
所以研究院在科设阶段对磨机基本的选择以及矿厂加工过程对磨机的管理都十分重视。另外磨机设计和加工的工厂对其开始了非常多的研究并且取得很大的进步,衍生出很多方面的基本研究方向。
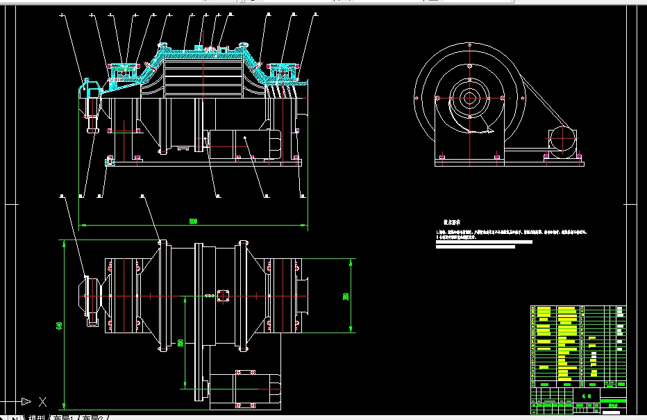
此次的设计为实验所采用的小型溢流型磨机,在对许多参考文献以及大型磨机的基本结构的对比,来研制出一种方便于实验室来进行应用的学生可以简单掌握了解的小型溢流型磨机机构,其中磨机的结构简易并且比较方便,转速稳定,噪声微弱等优点。其中具体的研究方法为通过对球磨机不同结构进行有效的研究,通过计算得出适宜的基本结构材料,来组装成本次设计的磨机。设计方法的具体实验过程可见计划书。
关键词 电动机;球磨机;破磨作业
目 录
摘要 I
Abstract II
第1章 绪论 1
1.1 球磨机设计的目的和意义 1
1.2 球磨机的发展 1
1.2.1 球磨机的发展其中一项就是效率的提高 1
1.2.2 球磨机的另一项发展趋势就是节能 2
1.3 新型的球磨机 4
1.3.1 冷冻球磨机/振动研磨机 4
1.3.2 行星式球磨机 5
1.4 设计球磨机的基本构想 5
第2章 总体方案设计 6
2.1 球磨机设计概述 6
2.1.1 工作原理 6
2.1.2 本磨机在工业部门的作用 6
2.2 所设计的磨机的优缺点和工作特点 7
2.2.1 溢流型球磨机的优缺点 7
2.2.2 工作特点 7
2.3 各类磨机总体方案比较 7
2.3.1 磨机的分类 8
2.3.2 各类磨机的总体方案比较 9
2.3.3 所设计球磨机类型的选择 10
2.4本章小结 10
第3章 溢流型磨机部件方案比较 11
3.1 球磨机部件方案选择 11
3.1.1 所设计的球磨机的结构组成 11
3.1.2 给矿部的比较选择 12
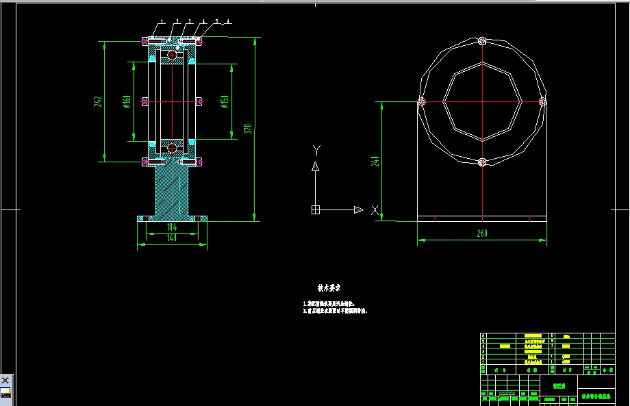
3.1.3 端盖的结构比较选择 12
3.1.4 进、排料管的选择 13
3.1.5 筒体部的选择 14
3.1.6 排矿部的选择 16
3.1.7 主轴承选择 16
3.1.8 润滑部分的选择 16
3.1.9 传动部分的选择 16
3.1.10 各部件密封形式的选择 18
3.2 本章小结 18
第4章 球磨机工作参数的计算与选择 19
4.1 球磨机的自身参数 19
4.1.1 临界转速 19
4.1.2 工作转速 19
4.1.3 装球量 19
4.1.4 安装电机功率 20
4.1.5 球磨机装球尺寸 20
4.1.6 生产率的计算 21
4.2 球磨机传动系统的计算 21
4.2.1 选择电动机参数 21
4.2.2 传动系统速比的计算 22
4.2.3 皮带轮小轮直径的选择 22
4.2 本章小结 22
第5章 结论 23
致谢 24
参考文献 25
附录A 27
附录B 33
温馨提示:
1、题目前面的备注【字母数字编号】为本站整理分类的编号,与课题内容无关,请选题时忽视;
2、若题目上备注三维,则表示文件里包含三维源文件,由于三维组成零件数量较多,为保证预览截图的简洁性,本站将三维文件夹进行了打包。三维及CAD预览截图,均为本站电脑打开软件进行截图的,保证能够打开,下载原件超高清,下载后解压即可;
3、本站所有资源如无特殊说明,都需要本地电脑安装Office2007。图纸软件为AutoCAD,PROE,UG,SolidWorks,CATIA等;
4、本站所有图文资料仅供用户学习参考,不作为任何商用或其他用途;
5、本站不保证下载资源的准确性、安全性和完整性, 不包修改,不支持退换,同时也不承担用户因使用这些下载资源对自己和他人造成任何形式的伤害或损失;
6、 下载文件中如有侵权或不适当内容,请与我们联系,我们立即纠正。