

作品包括:
Word版说明书1份,共25页,约11000字
CAD版本图纸,共4张
SW三维图一套

摘要
随着我国经济的蓬勃发展,建筑垃圾的产量急剧增加,对环境造成了严重污染,也困扰着人们的生活。因此,建筑生活垃圾的处理越来越受到人们的关注。建筑生活垃圾车是专门对建筑生活垃圾进行运输处理的专用车辆,过去一般采用敞篷式的改装垃圾车进行运输,随着人们对环境和自身的保护意识提高,其无论实在运输还是在质量利用系数上都满足不了现代的要求。目前建筑生活垃圾车的操作还是半自动化程度,工作过程为人工将垃圾桶运到垃圾车的支架上进行卡紧,操作控制杆进行提升运动,设定一定的倾倒时间,然后进行下降的操作,最后将垃圾桶放置原位,在整个过程中环卫工人要时刻的在操作设备旁边,进行实时的手动操作,这样方式不仅使工人遭受垃圾的二次污染,而且在操作工程中,有很高的概率发生操作故障。目前对建筑生活垃圾车要求是密封性要好,操作方便可靠、装卸载效率高,并能与后期的无害化和资源化设备相配套,且采用侧装式的垃圾桶提升装置建筑生活垃圾车作为专用处理建筑生活垃圾的重要工具,也赢得了一定的发展市场。本次课题通过对建筑生活垃圾车的垃圾桶提升装置的研究分析,改善了提升机构的投料性能。分析其提升形式运动轨迹。并对其运用是三维数模软件进行数模建立,分析其运动。运用CAD软件进行工程图的详细绘制。
关键词:挂桶垃圾车提升装置、提升机构、三维数模、CAD。
目 录
摘 要 1
ABSTRACT 2
第一章 前 言 3
1.1 课题背景及意义 3
1.2 国内外挂桶垃圾车提升装置发展现状 3
1.2.1国外挂桶垃圾车提升装置发展现状 3
2.2.2 国内挂桶垃圾车提升装置发展现状 5
1.3 主要研究内容 6
1.4 研究方法 6
1.5 研究路线 7
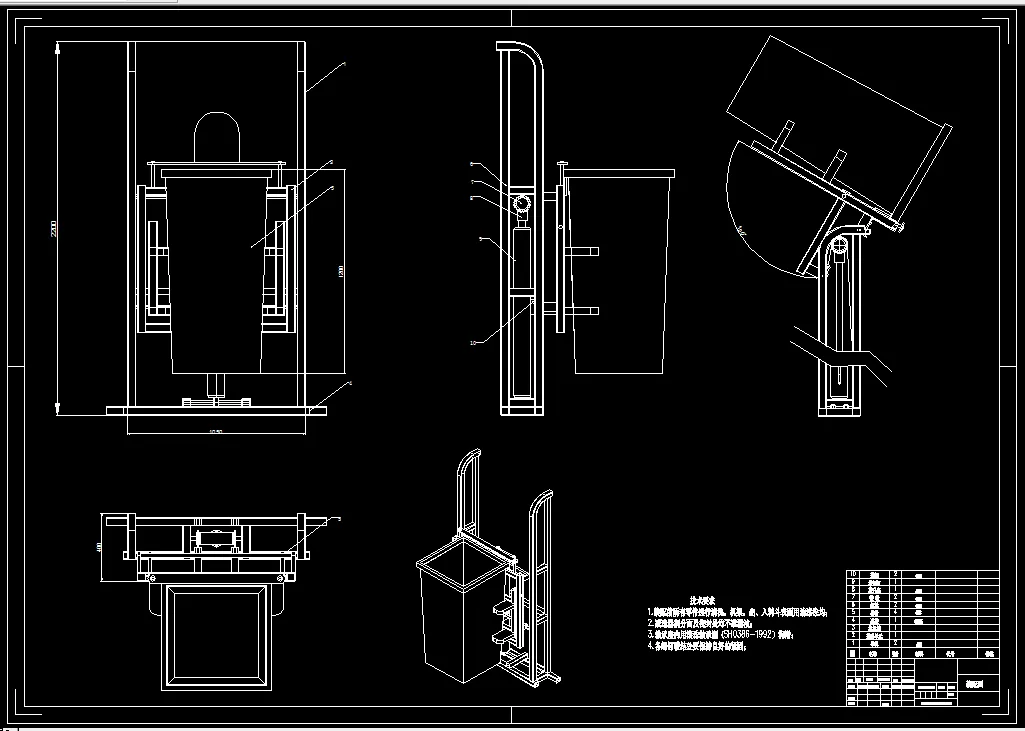
第二章 挂桶垃圾车提升装置方案设计 8
2.2 挂桶垃圾车提升装置方案设计 9
2.3 止点与翻转轴的位置分析 10
第三章 部件设计与分析 11
3.1 液压缸工作行程分析 11
3.2 倾倒角度分析 12
3.3 机架总体稳定性分析 12
3.4 轴计算及校核 12
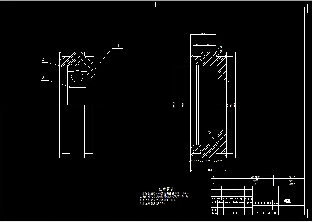
3.5 链传动的计算和校核 15
3.5.1链条的选择和计算 15
3.5.2链轮的选择和计算 16
第四章 液压系统分析设计 19
4.1 液压缸原理分析 19
4.2 提升倾倒机液压缸活塞杆直径的计算和校核 19
4.3 提升倾倒机液压缸筒壁厚的计算和校核 20
总 结 21
参考文献 22
致 谢 24
温馨提示:
1、题目前面的备注【字母数字编号】为本站整理分类的编号,与课题内容无关,请选题时忽视;
2、若题目上备注三维,则表示文件里包含三维源文件,由于三维组成零件数量较多,为保证预览截图的简洁性,本站将三维文件夹进行了打包。三维及CAD预览截图,均为本站电脑打开软件进行截图的,保证能够打开,下载原件超高清,下载后解压即可;
3、本站所有资源如无特殊说明,都需要本地电脑安装Office2007。图纸软件为AutoCAD,PROE,UG,SolidWorks,CATIA等;
4、本站所有图文资料仅供用户学习参考,不作为任何商用或其他用途;
5、本站不保证下载资源的准确性、安全性和完整性, 不包修改,不支持退换,同时也不承担用户因使用这些下载资源对自己和他人造成任何形式的伤害或损失;
6、 下载文件中如有侵权或不适当内容,请与我们联系,我们立即纠正。