

作品包括:
Word设计说明书1份
任务书一份
开题报告一份
外文翻译一份
CAD版本图纸,共24张
摘要
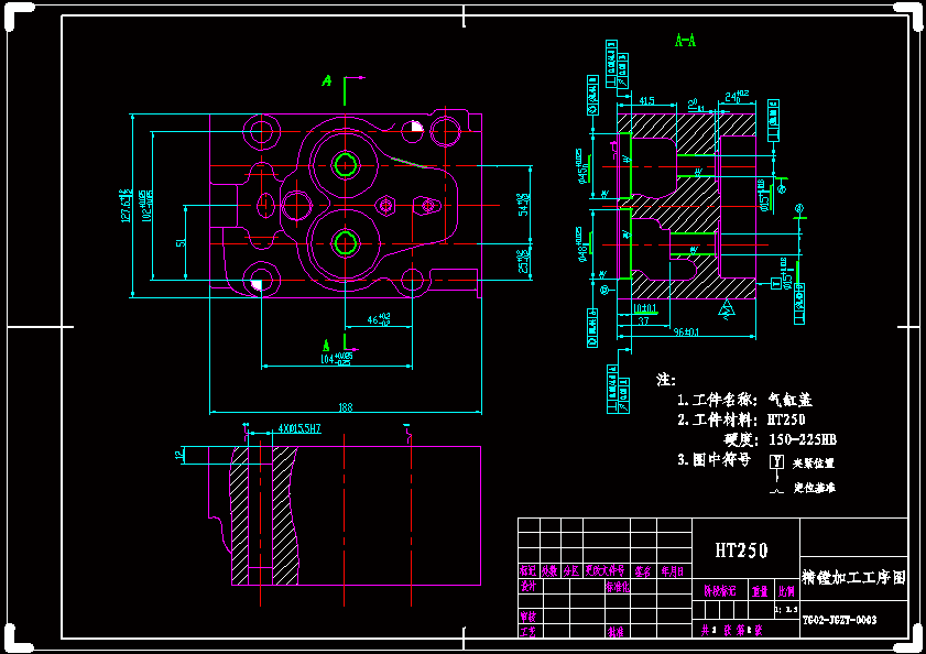
汽油机汽缸盖工装及组合机床设计【含夹具设计】 为了提高生产效率,满足被加工零件的精度要求,需要设计一台组合机床来改善它的加工情况。本课题设计的是半精镗精镗汽缸盖导管孔组合机床。其来源于江苏高精机电装备有限公司。在设计中,通过研究被加工零件的特点,对相关数据进行计算,对相关部件进行选择,从而确定机床的总体布局。并绘制出被加工零件工序图,加工示意图,机床联系尺寸图和生产率计算卡。在此基础上拟定了夹具的结构方案,确定工件的定位方式,然后进行误差分析,确定夹紧方式,对夹紧力进行计算,对夹具的主要零件进行结构设计,并绘制出夹具图和主要零件图。该机床对零件加工和装配的工艺性好,工件装夹方便。采用液压滑台实现刀具进给,工件采用一面两孔定位,一次装夹完成,不仅保证了孔的加工精度,而且还提高了加工效率,降低了工人的劳动强度。
温馨提示:
1、题目前面的备注【字母数字编号】为本站整理分类的编号,与课题内容无关,请选题时忽视;
2、若题目上备注三维,则表示文件里包含三维源文件,由于三维组成零件数量较多,为保证预览截图的简洁性,本站将三维文件夹进行了打包。三维及CAD预览截图,均为本站电脑打开软件进行截图的,保证能够打开,下载原件超高清,下载后解压即可;
3、本站所有资源如无特殊说明,都需要本地电脑安装Office2007。图纸软件为AutoCAD,PROE,UG,SolidWorks,CATIA等;
4、本站所有图文资料仅供用户学习参考,不作为任何商用或其他用途;
5、本站不保证下载资源的准确性、安全性和完整性, 不包修改,不支持退换,同时也不承担用户因使用这些下载资源对自己和他人造成任何形式的伤害或损失;
6、 下载文件中如有侵权或不适当内容,请与我们联系,我们立即纠正。