

作品包括:
Word设计说明书1份
CAD版本图纸,共5张
摘要
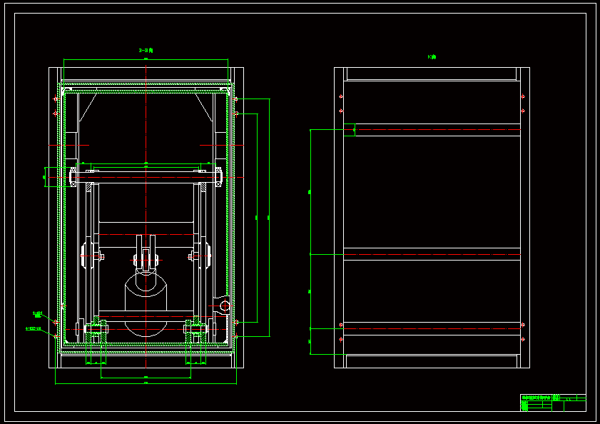
板材校平分切自动生产线单油缸升降台机械设计【单缸上料液压升降台】生产线的单缸上料液压升降台部分,该部分工作以前是由人工来完成的,工作虽简单却繁重。为了有效的利用人力资源,减轻工人的劳动强度,提高机器的效率,我所设计的上料部分应该是自动的而不用人工来完成。薄铁板在机架上,由传送装置传送到升降台上,由液压缸推着升降台使板料向上运动,当板料在升到一定高度之后,由光电传感器感测到之后,控制升降平台,升降平台在液压机构的控制下停止运动,这样可以在可能的范围内减少人力配置,达到自动化生产线的要求。
温馨提示:
1、题目前面的备注【字母数字编号】为本站整理分类的编号,与课题内容无关,请选题时忽视;
2、若题目上备注三维,则表示文件里包含三维源文件,由于三维组成零件数量较多,为保证预览截图的简洁性,本站将三维文件夹进行了打包。三维及CAD预览截图,均为本站电脑打开软件进行截图的,保证能够打开,下载原件超高清,下载后解压即可;
3、本站所有资源如无特殊说明,都需要本地电脑安装Office2007。图纸软件为AutoCAD,PROE,UG,SolidWorks,CATIA等;
4、本站所有图文资料仅供用户学习参考,不作为任何商用或其他用途;
5、本站不保证下载资源的准确性、安全性和完整性, 不包修改,不支持退换,同时也不承担用户因使用这些下载资源对自己和他人造成任何形式的伤害或损失;
6、 下载文件中如有侵权或不适当内容,请与我们联系,我们立即纠正。