

作品包括:
Word设计说明书1份
任务书一份
开题报告一份
外文翻译一份
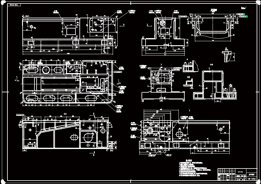
CAD版本图纸,共12张
摘要
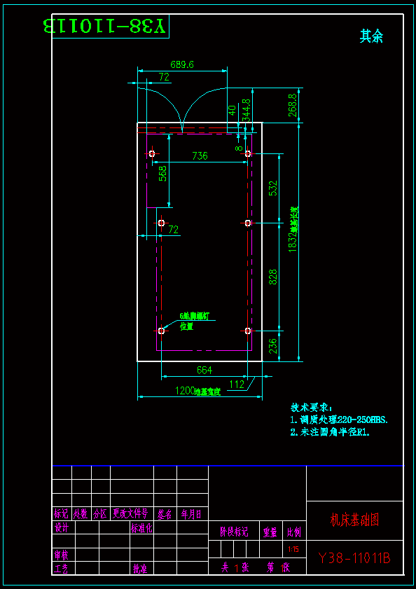
齿轮加工机床是机械制造工业中的一种重要的技术装备,技术含量高且结构复杂,滚齿机又是齿轮加工机床中应用最为广泛的一种,因此我们必须重视滚齿机的发展,不断改进技术,使之达到国际领先水平。 本文主要论述了滚齿机的发展现状、发展趋势及滚齿机在工业生产中的作用。主要设计任务是滚齿机机床总体结构、传动方案的设计。主要设计内容包括:机床总体方案和机床工艺范围的确定,机床传动系统设计,机床总体结构设计,以及冷却装置总成设计和床身零件的结构设计等。本机床主要有四条传动链:主运动传动链,展成运动传动链,进给运动传动链和附加运动传动链,对每个传动链的传动比进行分配,并通过挂轮对机床进行调整。设计的目标是使得机床能满足强度、刚度、寿命、工艺性与经济性等方面的要求,且运行平稳,工件可靠,结构合理,装卸方便,便于维修与调整,最后能满足加工要求,保证加工精度。
温馨提示:
1、题目前面的备注【字母数字编号】为本站整理分类的编号,与课题内容无关,请选题时忽视;
2、若题目上备注三维,则表示文件里包含三维源文件,由于三维组成零件数量较多,为保证预览截图的简洁性,本站将三维文件夹进行了打包。三维及CAD预览截图,均为本站电脑打开软件进行截图的,保证能够打开,下载原件超高清,下载后解压即可;
3、本站所有资源如无特殊说明,都需要本地电脑安装Office2007。图纸软件为AutoCAD,PROE,UG,SolidWorks,CATIA等;
4、本站所有图文资料仅供用户学习参考,不作为任何商用或其他用途;
5、本站不保证下载资源的准确性、安全性和完整性, 不包修改,不支持退换,同时也不承担用户因使用这些下载资源对自己和他人造成任何形式的伤害或损失;
6、 下载文件中如有侵权或不适当内容,请与我们联系,我们立即纠正。