

作品包括:
Word设计说明书1份
CAD版本图纸,共4张

摘要
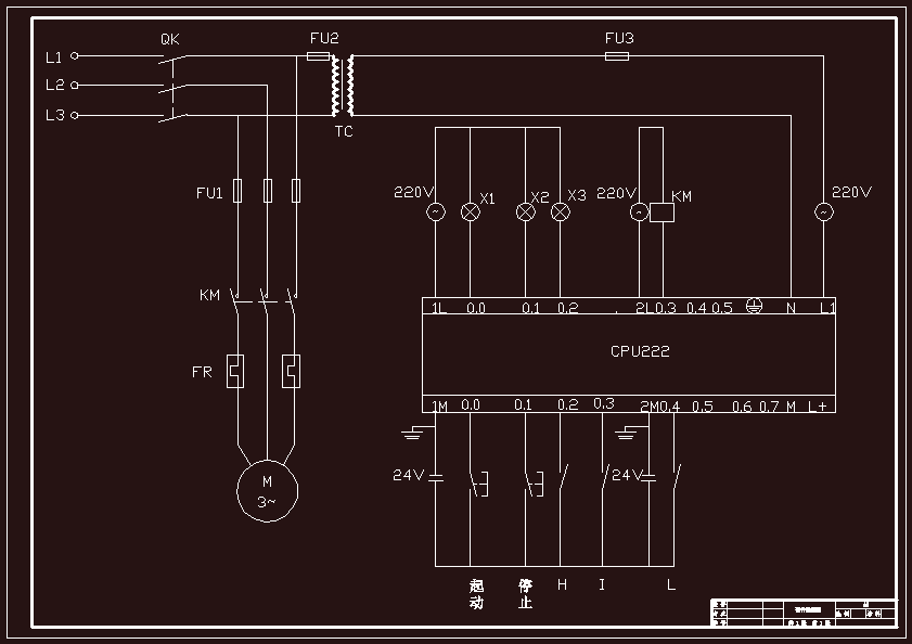
基于西门子CPU222的混料罐控制系统设计本次设计主要是对两种液体混合搅拌机plc控制系统的设计,在设计中针对控制对象:三只传感器监视容器高、中、低液位,设三电磁阀控制液体A、B输入与混合液体C输出,设搅拌电机M。搅拌机是一种将两种或多种以上材料搅拌混合的系统,对搅拌机的控制,关系到产品的质量,操作工艺是:启动后放入液体A经低液位再注入至中液位,关A,放液体B至高液位,关B,启动搅拌电机M,搅60S后停,开阀放出混合液体,低液位后延时10S放空后关阀,又重复上述过程,要求工作过程中按下停止按纽后搅拌器不立即停止工作,对当前混合操作处理完毕后才停止搅拌器。试设计PLC控制系统硬件及自动控制程序;为提高搅拌效率,要同时注入液体A、B,但要保证固定混合比,再设计PLC控制系统硬件与软件,生产效率、生产成本等多个方面。其广泛用于油漆、涂料、染料、制革、医药、饮料、粘胶剂、食品、洗涤品、化妆品及各种固态物体等的生产,本课题针对搅拌机的时间、流程进行设计,以求提高搅拌效率、保证混合比例、确保生产节约。最大限度的完成生产要求。
温馨提示:
1、题目前面的备注【字母数字编号】为本站整理分类的编号,与课题内容无关,请选题时忽视;
2、若题目上备注三维,则表示文件里包含三维源文件,由于三维组成零件数量较多,为保证预览截图的简洁性,本站将三维文件夹进行了打包。三维及CAD预览截图,均为本站电脑打开软件进行截图的,保证能够打开,下载原件超高清,下载后解压即可;
3、本站所有资源如无特殊说明,都需要本地电脑安装Office2007。图纸软件为AutoCAD,PROE,UG,SolidWorks,CATIA等;
4、本站所有图文资料仅供用户学习参考,不作为任何商用或其他用途;
5、本站不保证下载资源的准确性、安全性和完整性, 不包修改,不支持退换,同时也不承担用户因使用这些下载资源对自己和他人造成任何形式的伤害或损失;
6、 下载文件中如有侵权或不适当内容,请与我们联系,我们立即纠正。