

作品包括:
Word设计说明书1份
任务书一份
开题报告一份
CAD版本图纸,共8张

摘要
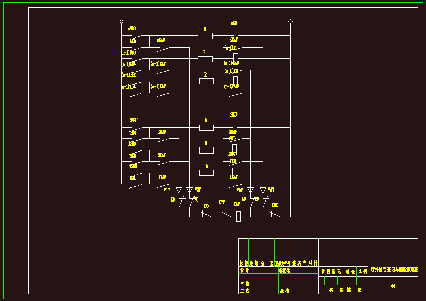
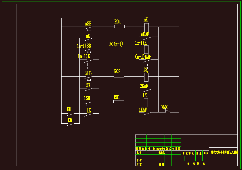
基于PLC的电梯控制系统设计【含8张CAD图纸】首先,分别阐述了电梯继电器控制和PLC控制的特点,突出讲述继电器电梯控制系统暴露的缺点以及PLC电梯控制系统所具有的优点,并对电梯的变频调速控制进行了介绍。其次,在阅读了大量国内外相关文件资料的基础上,对电梯技术和电梯设备的发展进行了综述。然后,介绍了变频器类型以及参数设计的相关知识;同时介绍了PLC选型原则以及PLC控制系统的设计思路;在此基础上,根据电梯系统自身的工作状态要求,进行电梯系统的PLC软件开发,通过软件开发的特点,结合PLC自身的控制规律,设计出可实现一定功能的PLC电梯控制系统。最后的模拟调试结果表明,基于PLC的变频调速电梯系统运行效率高,系统安全可靠性强,并且系统构造简单易于实现,满足了对电梯系统期望的要求。
温馨提示:
1、题目前面的备注【字母数字编号】为本站整理分类的编号,与课题内容无关,请选题时忽视;
2、若题目上备注三维,则表示文件里包含三维源文件,由于三维组成零件数量较多,为保证预览截图的简洁性,本站将三维文件夹进行了打包。三维及CAD预览截图,均为本站电脑打开软件进行截图的,保证能够打开,下载原件超高清,下载后解压即可;
3、本站所有资源如无特殊说明,都需要本地电脑安装Office2007。图纸软件为AutoCAD,PROE,UG,SolidWorks,CATIA等;
4、本站所有图文资料仅供用户学习参考,不作为任何商用或其他用途;
5、本站不保证下载资源的准确性、安全性和完整性, 不包修改,不支持退换,同时也不承担用户因使用这些下载资源对自己和他人造成任何形式的伤害或损失;
6、 下载文件中如有侵权或不适当内容,请与我们联系,我们立即纠正。