

作品包括:
Word设计说明书1份,共40页,约15000字
CAD版本图纸,共8张

摘要
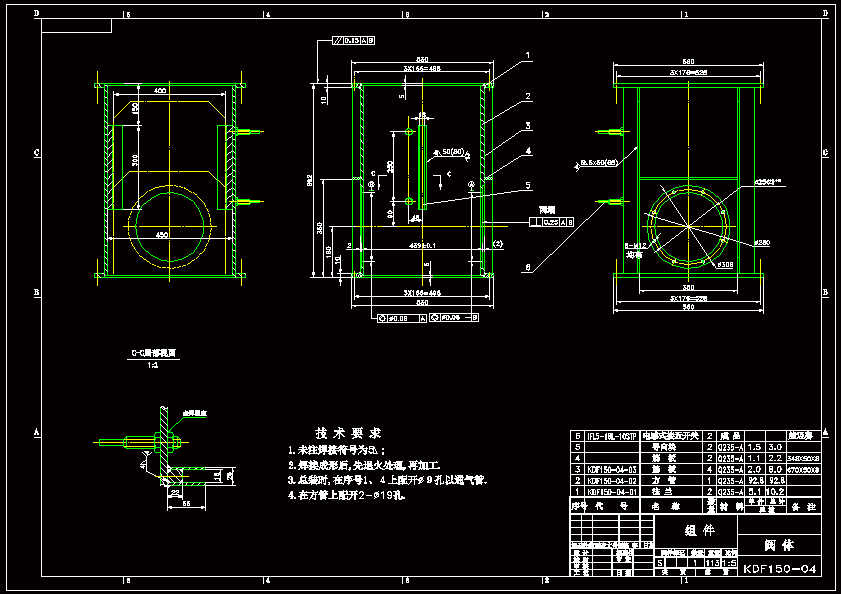
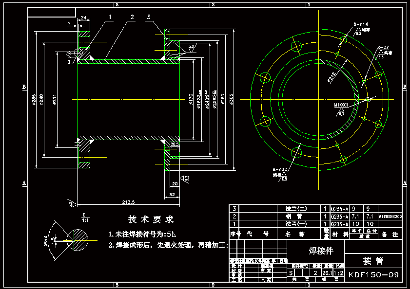
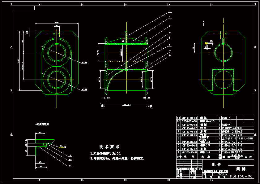
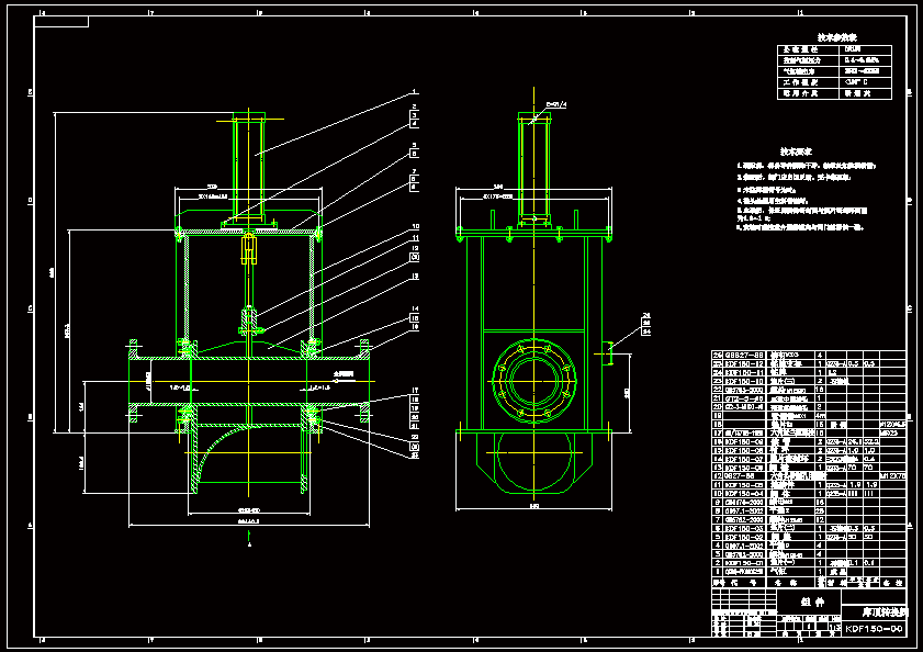
本设计涉及对目前阀门行业中输送管线料库间只能单一导通,切换阀门需要重新人工换阀的生产模式的改进。KDF型库定切换阀提供了一种可以进行输送管线料库间切换的可能,并且无需手工操作,实现了阀门切换的半自动化。本设计具有切换方便,密封性好,结构紧凑,占地空间小的优点并且大大的降低了工人的劳动强度,是气力输送系统中的重要的部件。
温馨提示:
1、题目前面的备注【字母数字编号】为本站整理分类的编号,与课题内容无关,请选题时忽视;
2、若题目上备注三维,则表示文件里包含三维源文件,由于三维组成零件数量较多,为保证预览截图的简洁性,本站将三维文件夹进行了打包。三维及CAD预览截图,均为本站电脑打开软件进行截图的,保证能够打开,下载原件超高清,下载后解压即可;
3、本站所有资源如无特殊说明,都需要本地电脑安装Office2007。图纸软件为AutoCAD,PROE,UG,SolidWorks,CATIA等;
4、本站所有图文资料仅供用户学习参考,不作为任何商用或其他用途;
5、本站不保证下载资源的准确性、安全性和完整性, 不包修改,不支持退换,同时也不承担用户因使用这些下载资源对自己和他人造成任何形式的伤害或损失;
6、 下载文件中如有侵权或不适当内容,请与我们联系,我们立即纠正。