

作品包括:
Word设计说明书1份,共40页,约21000字
任务书一份
开题报告一份
CAD版本图纸,共9张

摘要
折弯机对折弯金属板料具有较高的劳动生产率和较高的折弯精度。当折弯不同厚度的板料时,应选择不同开口的V槽,若采用不同形状的上下模具,可折弯成各种形状的工件。
本设计主要设计折弯机的液压系统,在整个设计过程中,不影响设计要求的情况下,本设计能用标准件的在尽量采用标准件,从而提高整个折弯机的性价比。因而本设计主要对液压系统中的液压缸和油箱进行了设计。
在设计过程中我参考了很多设计手册。使我学会了很多知识,让我了解到作为一个设计工程师所必须作的事。而且我又在不影响液压缸性能的前提下进行了一些创新,使缸的制造成本有些降低。但对缸的某些复杂结构进行了简化,对于油箱的设计,我在遵守设计手册要求的前提下,增加了一些辅助功能,使油箱更趋于完善、合理。以使我在本次设计中得到更多的锻炼,更适应将来的工作。
此次设计对于提高工作效率节约工作时间具有较好的意义,为向数控和智能化折弯机进行设计打好基础。
关键词:液压系统;液压缸;油箱
目录
1绪论.......................................................................1
1.1课题背景.................................................................1
1.1.1折弯机简介.............................................................1
1.1.2设计内容简介...........................................................3
1.2液压传动的基本知识.......................................................3
1.2.1液压系统的概念.........................................................3
1.2.2液压传动的组成.........................................................4
1.2.3液压系统的优点.........................................................4
2液压系统设计...............................................................6
3系统元件设计...............................................................8
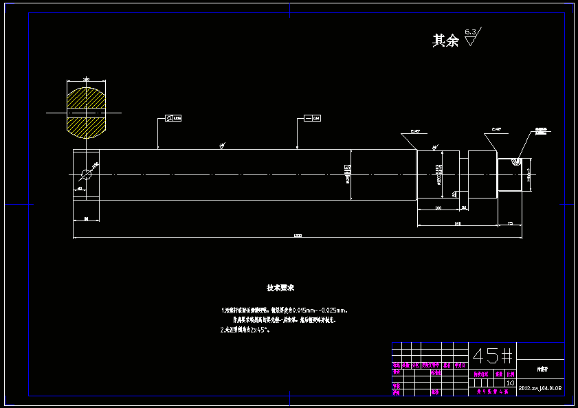
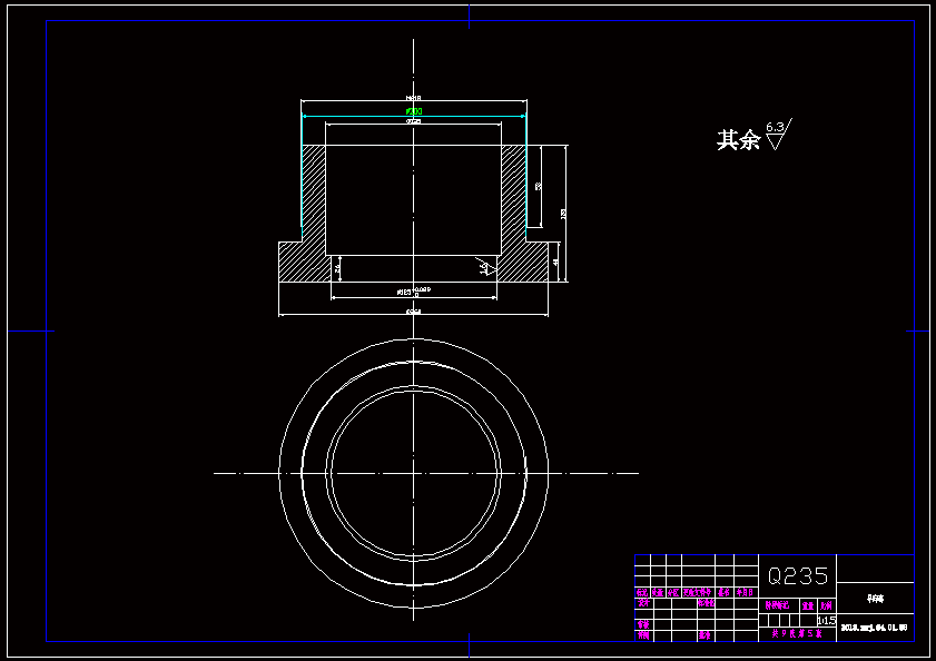
3.1液压缸的设计.............................................................8
3.1.1设计液压折弯机的技术参数...............................................8
3.1.2负载分析和运动分析.....................................................8
3.1.3液压缸主要零部件结构,材料与技术要求....................................9
3.2液压泵的选择............................................................16
3.2.1液压泵的性能参数及计算公式............................................16
3.2.2轴向柱塞泵的工作原理..................................................19
3.2.3轴向柱塞泵的工作要求..................................................20
3.2.4油泵的选择............................................................20
3.3油箱的设计..............................................................20
3.3.1油箱的功能............................................................20
3.3.2油箱的类型............................................................20
3.3.3油箱的设计要求及结构..................................................21
3.3.4油箱附件..............................................................22
3.4系统其它元件的选用......................................................23
3.4.1蓄能器的选用..........................................................23
3.4.2电机的选择............................................................23
4结论......................................................................25
参考文献...................................................................26
附录.......................................................................27
致谢.......................................................................36
温馨提示:
1、题目前面的备注【字母数字编号】为本站整理分类的编号,与课题内容无关,请选题时忽视;
2、若题目上备注三维,则表示文件里包含三维源文件,由于三维组成零件数量较多,为保证预览截图的简洁性,本站将三维文件夹进行了打包。三维及CAD预览截图,均为本站电脑打开软件进行截图的,保证能够打开,下载原件超高清,下载后解压即可;
3、本站所有资源如无特殊说明,都需要本地电脑安装Office2007。图纸软件为AutoCAD,PROE,UG,SolidWorks,CATIA等;
4、本站所有图文资料仅供用户学习参考,不作为任何商用或其他用途;
5、本站不保证下载资源的准确性、安全性和完整性, 不包修改,不支持退换,同时也不承担用户因使用这些下载资源对自己和他人造成任何形式的伤害或损失;
6、 下载文件中如有侵权或不适当内容,请与我们联系,我们立即纠正。