

作品包括:
Word设计说明书1份,共83页,约23000字
中期报告一份
开题报告一份
外文翻译一份
CAD版本图纸,共6张

摘 要
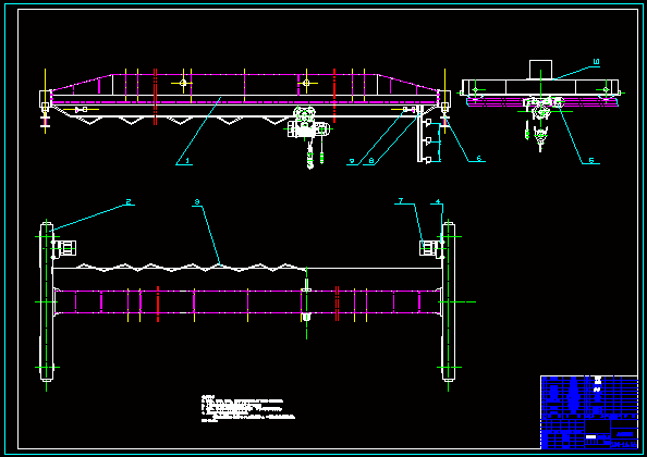
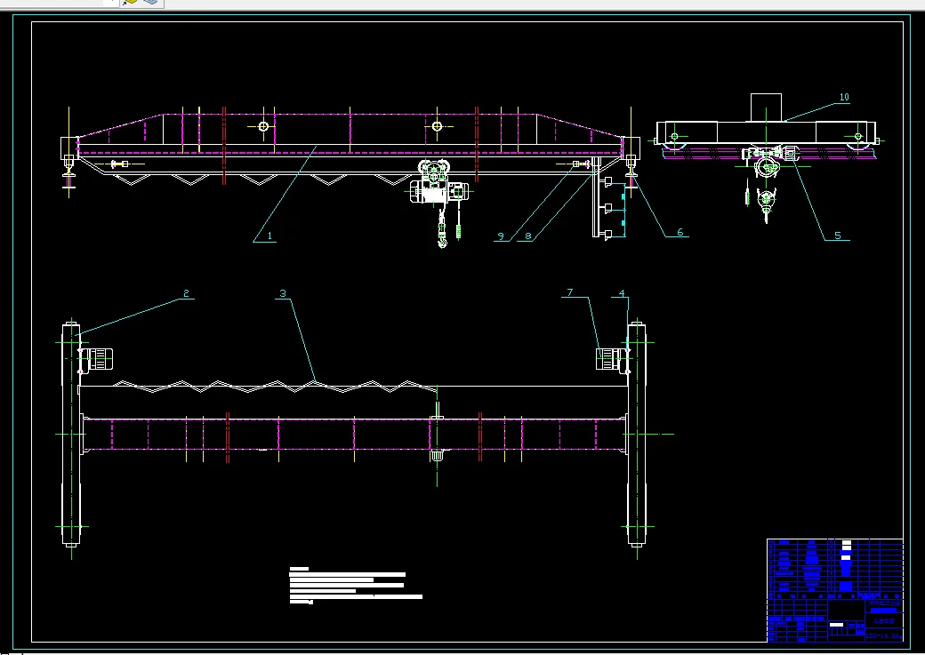
我做的毕业设计课题是单梁桥式起重机设计。单梁桥式起重机是一种轻型起重设备,它适用起重量为1~20 吨,适用跨度4.5~16.5米,工作环境温度在≥-35。C与≤+35。C范围内,适合于车间、仓库、露天堆场等处的物品装卸工作。桥架由一根主梁和两根端梁刚接组成。根据起重量和跨度,主梁采用普通工字钢和U形槽组合焊接形成。主梁和端梁之间采用承载突缘普通螺栓法兰连接。提升机构采用CD型电葫芦。
此次设计的主要内容有:问题的提出、总体方案的构思,结构设计及对未知问题的探索和解决方案的初步设计,装配图、零件图等一系列图纸的设计与绘制,以及毕业设计说明书的完成。
关键词 :起重机;桥式起重机;大车运行机构;小车运行结构;小车起升;结构桥架;主端梁 。
目录
前 言 1
1 单梁桥式起重机的概述 2
1.1单梁桥式起重机的整体描述 2
1.1.2 单梁桥式起重机机构的特点 3
1.1.3 单梁桥式起重机的基本参数 3
1.1.4 桁架梁和箱形梁的比较 3
1.2 LD型电动单梁桥式起重机各部件的作用(位结构) 3
1.2.1 主梁 4
1.2.2 端梁 4
1.2.3主梁和端梁的联接 4
1.2.4 电动葫芦 4
1.2.5 大车 5
1.2.6 小车架 5
1.2.7 小车 5
1.2.8操纵室 5
1.3 运行机构 6
1.3.1 小车运行机构 6
1.3.2 大车运行机构 7
1.4 发展趋势 8
1.4.1 国内桥式起重机发展有三大特征 8
1.4.2 国外桥式起重机发展四大特征 9
1.4.3 机械化运输系统的组合应用 10
2 工作条件及设计要求 11
2.1 型式及设计的构造特点 11
2.2 选择电动葫芦的规格型号 12
2.3 主梁设计计算 13
2.3.1 主梁断面几何特性 13
2.3.3刚度计算 20
2.3.4 稳定性计算 23
2.4 端梁设计计算 23
2.4.2 端梁中央断面几何特性 24
2.5 起重机最大轮压 26
2.5.1起重机支座及作用 26
2.5.2 起重机最大轮压的计算 26
2.6 最大歪斜侧向力 33
2.7 端梁中央断面合成应力 34
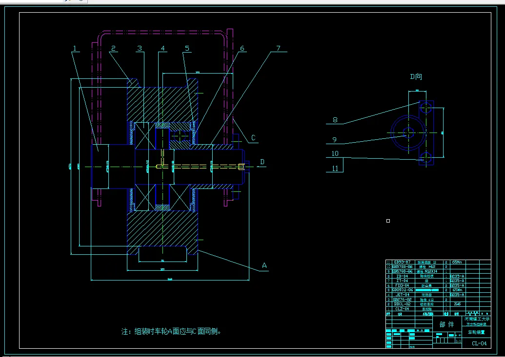
2.8 车轮轴对端梁腹板的挤压应力 34
2.9 主、端梁连接计算 35
2.9.1 主、端梁连接形成及受力分析 35
2.9.2 螺栓拉力的计算 36
3 小车起升和运行机构的设计计算 40
3.1 电动葫芦起升机构设计计算 41
3.1.1 电动葫芦的基本设计参数 41
3.1.2 电动葫芦起升机构简要设计步骤 42
3.2 电动葫芦运行机构设计计算 49
3.2.1.电动小车运行静阻力计算 49
3.2.2.电动机的初选预验算 50
3.2.3 传动比 51
3.2.4 制动器的选择与计算 52
4 大车运行机构设计计算 55
4.1 确定机构传动方案 55
4.2 选择车轮和轨道,验算车轮强度 55
4.3 验算车轮的疲劳强度 55
4.4 传动装置设计计算 57
4.4.1 选择电动机 57
4.4.2 大车运行机构的功率计算 58
4.4.3 验算电动机 58
4.5设计减速装置 60
4.5.1选择减速器的类型 60
4.5.2确定减速器的型号 61
4.6 起重机有关使用机构的安全装置 62
4.6.1 缓冲器 62
4.6.2 起升高度限位器 63
4.6.3 行程限位器 63
4.6.4 安全开关 63
4.7 起重机的组装及试车要求 63
4.7.1起重机的安装注意事项 63
4.7.2 起重机的试车要求 65
5 焊缝连接分析 67
5.1 连接方法 67
5.1.1焊接 67
5.1.2 对接焊缝 67
5.1.3 角焊缝 68
致 谢 74
参考文献 75
温馨提示:
1、题目前面的备注【字母数字编号】为本站整理分类的编号,与课题内容无关,请选题时忽视;
2、若题目上备注三维,则表示文件里包含三维源文件,由于三维组成零件数量较多,为保证预览截图的简洁性,本站将三维文件夹进行了打包。三维及CAD预览截图,均为本站电脑打开软件进行截图的,保证能够打开,下载原件超高清,下载后解压即可;
3、本站所有资源如无特殊说明,都需要本地电脑安装Office2007。图纸软件为AutoCAD,PROE,UG,SolidWorks,CATIA等;
4、本站所有图文资料仅供用户学习参考,不作为任何商用或其他用途;
5、本站不保证下载资源的准确性、安全性和完整性, 不包修改,不支持退换,同时也不承担用户因使用这些下载资源对自己和他人造成任何形式的伤害或损失;
6、 下载文件中如有侵权或不适当内容,请与我们联系,我们立即纠正。