

作品包括:
Word设计说明书1份
实习报告一份
开题报告一份
外文翻译一份
CAD版本图纸,共6张

摘要
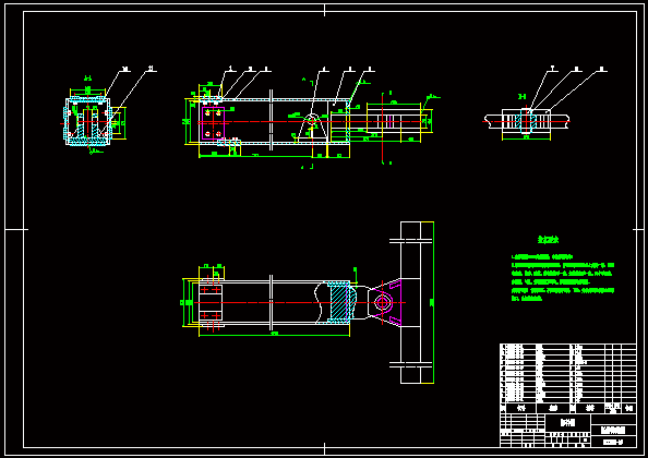
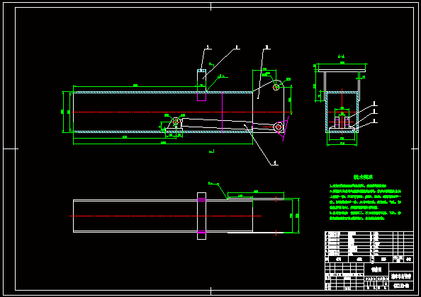
本次设计的道路清障车类型选择托吊联体型,即吊臂与托臂联结一体,在专用底盘基础上配装托举、拖曳、起重等装置,具有托举、牵引、起吊等功能,操作方便快捷、安全可靠。变幅机构采用液压油缸前倾式,大大改善了吊臂的受力状况。为了达到行驶的稳定性,加了配重。为了防止在作业过程中出现倾翻现象,采用了支腿。底盘采用EQ5160GKJ底盘,整车性能指标为:整车额定起吊质量为5000 2kg;额定拖举质量为5000kg;额定牵引质量为3000kg;托臂伸缩行程为700mm;吊臂伸缩行程为2000mm等等。针对这些性能指标,对其进行了尺寸设计,受力分析及强度校核。
关键词:道路清障车;托举 ;起吊
温馨提示:
1、题目前面的备注【字母数字编号】为本站整理分类的编号,与课题内容无关,请选题时忽视;
2、若题目上备注三维,则表示文件里包含三维源文件,由于三维组成零件数量较多,为保证预览截图的简洁性,本站将三维文件夹进行了打包。三维及CAD预览截图,均为本站电脑打开软件进行截图的,保证能够打开,下载原件超高清,下载后解压即可;
3、本站所有资源如无特殊说明,都需要本地电脑安装Office2007。图纸软件为AutoCAD,PROE,UG,SolidWorks,CATIA等;
4、本站所有图文资料仅供用户学习参考,不作为任何商用或其他用途;
5、本站不保证下载资源的准确性、安全性和完整性, 不包修改,不支持退换,同时也不承担用户因使用这些下载资源对自己和他人造成任何形式的伤害或损失;
6、 下载文件中如有侵权或不适当内容,请与我们联系,我们立即纠正。