

作品包括:
Word设计说明书1份,共32页,约11000字
CAD版本图纸,共12张
摘要
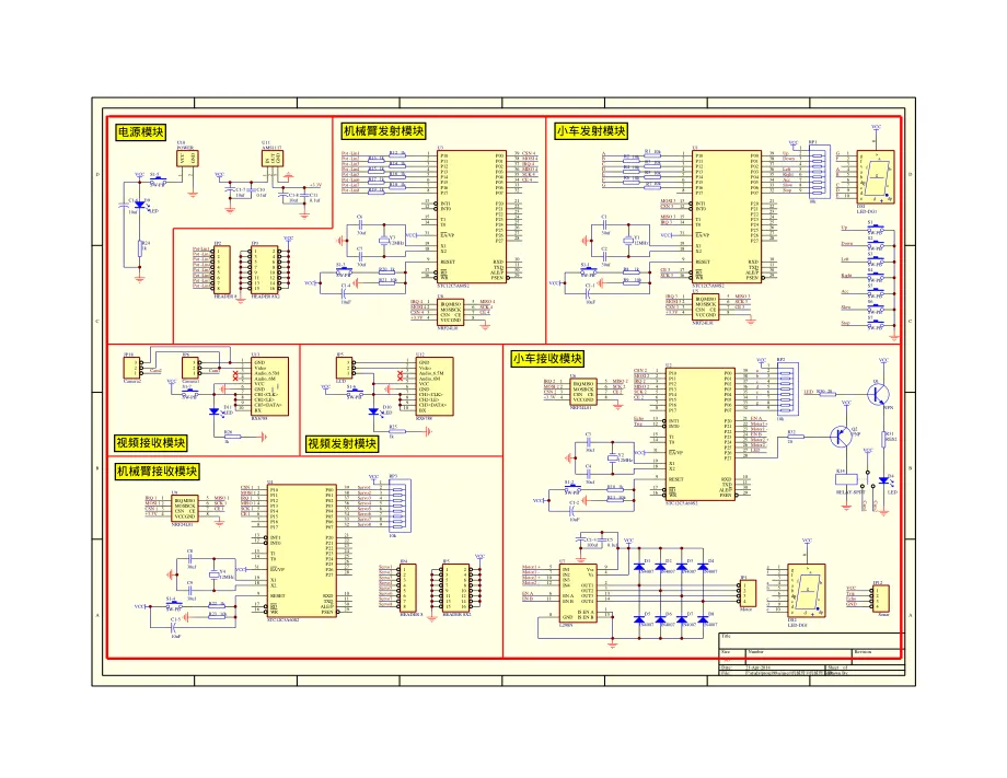
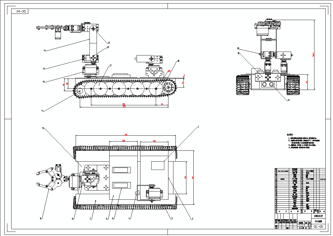
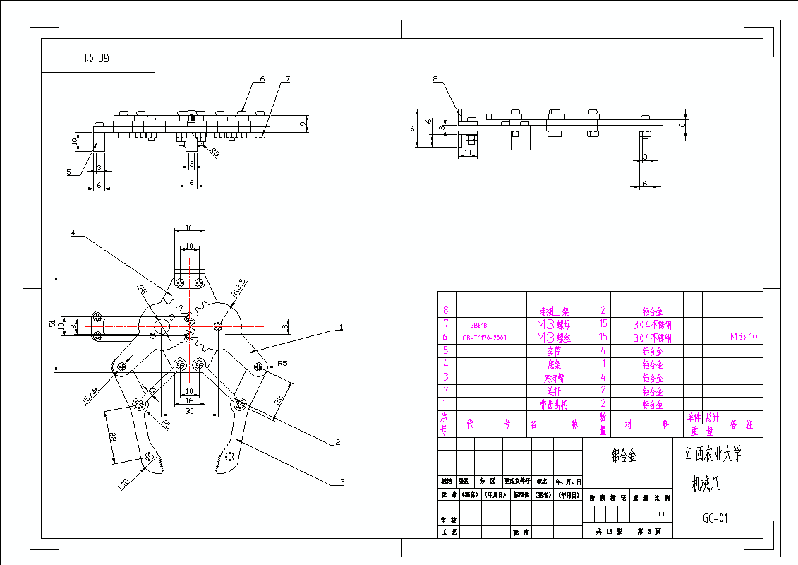
本文对基于五自由度机械手的遥控智能车进行了总体设计及分析,包括整体结构设计、机械臂零件和小车底盘零件选用和分析、机械臂关节驱动舵机选用、小车减速箱和驱动电机选用、五自由度模拟机械臂的设计、遥控端电路和接收端电路设计,遥控端和接收端程序设计等。 本设计还做出了实物,能够实现无线灵活控制小车前进后退,左转右转;通过模拟机械臂无线同步控制车载五自由度机械手抓取物体和搬运物体;小车周围环境视频无线实时监控;遥控端一键切换摄像头;一键控制夜灯开闭;一键切换手动遥控小车和小车自主行驶。这个带有机械手的无线小车,可以用于需要远程移动巡逻的地方,也可用于化工厂等危险区域巡逻,搬运小型物体;另外综合了机械和电子多门课程多个重要知识点,并且很好的结合在一起,非常适用于课堂现场实物教学。
温馨提示:
1、题目前面的备注【字母数字编号】为本站整理分类的编号,与课题内容无关,请选题时忽视;
2、若题目上备注三维,则表示文件里包含三维源文件,由于三维组成零件数量较多,为保证预览截图的简洁性,本站将三维文件夹进行了打包。三维及CAD预览截图,均为本站电脑打开软件进行截图的,保证能够打开,下载原件超高清,下载后解压即可;
3、本站所有资源如无特殊说明,都需要本地电脑安装Office2007。图纸软件为AutoCAD,PROE,UG,SolidWorks,CATIA等;
4、本站所有图文资料仅供用户学习参考,不作为任何商用或其他用途;
5、本站不保证下载资源的准确性、安全性和完整性, 不包修改,不支持退换,同时也不承担用户因使用这些下载资源对自己和他人造成任何形式的伤害或损失;
6、 下载文件中如有侵权或不适当内容,请与我们联系,我们立即纠正。