

作品包括:
Word版说明书1份,共74页,约35000字
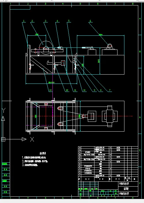
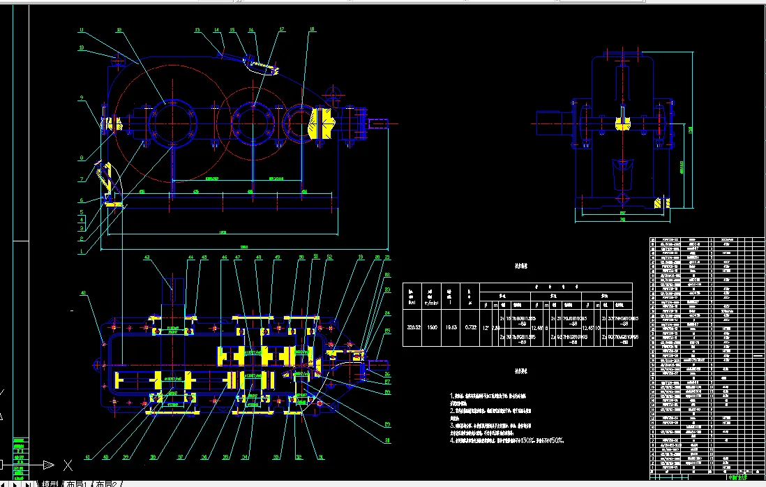
CAD版本图纸,共11张
摘要
本文介绍了带式输送机的发展趋势、种类、工作原理及使用条件、带式输送机的布置方法以及各部件的作用。并且对固定式带式输送机的传动装置进行了具体的设计方法和计算。设计过程中,通过所学相关的计算方法,决定了带式输送机传动装置采用三级圆锥圆柱齿轮减速器,并且对减速器的主要零件以及减速器的箱体部分进行了设计计算和校核,此外,对固定式带式输送机的主要部件进行了选型方法及相关介绍,并对机器故障做出了分析及提出了维护方法。
关键词:带式输送机;传动装置;设计;计算
目录
1. 绪论
1.1 带式输送机的发展趋势……………………………………………………(1)
1.2 带式输送机的分类…………………………………………………………(1)
1.3 带式输送机的工作原理、使用条件及优缺点…………………………… (3)
1.4 带式输送机的布置形式……………………………………………………(6)
1.5 倾角…………………………………………………………………………(7)
1.6 带式输送机的主要部件……………………………………………………(8)
2固定式带式输送机的设计计算
2.1 设计方案的确定…………………………………………………………(11)
2.2有关参数的确定…………………………………………………………(11)
2.2.1 输送带选择的类型…………………………………………………(11)
2.2.2 带宽的确定…………………………………………………………(11)
2.2.3 带式输送机圆周力及阻力的计算…………………………………(12)
2.2.4 各点张力计算………………………………………………………(14)
2.2.5 校核垂度……………………………………………………………(15)
2.2.6 校核胶带安全系数…………………………………………………(16)
2.2.7 电动机功率确定……………………………………………………(16)
2.2.8 拉紧力的计算………………………………………………………(16)
2.2.9 输送带层数计算……………………………………………………(16)
2.2.10 托辊的选择和校核………………………………………………(17)
2.3 传动装置的设计与计算…………………………………………………(18)
2.3.1 电机的选择…………………………………………………………(19)
2.3.2 总传动比的分配……………………………………………………(19)
2.3.3 液力耦合器…………………………………………………………(21)
2.3.4 联轴器………………………………………………………………(21)
2.3.5 传动件的设计与计算………………………………………………(23)
3,总结………………………………………………………………………………(59)
主要参考文献………………………………………………………………………(59)
翻译部分……………………………………………………………………………(60)
致谢…………………………………………………………………………………(74)
温馨提示:
1、题目前面的备注【字母数字编号】为本站整理分类的编号,与课题内容无关,请选题时忽视;
2、若题目上备注三维,则表示文件里包含三维源文件,由于三维组成零件数量较多,为保证预览截图的简洁性,本站将三维文件夹进行了打包。三维及CAD预览截图,均为本站电脑打开软件进行截图的,保证能够打开,下载原件超高清,下载后解压即可;
3、本站所有资源如无特殊说明,都需要本地电脑安装Office2007。图纸软件为AutoCAD,PROE,UG,SolidWorks,CATIA等;
4、本站所有图文资料仅供用户学习参考,不作为任何商用或其他用途;
5、本站不保证下载资源的准确性、安全性和完整性, 不包修改,不支持退换,同时也不承担用户因使用这些下载资源对自己和他人造成任何形式的伤害或损失;
6、 下载文件中如有侵权或不适当内容,请与我们联系,我们立即纠正。