

作品包括:
Word版说明书1份,共49页,约15000字
CAD版本图纸,共5张
摘 要
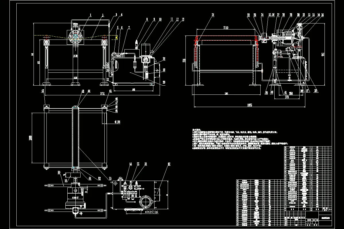
MG300/700-WD型采煤机是一种电牵引大功率采煤机,该机机身矮,装机功率大,所有电机横向布置,机械传动都是直齿传动,电机、行走箱驱动轮组件等均可从老塘侧抽出,故传动效率高,容易安装和维护。
本说明书主要介绍了采煤机截割部的设计计算。MG300/700-WD 型采煤机截割部主要是由四级齿轮传动组成,截割部电机放在摇臂内横向布置,电动机输出的动力经由三级直齿圆柱齿轮和一级行星轮系的传动,最后驱动滚筒旋转。截割部采用四行星单浮动结构,减小了结构尺寸,采用大角度弯摇臂设计,加大了过煤空间,提高了装煤效果。
在设计过程中,对截割部的轴、传动齿轮、轴承和联接用的花键等部件进行了设计计算、强度校核和选用。本说明书主要针对主要部件的设计计算和强度校核进行了叙述和介绍。
此外,还对MG300/700-WD采煤机的使用与维护进行了说明,以便能更好的发挥该采煤机的性能,达到最佳工作效果。
关键词:采煤机;截割部;行星轮系;齿轮传动设计
目录
一.绪论 2
1.2采煤机械概述 2
1.2.2机械化采煤的类型 3
1.3采煤机简述 4
1.端部斜切法 4
2.中部斜切法(半工作面法) 5
1.3.3滚筒采煤机的特点 5
1.3.4煤机与刨煤机的比较 5
二.MG300/700-WD型采煤机 6
三.MG300/700-WD型采煤机截割部的设计 7
3.1 截割部概述 7
3.2 截割部传动总体方案 7
3.2.1 设计总则 7
3.2.2 已知条件 7
3.2.3 摇臂传动方案的确定 7
3.2.4 计算传动效率 7
3.2.5 传动比的分配及配齿情况 8
3.3.1 概述 8
3.3.2 截一齿轮,惰一齿轮,截二大齿轮校核计算 9
Z1与Z2啮合参数及强度计算 9
Z4与Z5啮合参数及强度计算 17
3.4.1 各轴花键的设计与校核 43
1、截一轴花键设计计算 43
2、截二轴设计 44
3、截三轴设计 45
4、截四轴设计 46
四.MG300/700-WD型采煤机截割部说明 47
4.1截割机构 47
4.2 截割机构的传动系统 48
4.3 截割部减速箱 48
五.MG300/700-WD型采煤机其他部件及系统简介 49
1.滑靴组件 49
2.拖缆装置 49
3.喷雾冷却系统 50
六 .MG300/700-WD型采煤机维护与检修 52
1、井上检查与试运行 52
2、采煤机的操作 52
3、采煤机的注油 53
4、采煤机的维护检修 53
七.总结 55
参考文献 56
温馨提示:
1、题目前面的备注【字母数字编号】为本站整理分类的编号,与课题内容无关,请选题时忽视;
2、若题目上备注三维,则表示文件里包含三维源文件,由于三维组成零件数量较多,为保证预览截图的简洁性,本站将三维文件夹进行了打包。三维及CAD预览截图,均为本站电脑打开软件进行截图的,保证能够打开,下载原件超高清,下载后解压即可;
3、本站所有资源如无特殊说明,都需要本地电脑安装Office2007。图纸软件为AutoCAD,PROE,UG,SolidWorks,CATIA等;
4、本站所有图文资料仅供用户学习参考,不作为任何商用或其他用途;
5、本站不保证下载资源的准确性、安全性和完整性, 不包修改,不支持退换,同时也不承担用户因使用这些下载资源对自己和他人造成任何形式的伤害或损失;
6、 下载文件中如有侵权或不适当内容,请与我们联系,我们立即纠正。