

作品包括:
Word版说明书一份,共65页,约24000字
CAD版本图纸,共11张
摘 要
推土机在土石方工程中被广泛应用,推土工作装置是其承受工作载荷的主要部件,并将载荷传递至机体,受力情况非常恶劣。在复杂多变的工作外载荷作用下,分析计算推土工作装置在不同工况、不同部位危险点的应力分布,是设计推土机工作装置所必需的。
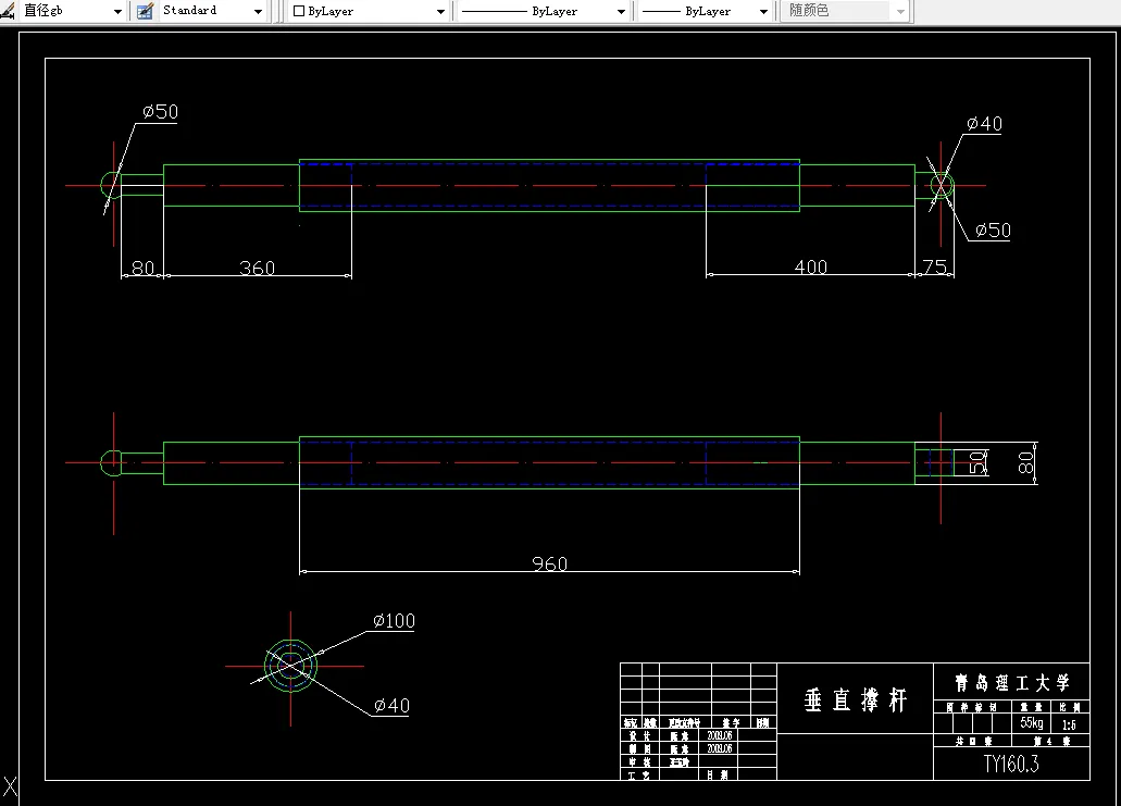
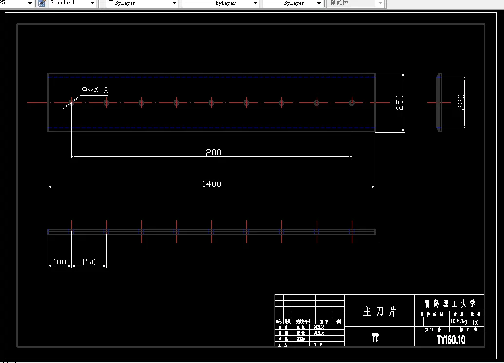
本文进行了 TY160 型推土机的总体设计、推土机工作装置结构设计。工装置由推土刀板、顶推梁、撑杆、液压缸系统等组成。推土板的结构形式直接决定了工作装置的受力状况,此设计的推土板采用半开式结构,其倾斜角的调整是通过液压系统实现的。借助 Pro/E 软件进行推土机工作装置的三维实体设计,可以真实的反映各部分的几何形状和空间位置。
本设计选择了危险工况和计算位置进行了强度校核, 并借助计算机选取危险截面进行了有限元分析,对结果进行了对比分析。经过校核,该结构设计合理,满足使用要求。
关键词:推土机;工作装置;Pro/Engineer;强度校核
目录
摘 要 I
ABSTRACT II
目录 III
第一章 绪 论 1
1.1 推土机概述 1
1.2 课题任务 11
1.3 课题背景和设计意义 11
第二章 推土机总体方案设计 12
2.1 动力装置 12
2.2 传动机构 12
2.3 行走机构 13
2.4 工作装置 13
2.5 液压系统 13
第三章 推土机总体参数选择 15
3.1 推土机重量和接地比压 15
3.2 推土机的行走速度 15
3.3 铲刀的垂直压力及比压入力 16
3.4 推土机的轨距和最小转弯半径 16
3.5 推土机的驶入角、离去角、离地间隙 17
3.6 铲刀的提升高度和切削深度 17
3.7推土机生产率 17
第四章 推土机重心计算 19
4.1 重心位置分析 19
4.2 中心位置的确定 19
第五章 推土机工作装置设计 21
5.1 工作装置结构类型 21
5.2 工作装置主要参数及结构尺寸的确定 22
5.3 推土机工作装置的强度计算 27
5.4 推土机铲刀的强度计算 32
5.5 第三计算位置 41
结论 43
参考资料 44
致谢 45
附件 46
温馨提示:
1、题目前面的备注【字母数字编号】为本站整理分类的编号,与课题内容无关,请选题时忽视;
2、若题目上备注三维,则表示文件里包含三维源文件,由于三维组成零件数量较多,为保证预览截图的简洁性,本站将三维文件夹进行了打包。三维及CAD预览截图,均为本站电脑打开软件进行截图的,保证能够打开,下载原件超高清,下载后解压即可;
3、本站所有资源如无特殊说明,都需要本地电脑安装Office2007。图纸软件为AutoCAD,PROE,UG,SolidWorks,CATIA等;
4、本站所有图文资料仅供用户学习参考,不作为任何商用或其他用途;
5、本站不保证下载资源的准确性、安全性和完整性, 不包修改,不支持退换,同时也不承担用户因使用这些下载资源对自己和他人造成任何形式的伤害或损失;
6、 下载文件中如有侵权或不适当内容,请与我们联系,我们立即纠正。