

作品包括:
说明书1份,共31页,约8900字左右
CAD版本本图纸,共6张
摘 要
注射成形是成形热塑件的主要方法,因此应用范围很广。注射成形是把塑料原料放入料筒中经过加热熔化,使之成为高黏度的流体,用柱塞或螺杆作为加压工具,使熔体通过喷嘴以较高压力注入模具的型腔中,经过冷却、凝固阶段,而后从模具中脱出,成为塑料制品。
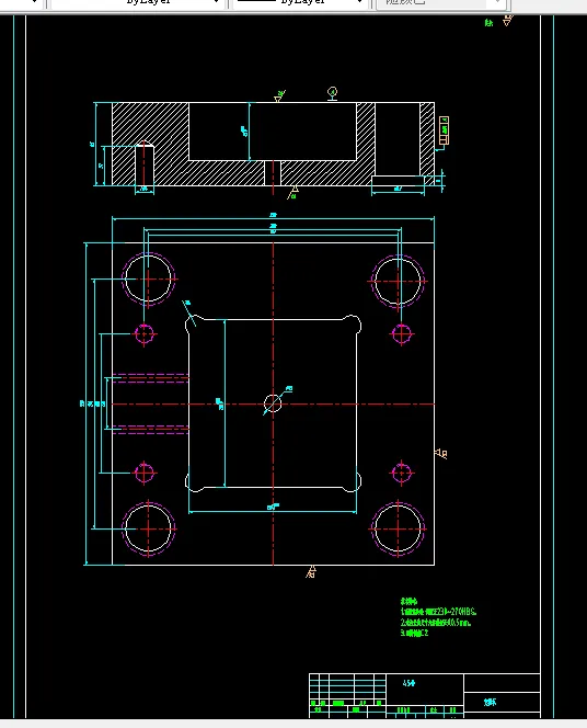
本文以支撑座为对象,详细介绍其注射模设计过程。设计中主要运用UG和AUTOCAD软件,根据制件的零件图进行零件的三维造型,并在对该模型进行成型性分析的基础上,进行了必要的计算和结构设计。采用注塑模具向导,提高了设计效率。最后通过Autocad完成工程图的制作,并结合其计算过程和设计方案整理出模具设计说明书。
关键词:支撑座;注射模;UG
目 录
1.绪 论 1
2.塑件分析 4
2.1塑件工艺性分析 4
2.2 塑件材料分析 5
3.塑件的成型过程 7
4.注射机的选择 8
4.1注塑机概况 8
4.2注塑机的分类 8
4.3注塑机的选择 8
5. 模具结构设计 11
5.1 分型面的确定 11
5.2 成型零件的尺寸计算 12
5.3浇注系统的设计 15
5.4导向机构的设计 18
5.5排气系统的设计 19
5.6冷却系统的设计 20
6、校核注射机有关工艺参数 21
6.1、注射量的校核 21
6.2、锁模力与注射压力 21
6.3、模具厚度H 22
7.模具总体结构 23
结束语 24
致谢 25
参考文献 26
温馨提示:
1、题目前面的备注【字母数字编号】为本站整理分类的编号,与课题内容无关,请选题时忽视;
2、若题目上备注三维,则表示文件里包含三维源文件,由于三维组成零件数量较多,为保证预览截图的简洁性,本站将三维文件夹进行了打包。三维及CAD预览截图,均为本站电脑打开软件进行截图的,保证能够打开,下载原件超高清,下载后解压即可;
3、本站所有资源如无特殊说明,都需要本地电脑安装Office2007。图纸软件为AutoCAD,PROE,UG,SolidWorks,CATIA等;
4、本站所有图文资料仅供用户学习参考,不作为任何商用或其他用途;
5、本站不保证下载资源的准确性、安全性和完整性, 不包修改,不支持退换,同时也不承担用户因使用这些下载资源对自己和他人造成任何形式的伤害或损失;
6、 下载文件中如有侵权或不适当内容,请与我们联系,我们立即纠正。