

作品包括:
设计说明书一份,共32页,约14000字
任务书一份.
开题报告一份.
外文翻译一份
CAD版本图纸,共6张
A0-冲孔落料连续模.dwg
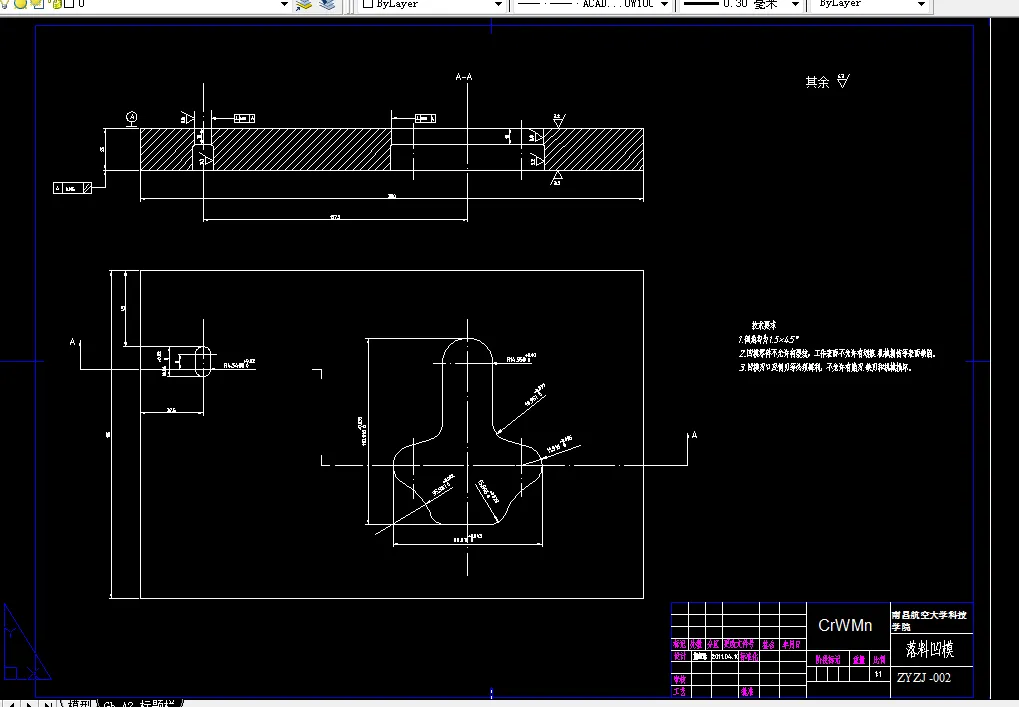
A2-落料凹模.dwg
A3-落料凸模.dwg
A4-冲孔凸模.dwg
A3-毛坯.dwg
A3-座椅支架零件图.dwg
目录
第一章 绪论
1.1 选材的依据及课题的意义…………………………………………………(1)
1.2 模具行业现状及发展趋势…………………………………………………(1)
1.3 内容几实验方案……………………………………………………………(2)
1.4 主要特色几工作进度………………………………………………………(2)
第二章 工艺方案分析………………………………………………………(3)
2.1 零件的工艺性分析…………………………………………………………(3)
2.2 加工工艺方案的确定………………………………………………………(4)
第三章 冲裁模设计……………………………………………………… (4)
3.1 毛胚尺寸计算及工艺分析…………………………………………………(4)
3.1.1 毛胚尺寸计算…………………………………………………………… (4)
3.1.2 冲裁工艺分析…………………………………………………………… (5)
3.2 工件排样与搭边……………………………………………………………(6)
3.2.1排样……………………………………………………………………… (6)
3.2.2 搭边……………………………………………………………………… (8)
3.3 冲裁间隙……………………………………………………………………(9)
3.4 冲裁力的预算………………………………………………………………(9)
3.5 模具压力中心的计算…………………………………………………… (11)
3.6 凸凹模刃口尺寸的计算………………………………………………… (12)
3.7 模具的总体设计………………………………………………………… (17)
3.7.1 冲模的闭合高度…………………………………………………………(17)
3.8 机构件与标准件的选用………………………………………………… (17)
3.8.1 模架…………………………………………………………………… (17)
3.8.2 模座…………………………………………………………………… (18)
3.8.3 模柄…………………………………………………………………… (18)
3.8.3定位装置…………………………………………………………………(18)
3.9 冲模设备选择…………………………………………………………… (18)
3.9.1 冲裁设备类型的选择………………………………………………… (18)
3.9.2 压力机选用原则……………………………………………………… (19)
第四章 弯曲模设计………………………………………………………(20)
4.1 分析零件的冲压性………………………………………………………(20)
4.2 弯曲回弹…………………………………………………………………(22)
4.2.1 影响回弹量的因素………………………………………………………(22)
4.2.2 减少回弹量的措施………………………………………………………(23)
4.3 进行弯曲力的计算……………………………………………………… (24)
4.4 估算模具的各部分尺寸 初步选择压力机和模架………………………(25)
4.5 主要部件的初步设计及选用…………………………………………… (26)
4.6 模架 导柱 导套及模柄的选用………………………………………… (27)
4.7 压力机的选用………………………………………………………………(27)
4.8 标准件的选用………………………………………………………………(27)
参考文献……………………………………………………………………… (30)
致谢………………………………………………………………………………(31)
附录A……………………………………………………………………………(32)
座椅支架冲压工艺分析及其模具设计
摘要:本设计课题给定的是某摩托车座椅支架,形状简单,同时包括冲裁和弯曲两道工序,其中弯曲相对比较简单。在本次设计中关键的地方是合理的选择模具间隙,在模具的设计中间隙直接影响着冲裁件的质量,所以合适的间隙的选择应以工件断面质量、冲裁件精度、模具寿命和加工质量四项为依据,并且进行适当的分类。在模具设计部分重点在于凸、凹模的设计,它们都要先进行试模合格以后再热处理,因为它影响着冲裁件是否合格。
由于本零件属于大批量生产,而且制作精度要求不高,需要多工序冲成的小型零件。所以冲裁我选择了级进模,以便能满足制造要求的同时也增加了操作的安全性及减少模具和设备的数量,从而减少车间的占地面积。
由于本人水平有限,本论文中必然存在不少纰漏及错误之处,敬请评阅老师批评指正。
关键词:冲裁间隙 级进模 段面质量 模具寿命
温馨提示:
1、题目前面的备注【字母数字编号】为本站整理分类的编号,与课题内容无关,请选题时忽视;
2、若题目上备注三维,则表示文件里包含三维源文件,由于三维组成零件数量较多,为保证预览截图的简洁性,本站将三维文件夹进行了打包。三维及CAD预览截图,均为本站电脑打开软件进行截图的,保证能够打开,下载原件超高清,下载后解压即可;
3、本站所有资源如无特殊说明,都需要本地电脑安装Office2007。图纸软件为AutoCAD,PROE,UG,SolidWorks,CATIA等;
4、本站所有图文资料仅供用户学习参考,不作为任何商用或其他用途;
5、本站不保证下载资源的准确性、安全性和完整性, 不包修改,不支持退换,同时也不承担用户因使用这些下载资源对自己和他人造成任何形式的伤害或损失;
6、 下载文件中如有侵权或不适当内容,请与我们联系,我们立即纠正。