

作品包括:
说明书1份,共40页,约14000字左右
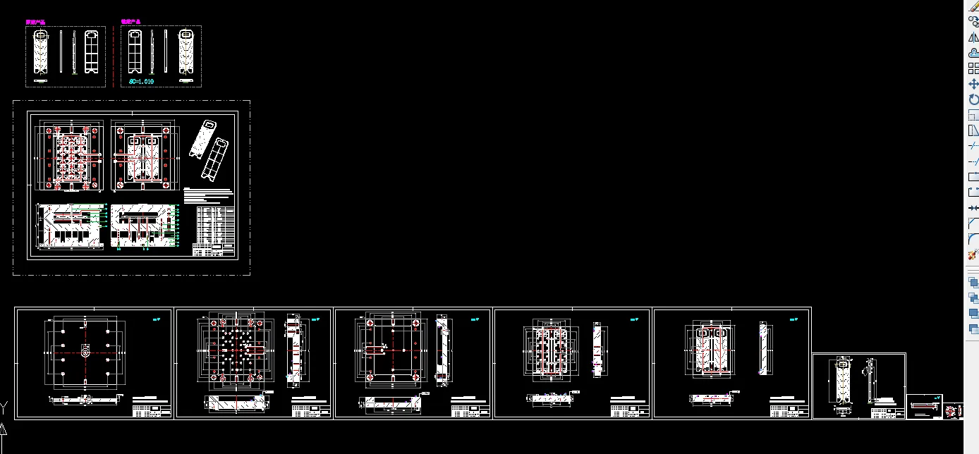
CAD版本图纸,共13张
UG三维产品图一份
家用塑料洗衣板造型设计及其成型模具设计
摘 要
本设计是对给定的材料为PP大尺寸,一般精度的家用洗衣板造型以及进行对其成型模具设计。在综合考虑了经济性、零件的成型工艺性以及复杂程度等诸多因素的基础上进行成型工艺分析与计算的。文中还对注塑模具成型零件和其他相关零件的选择原则及选择方法进行了说明。期间要参考大量与注塑模相关的资料和翻阅各种手册,并通过计算以确定模具结构及尺寸,通过不断的计算与修改,并在指导老师的悉心关怀和耐心指导下进行不间断的反复修改,最终确定画出了装配图和零件图。
确定家用洗衣板的设计方案,即该模具采用一模两腔、的设计方案。然后针对该方案进行了重点论述,主要包括塑件及其注塑模的设计过程、注塑模主要零部件的设计要点等。
关键词:注塑模具设计;模具结构;家用塑料制品
目录
摘 要 I
PP tract II
1绪论 1
1.1 课题来源 1
1.2 课题的研究目的 1
2 塑件结构工艺性分析 2
2.1 塑件造型 2
2.2 塑件分析 3
2.2.1 塑件设计要求 3
2.2.2 塑件结构分析 4
2.2.3 脱模斜度 4
2.3 塑件原材料分析 5
2.3.1 PP材料特性 5
2.3.2 PP塑料主要用途 5
2.3.3 塑料材料成型性能 5
2.3.4 PP成型温度条件 6
2.3.5. 塑件的公差与表面质量 6
3 拟定注塑模具结构 8
3.1 分型面的确定 8
3.2.型腔数目的确定 8
3.3 拟选注射机型号 10
3.3.1 注射量的计算 10
3.3.2 选择注射机 10
4注射机相关参数的校核 12
4.1 注射量的校核 12
4.2注射压力校核 12
4.3 锁模力的校核 12
4.4 注射模安装尺寸的校核 13
5浇注系统的设计 15
5.1主流道设计 15
5.2分流道设计 16
5.3浇口的设计 17
5.4 浇注系统的平衡 17
6 推出机构设计 18
6.1推出结构的原则 18
6.2脱模力的计算 19
7.温度调节系统的设计 21
8 合模导向机构设计 23
8.1导柱的设计 23
8.2导套的设计 23
9 结构零部件的设计 25
9.1成型零件的结构设计及计算 26
9.2 动定模板的长、宽尺寸的确定 27
9.3动模(A)板和定模(B)板厚度的确定 27
9.4 模具厚度尺寸的选定 28
10 零件工艺路线 29
11 总 结 30
11.1塑件三维造型及工程图绘制总结 30
11.2 塑件模具设计总结 30
致谢 32
参考文献 33
附录 34
温馨提示:
1、题目前面的备注【字母数字编号】为本站整理分类的编号,与课题内容无关,请选题时忽视;
2、若题目上备注三维,则表示文件里包含三维源文件,由于三维组成零件数量较多,为保证预览截图的简洁性,本站将三维文件夹进行了打包。三维及CAD预览截图,均为本站电脑打开软件进行截图的,保证能够打开,下载原件超高清,下载后解压即可;
3、本站所有资源如无特殊说明,都需要本地电脑安装Office2007。图纸软件为AutoCAD,PROE,UG,SolidWorks,CATIA等;
4、本站所有图文资料仅供用户学习参考,不作为任何商用或其他用途;
5、本站不保证下载资源的准确性、安全性和完整性, 不包修改,不支持退换,同时也不承担用户因使用这些下载资源对自己和他人造成任何形式的伤害或损失;
6、 下载文件中如有侵权或不适当内容,请与我们联系,我们立即纠正。