

作品包括:
说明书1份,共29页,约9300字左右
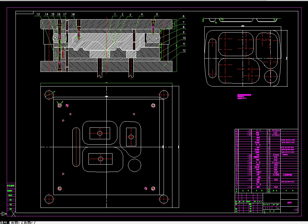
CAD版本本图纸,共15张
第一章 绪 论 1
1.1 冲压技术的现状 1
1.2 冲压技术的发展趋势 2
1.3 复合模的特点和概括 3
1.4 国内模具CAD技术的未来 3
第二章 五格不锈钢餐盘冲压工艺设计 4
2.1 五格不锈钢餐盘零件工艺分析 4
2.2 五格不锈钢餐盘排样设计方案 5
2.3 五格不锈钢餐盘成型模总体设计结构 6
2.4 成型回弹的控制 7
第三章 五格不锈钢餐盘展开图计算和分析 8
第四章 五格不锈钢餐盘工艺设计 8
4.1. 材料利用率与压力中心的计算 9
4.1.1 材料利用的计算 8
4.1.2 压力中心的的计算 10
4.2 冲压力的计算 11
4.2.1 切边力计算 11
4.2.2 卸料力 推件力的计算 12
4.3 压力机的初步选择 13
第五章 模具主要零件设计 14
5.1. 凸、凹模刃口尺寸的分析与计算 15
5.2凹模的设计 16
5.2.1 凹模各孔口位置尺寸 16
5.2.2 确定凹模刃口形势 17
5.2.3 确定凹模厚度 17
5.2.4 确定凹模周界尺寸 18
5.3凸模的设计 19
5.4计算成型凸、凹模工作部分尺寸 19
5.4.1 凸、凹模的圆角半径 20
5.4.2 凸、凹模间隙 20
5.5 凸模固定板的设计 21
5.6 卸料板设计 21
5.7 垫板设计 21
5.8聚氨酯橡胶设计设计 21
5.9 定距、定位装置 22
5.10 模具装配示意图 24
第六章 模架的选择及压力机安装尺寸的校核 25
第七章 螺钉与销钉设计 25
设计总结 26
致谢语 27
参考资料 28
温馨提示:
1、题目前面的备注【字母数字编号】为本站整理分类的编号,与课题内容无关,请选题时忽视;
2、若题目上备注三维,则表示文件里包含三维源文件,由于三维组成零件数量较多,为保证预览截图的简洁性,本站将三维文件夹进行了打包。三维及CAD预览截图,均为本站电脑打开软件进行截图的,保证能够打开,下载原件超高清,下载后解压即可;
3、本站所有资源如无特殊说明,都需要本地电脑安装Office2007。图纸软件为AutoCAD,PROE,UG,SolidWorks,CATIA等;
4、本站所有图文资料仅供用户学习参考,不作为任何商用或其他用途;
5、本站不保证下载资源的准确性、安全性和完整性, 不包修改,不支持退换,同时也不承担用户因使用这些下载资源对自己和他人造成任何形式的伤害或损失;
6、 下载文件中如有侵权或不适当内容,请与我们联系,我们立即纠正。