

作品包括:
说明书1份,共22页,约8600字左右
CAD版本本图纸,共3张
摘要
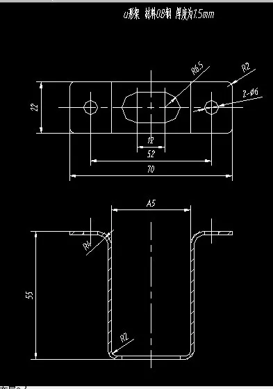
本文主要进行U形架的冲压模具设计。该冲压模具的特点是具有对称机构。在设计过程中分析了保持架冲压件的工艺特点,介绍了弯桶的冲压模结构及模具的整体设计过程,并分析和阐述了模具凸、凹模零件及各标准件的选材及选用原则和方法、保持架的结构要素、零件的尺寸公差和精度的选择、以及压力机的选择和校核。
我所设计的是弯桶的弯曲工艺与模具设计,这套模具是弯曲模,属于冲压模具的一种,但比起冲压模,本套模具突出了弯曲模的特点。弯桶采用单工序冲模,需要三道工序,分别是落料,冲孔、弯曲、二次弯曲。我所设计的为第二次弯曲的弯曲模。
关键词:弯曲模具 连接板 弯曲成形
目录
摘要 1
1 绪论 2
2.弯曲工艺性分析 5
2.1分析零件的冲压工艺性并确定工艺方案 5
2.2弯曲件的工艺性 6
2.3 最小相对弯曲半径的确定 6
3.改进零件的结构设计 8
3.1采用热处理工艺 8
3.2从模具结构采取措施 8
4.弯曲工艺力的计算 10
4.1自由弯曲时的弯曲力的计算公式: 10
4.2.校正弯曲时的弯曲力 10
5.弯曲模主要工作零件结构参数的确定 12
5.1弯曲凸模和凹模的圆角半径 12
5.2凹模工作部分深度 12
5.3弯曲凹、凸模的间隙 13
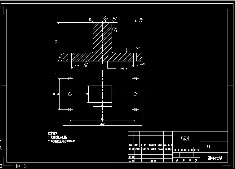
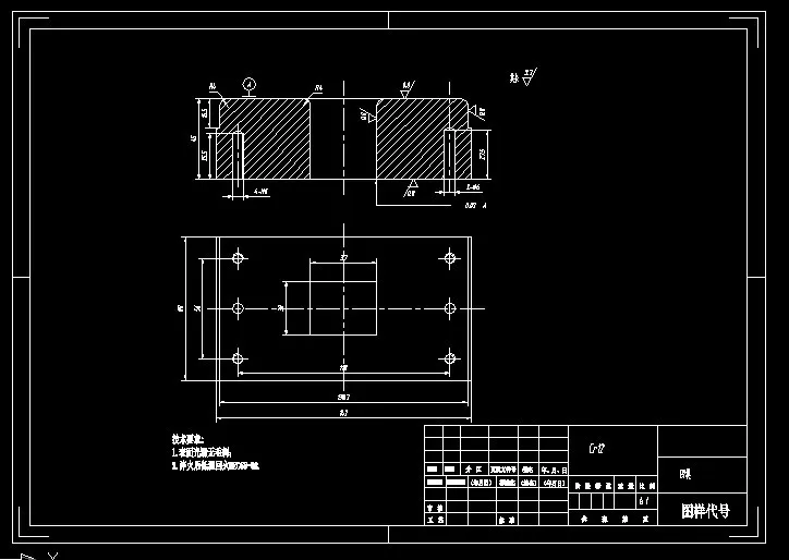
6.模具总体设计 14
6.1模具类型和结构形式的确定: 14
6.1.1 模具结构类型的确定 14
6.1.2 工件的定位方式的确定 14
6.1.3出件方式的确定 14
6.2 模具零件的设计与选用 14
6.2.1 工作零件的设计 14
6.2.2支承固定零件的设计与选用 14
6.2.3模架及其零件的选用: 14
6.3 模具图样的绘制及压力机校核 15
6.3.1 模具装配图的绘制 15
6.3.2 模具零件图的绘制 15
6.3.3 压力机技术参数的校核 15
7.模具材料的选用及其他零部件的设计 16
7.1 弯曲模用钢应具有的力学性能 16
7.2弯曲模零件材料选用原则 16
总 结 18
致 谢 19
参考文献 20
温馨提示:
1、题目前面的备注【字母数字编号】为本站整理分类的编号,与课题内容无关,请选题时忽视;
2、若题目上备注三维,则表示文件里包含三维源文件,由于三维组成零件数量较多,为保证预览截图的简洁性,本站将三维文件夹进行了打包。三维及CAD预览截图,均为本站电脑打开软件进行截图的,保证能够打开,下载原件超高清,下载后解压即可;
3、本站所有资源如无特殊说明,都需要本地电脑安装Office2007。图纸软件为AutoCAD,PROE,UG,SolidWorks,CATIA等;
4、本站所有图文资料仅供用户学习参考,不作为任何商用或其他用途;
5、本站不保证下载资源的准确性、安全性和完整性, 不包修改,不支持退换,同时也不承担用户因使用这些下载资源对自己和他人造成任何形式的伤害或损失;
6、 下载文件中如有侵权或不适当内容,请与我们联系,我们立即纠正。