

作品包括:
说明书1份,共37页,约12000字左右
CAD版本图纸,共16张
摘 要
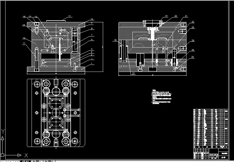
从分析塑料零件注塑模具设计的全过程,并从其加工工艺性出发,选取了较为合理的设计方案,经工艺计算并初步确定模具结构方案,最后进行模具各个部分零件的设计。由于本产品结构比较复杂,模具结构及制造工艺相对较为复杂,生产批量为大批量,精度为IT14,则成本会比较高。且模具采用的是一模两腔的设计,所以增加了结构的复杂性,通过对抽芯机构的计算和设计,同时把握模具相关运动部件的设计,其中包括定位零件和成型零件尺寸的计算和校核。该模具采用了一次分型,使制件的主流道凝料和分流道凝料从模具的成型板中脱出,最后利用推杆推出作用,使制件脱离型芯,达到制件的生产。同时,本模具的亮点和难点在于有两个带角度的内侧抽芯和其型芯型腔的加工复杂性上,但通过比较合理的斜顶装置可以很完善的达到内抽的效果,并且该机构制造相对简单,可降低模具成本。在一些零件的选用上也是尽量选取标准件以降低模具造价,型芯和型腔都采用镶拼式的结构,同时运用直通式冷却水道,降低加工难度和成本。最后分析模具装配和型腔的加工工艺性。
关键词:注塑模;分型面;抽芯
目 录
摘 要 I
Abstract II
1 前言 1
1.1 概述 1
1.2 国内外模具的相关情况 2
1.3研究本课题的意义 3
2 塑料ABS分析 6
2.1基本特性 6
2.2成型特性 6
2.3综合性能 6
2.4ABS的注射工艺参数 7
3 塑料模的总体设计 8
3.1塑件的形状尺寸 8
3.2型腔数目的决定及排布 8
3.3注射机的选择 9
3.4分型面确定 9
3.5模架的选择 10
3.5.1型腔壁厚的计算 10
3.5.2凹模型腔底部高度 11
3.5.3模架的选择 11
4 成型尺寸及浇注系统设计 12
4.1型腔的内径计算 12
4.2型腔的深度尺寸计算 12
4.3型芯的外径计算 12
4.4型芯的高度计算 13
4.5浇注系统的初步计算 13
5 导柱导向机构的设计 15
5.1导柱导向机构的作用 15
5.2导柱导套的选择 15
6 脱出机构设计 16
6.1推出机构的组成 16
6.2设计原则 16
6.3脱模力的计算 16
6.4推板脱出机构计算 17
6.5脱模机构设计 18
6.5.1简单脱模 18
6.5.2侧向抽芯机构设计 19
7 排气温控系统设计 22
7.1温控系统设计 22
7.2注射模冷却系统设计原则 22
7.3冷却系统的结构设计 23
7.4 冷却水孔直径计算 24
7.5求冷却水在水孔里的流速 24
8 注射机与模具型腔型芯强度校核 25
8.1注射机的校核 25
8.2型腔型芯的强度校核 25
9 模具的装配、试模与维修 26
9.1模具的装配 26
9.2模具装配的主要内容 26
9.2.1型芯装配 26
9.2.2型腔的装配加工 26
9.2.3导柱、导套的装配 26
9.2.4顶杆装配加工 26
9.2.5浇口套的装配加工 26
9.3装配顺序 27
9.4试模 27
9.5模具的维修 27
10 模具装配图 28
11 模具可行性分析 29
11.1本模具的特点 29
11.2市场效益及经济效益分析 29
参考文献 30
总结 31
致 谢 32
温馨提示:
1、题目前面的备注【字母数字编号】为本站整理分类的编号,与课题内容无关,请选题时忽视;
2、若题目上备注三维,则表示文件里包含三维源文件,由于三维组成零件数量较多,为保证预览截图的简洁性,本站将三维文件夹进行了打包。三维及CAD预览截图,均为本站电脑打开软件进行截图的,保证能够打开,下载原件超高清,下载后解压即可;
3、本站所有资源如无特殊说明,都需要本地电脑安装Office2007。图纸软件为AutoCAD,PROE,UG,SolidWorks,CATIA等;
4、本站所有图文资料仅供用户学习参考,不作为任何商用或其他用途;
5、本站不保证下载资源的准确性、安全性和完整性, 不包修改,不支持退换,同时也不承担用户因使用这些下载资源对自己和他人造成任何形式的伤害或损失;
6、 下载文件中如有侵权或不适当内容,请与我们联系,我们立即纠正。