

作品包括:
说明书1份,共35页,约7800字左右
CAD版本图纸,共16张
摘 要
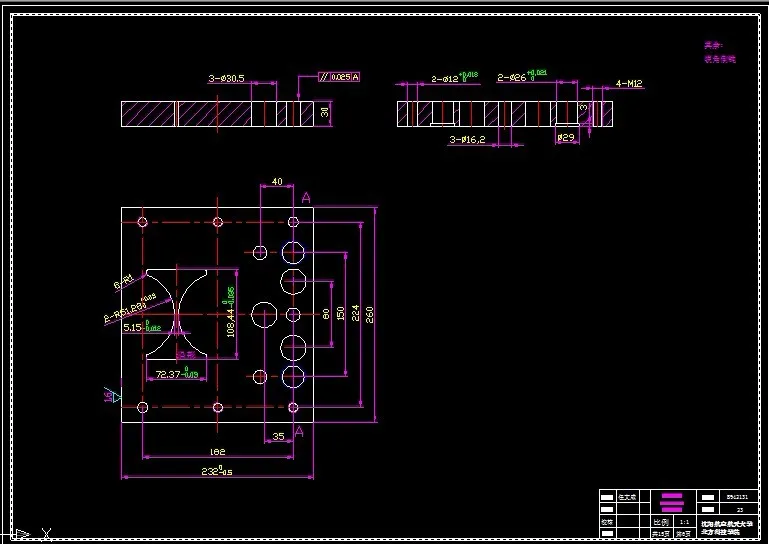
我本次设计的零件为带凸缘圆筒形件,采用的材料是10钢,厚度 ,该零件外形简单对称,利于合理排样、减小废料,直线、曲线的连接处为圆角过渡。材料为一般用钢,采用冲压加工经济性良好。
首先对零件进行了工艺性分析,然后选级进模作为该副模具的工艺生产方案,经过计算分析完成该模具的主要设计计算,凸、凹模工作部分的设计计算,还有主要零部件的结构设计,选择合适的模具材料。
进行冲压设计就是根据已有的生产条件,综合考虑影响生产过程顺利进行的各方面因素,合理安排零件的生产工序,最优地选用,确定各工艺参数的大小和变化范围,设计模具,选用设备等,以使零件的整个生产过程达到优质,高产,低耗,安全的目的
关键词:模具 落料 拉深 设计
目 录
前言
1工件的工艺性分析2
1.1 工艺分析2
1.2 确定工艺方案2
2 有凸缘的筒形件的确定4
2.1 工艺计算5
2.2 排样设计7
3 拉深力、压边力和冲裁力的计算9
4.1 拉深力计算9
4.2 压边力计算10
4.3 冲裁力计算10
4 压力机的选择12
5 凸、凹模尺寸的计算13
5.1 凸、凹模加工时工作部分的尺寸计算14
6 凹模设计14
6.1 凸、凹模的选择14
6.2 凸、凹模材料的选取19
7 模具结构设计19
7.1 导向设计19
7.2 模具工作原理19
7.3 空工位设计19
7.4自动送料装置设计20
8 模具总装图
结束语27
致 谢28
参 考 文 献29
温馨提示:
1、题目前面的备注【字母数字编号】为本站整理分类的编号,与课题内容无关,请选题时忽视;
2、若题目上备注三维,则表示文件里包含三维源文件,由于三维组成零件数量较多,为保证预览截图的简洁性,本站将三维文件夹进行了打包。三维及CAD预览截图,均为本站电脑打开软件进行截图的,保证能够打开,下载原件超高清,下载后解压即可;
3、本站所有资源如无特殊说明,都需要本地电脑安装Office2007。图纸软件为AutoCAD,PROE,UG,SolidWorks,CATIA等;
4、本站所有图文资料仅供用户学习参考,不作为任何商用或其他用途;
5、本站不保证下载资源的准确性、安全性和完整性, 不包修改,不支持退换,同时也不承担用户因使用这些下载资源对自己和他人造成任何形式的伤害或损失;
6、 下载文件中如有侵权或不适当内容,请与我们联系,我们立即纠正。