

作品包括:
word说明书一份,30页,约14000字左右
任务书一份
开题报告一份
CAD版本图纸,共17张
PROE三维图纸
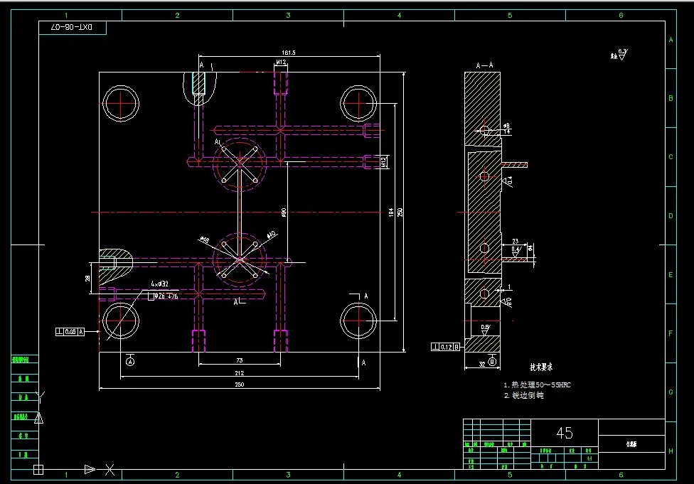
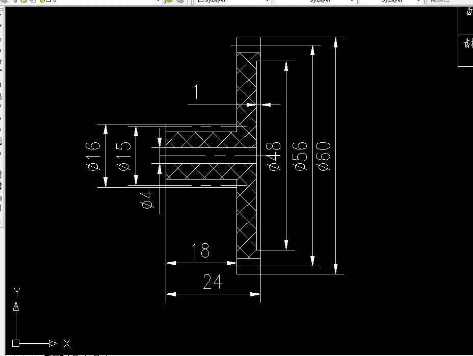
塑料齿轮模具设计
摘 要
本课题来XXXX塑业,任务是塑料齿轮模具设计及其型腔仿真加工.注射成型是塑料成型的一种重要方法,它主要适用于热塑性塑料的成型,可以一次成型形状复杂的精密塑件。本课题就是将双联齿轮作为设计模型,将注射模具的相关知识作为依据,阐述塑料注射模具的设计过程。
本设计对双联齿轮进行的注塑模设计,利用proe软件对塑件进行了实体造型,对塑件结构进行了工艺分析。明确了设计思路,确定了注射成型工艺过程并对各个具体部分进行了详细的计算和校核。如此设计出的结构可确保模具工作运用可靠,保证了与其他部件的配合。 最后用mastercam仿真加工型腔。
本课题通过对双联齿轮杯的注射模具设计,巩固和深化了所学知识,取得了比较满意的效果,达到了预期的设计意图。
关键词:塑料模具;注射成型;模具设计;
目 录
1 前言 1
2 模具总体设计 3
2.1 制品的分析 3
2.2模具总体方案设计 4
2.3注射机的选择 5
2.4型腔数的确定 5
2.5型腔的布局 6
2.6分型面的确定 7
2.7浇注系统设计 7
2.7.1浇口的形式 7
2.7.2流道、主流道衬套及定位环的设计 8
2.7.3冷料井的设计 9
2.8冷却系统的设计 10
2.9模架的选择 11
2.10导柱、导套的选择 12
2.10.1导柱的选择 12
2.10.2导套的选择 12
2.11顶杆设计 13
2.12复位杆 14
2.13锁模力的校核 14
2.14开模行程的校核 15
2.15总装配图及三维造型图 15
2.15.1总装配图 15
2.15.2模具的三维造型图 17
3工艺分析及仿真加工 18
3.1模具的注塑工艺分析 18
3.2模具成型件制造工艺与加工工序 19
3.2.1模具成型件制造工艺 19
3.2.2模具成型件的加工工艺 20
3.3数控仿真 20
4结论 25
参考文献 26
致谢 27
附录 28
温馨提示:
1、题目前面的备注【字母数字编号】为本站整理分类的编号,与课题内容无关,请选题时忽视;
2、若题目上备注三维,则表示文件里包含三维源文件,由于三维组成零件数量较多,为保证预览截图的简洁性,本站将三维文件夹进行了打包。三维及CAD预览截图,均为本站电脑打开软件进行截图的,保证能够打开,下载原件超高清,下载后解压即可;
3、本站所有资源如无特殊说明,都需要本地电脑安装Office2007。图纸软件为AutoCAD,PROE,UG,SolidWorks,CATIA等;
4、本站所有图文资料仅供用户学习参考,不作为任何商用或其他用途;
5、本站不保证下载资源的准确性、安全性和完整性, 不包修改,不支持退换,同时也不承担用户因使用这些下载资源对自己和他人造成任何形式的伤害或损失;
6、 下载文件中如有侵权或不适当内容,请与我们联系,我们立即纠正。