

作品包括:
Word版说明书1份,15页,约5300字
CAD版本图纸,共17张
摘 要
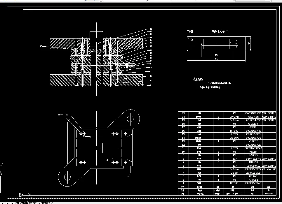
本文应用所学到的理论知识,分析了垫片的结构和成形工艺,计算了毛坯尺寸和冲压力。为了提高垫片的生产效率,设计了级进模的结构,经过工艺分析、结构设计,论证了其可能性,保证了制品的质量。在模具设计中,为了提高速度和效率,充分利用已经掌握的知识和资源。利用冲模设计手册软件版快速设计冲压模具。实践证明,确实提高了设计的速度和效率。本模具设计中,由于卸料力较大,采用了组合弹簧力较大的优点解决了这一问题。在模具结构中,用顶板做凸模的定位元件,由于配合定位的距离小,容易造成凸模的折断,因而设计了凹模导向凸模,增强了凸模的强度。
关键词:落料,垫片,级进模,模具设计
目 录
摘 要I
目 录I
1、绪论1
2、设计课题及设计任务1
2.1课题研究的目的和基本要求1
2.1.1目的1
2.1.2基本要求1
2.2设计任务书1
3、工艺方案分析及确定2
3.1零件的工艺分析2
3.1.1工艺方案的确定2
3.1.2排样的确定2
3.1.3排样及排样方式的确定2
3.1.4条料宽度3
3.1.5搭边及搭边值3
3.1.6材料的利用率3
4、工艺设计与计算4
4.1冲压力与冲压中心的计算4
4.1.1冲裁力的计算4
4.1.2卸料力、推件力计算4
4.1.3压力机公称压力的确定5
4.2压力中心的计算5
5、凸、凹模刃口尺寸确定5
5.1凹模尺寸5
5.2凸模尺寸5
5.3凸凹模刃口尺寸6
6、其他零件7
6.1导料板7
6.2侧刃、侧刃挡块7
6.3卸料版7
6.4凸模固定板7
6.5上下垫板8
6.6橡胶8
6.7上下模座8
7、典型零件加工工艺方案8
8、冲压设备选用8
致 谢1
参考文献2
温馨提示:
1、题目前面的备注【字母数字编号】为本站整理分类的编号,与课题内容无关,请选题时忽视;
2、若题目上备注三维,则表示文件里包含三维源文件,由于三维组成零件数量较多,为保证预览截图的简洁性,本站将三维文件夹进行了打包。三维及CAD预览截图,均为本站电脑打开软件进行截图的,保证能够打开,下载原件超高清,下载后解压即可;
3、本站所有资源如无特殊说明,都需要本地电脑安装Office2007。图纸软件为AutoCAD,PROE,UG,SolidWorks,CATIA等;
4、本站所有图文资料仅供用户学习参考,不作为任何商用或其他用途;
5、本站不保证下载资源的准确性、安全性和完整性, 不包修改,不支持退换,同时也不承担用户因使用这些下载资源对自己和他人造成任何形式的伤害或损失;
6、 下载文件中如有侵权或不适当内容,请与我们联系,我们立即纠正。