

作品包括:
WORD版设计说明书1份,共37页,约14000字
任务书一份
CAD版本图纸,共12张
摘 要
随着塑料工业的飞速发展,塑料模具对人们的生活影响越来越大了,已成为衡量一个国家制造业水平高低的重要标志,并在很大程度上决定着产品质量、效益和新产品的开发能力。我国的模具水平在近几年也得到了很大的发展。
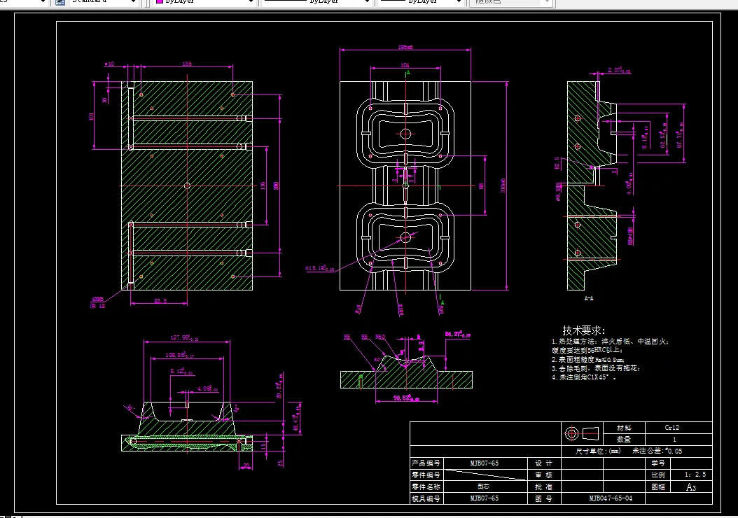
在本次设计过程中,主要设计了计算机键盘的注射模具。分析了塑件的形状尺寸,拟订了模具的总体结构设计方案,并选定了所需的注射机的型号,设计了模具的成型部分,浇注系统和冷却系统等,并对模具进行了分模。重点设计了模具的成型部分,并绘制了模具的装配图和动模定模图。
关键词:注射模;动模;定模;分模
目 录
摘 要 1
目 录 2
引言 4
1 绪论 4
1.1 模具工业的概况 4
2 确定模具结构方案 5
2.1 塑件分析 5
2.1.1. 塑件外形分析 5
2.1.2. 塑件的尺寸、公差及设计基准 6
2.1.3. 塑件所用塑料名称、性能及工艺参数 6
2.1.4. 塑件结构要素 6
2.2 注射机的选择 7
2.3 拟定模具结构方案 8
3 模具设计的有关计算 9
3.1 浇注系统 9
3.1.1 浇注系统的总体构成 9
3.1.2 主流道设计 9
3.1.3 分流道设计 10
3.1.4 浇口设计 11
3.2 分型面的设计 12
3.2.1 排气槽的设计 13
3.3 成型部分及零部件 14
3.3.1 型腔数的确定 14
3.3.2 一般凹凸模结构设计 14
3.3.3 成型零件工作尺寸 14
3.3.4 型腔壁厚计算 16
3.4 脱模机构 18
3.4.1 脱模机构的构成与功能 18
3.4.2 取出机构的方式 18
3.4.3 脱出机构设计原则 18
3.4.4 塑件的脱出机构设计 20
3.5 浇注系统凝料的脱出部件设计 24
4 拉料及导柱设计 25
4.1 拉料机构 25
4.2 侧向抽芯及合模导向机构 25
4.2.1 侧向抽芯机构设计 25
4.2.2 合模导向机构设计 25
4.3 冷却系统 28
4.3.1 冷却装置设计分析 28
4.3.2 冷却装置的理论计算 28
4.3.3 冷却回路的布置 30
5 模体与支承连接零件 32
5.1 模体结构设计 32
5.2 其他零件——吊装设计 33
结束语 33
致 谢 35
参考文献 36
温馨提示:
1、题目前面的备注【字母数字编号】为本站整理分类的编号,与课题内容无关,请选题时忽视;
2、若题目上备注三维,则表示文件里包含三维源文件,由于三维组成零件数量较多,为保证预览截图的简洁性,本站将三维文件夹进行了打包。三维及CAD预览截图,均为本站电脑打开软件进行截图的,保证能够打开,下载原件超高清,下载后解压即可;
3、本站所有资源如无特殊说明,都需要本地电脑安装Office2007。图纸软件为AutoCAD,PROE,UG,SolidWorks,CATIA等;
4、本站所有图文资料仅供用户学习参考,不作为任何商用或其他用途;
5、本站不保证下载资源的准确性、安全性和完整性, 不包修改,不支持退换,同时也不承担用户因使用这些下载资源对自己和他人造成任何形式的伤害或损失;
6、 下载文件中如有侵权或不适当内容,请与我们联系,我们立即纠正。