

作品包括:
Word版设计说明书1份,共44页,约20000字
外文翻译一份
CAD版本图纸,共14张
电话机底座注塑模具设计
摘要
模具是工业生产的基础工艺装备,也是发展和实现少无切削技术不可缺少的工具。它在工业生产中使用极为广泛,是当代工业生产的重要手段和工艺发展方向,许多现代工业的发展和技术水平的提高,在很大程度上取决于模具工业的发展水平。因此,模具技术发展状况及水平的高低,直接影响到工业产品的发展。也是衡量一个国家工艺水平的重要标志之一。
本文主要论述了塑料注射模的基本原理和设计过程,并着重讲述了充电器外壳注射模的设计过程。首先,讲述了模具的作用和国内外的发展状况及其发展方向。然后论述了方案的选择和确定。再次对于所确定的方案给出了详细的设计过程和计算过程,最后还对所设计的模具进行了经济性可行性分析。此次设计中,最关键的是确定型芯和型腔的结构,此外还分析了模具受力,脱模机构的设计、冷却系统的设计等。
总的来说,所设计的这套模具经济合理,可行性强,生产方便,是一套实用性较强的模具。
关键词:注射模;定模;动模;抽芯;斜导柱
目 录
1 绪论 1
1.1 题目背景意义 1
1.2 塑料工业简介 1
1.3 我国塑料模具现状 2
1.4 塑料模具发展趋势 3
2 制品的特性分析 4
2.1 制品(电话机底座)的简介 4
2.1.1 对制品的分析主要包括以下几点 4
2.1.2 本设计中塑件各项要求 5
2.2 制品的工艺性及结构分析 5
2.2.1 结构分析 5
2.2.2 成型工艺分析 5
2.2.3 材料的性能分析 5
2.3 注射成形过程 7
2.3.1 ABS的注射工艺参数 7
2.3.2 ABS的主要性能指标 8
2.3.3 ABS工艺条件 8
3 注射成型机的选择 9
3.1 估算塑件体积 9
3.2 估算塑件质量 9
3.3 注塑机的注射容量 10
3.4 锁模力 10
3.5 选择注塑机及注塑机的主要参数 10
3.5.1 注射机的选择 10
3.5.2 SZ-200/120型注塑机的主要参数 10
3.6 注塑机的校核 11
4 浇注系统的设计 13
4.1 浇注系统设计原则 13
4.2 主流道的设计 13
4.2.1 主流道尺寸 13
4.2.2 主流道衬套的形式及尺寸 14
4.2.3 定位圈的结构尺寸 15
4.2.4 主流道衬套的固定 15
4.3 冷料穴的设计 15
4.4 浇口的设计 16
4.4.1 浇口的主要作用 16
4.4.2 浇口尺寸的确定 16
4.4.3 浇口位置的选择 16
4.4.4 浇口结构的形式 17
4.5 浇注系统凝料的脱出机构 17
4.5.1 普通浇注系统的凝料的脱出 17
4.5.2 点浇口式浇注系统凝料的脱出 17
4.6 脱模推出机构的确定 18
4.6.1 脱模推出机构的设计原则 18
4.6.2 制品推出的基本方式 18
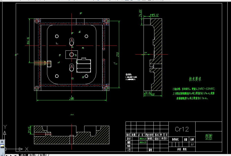
5 成型零部件的设计 20
5.1 分型面的设计 20
5.2 成型零件应具备的特性 21
5.3 成型零件的结构设计 21
5.3.1 凹模(型腔)结构设计 21
5.3.2 型芯的结构设计 22
5.4 成型零件工作尺寸计算 22
5.4.1 影响塑件尺寸和精度的因素 22
5.4.2 成型零件工作尺寸的计算 23
5.4.3 模具型腔侧壁和底板厚度的计算 25
6 导向机构的设计 27
6.1 导向机构的作用 27
6.2 导柱导向机构 27
6.2.1 导向机构的总体设计 27
6.2.2 导柱的设计 28
6.2.3 导套的设计 28
7 侧抽芯机构的设计 29
7.1 侧向分型与抽芯机构的分类 29
7.2 斜导柱侧向分型与抽芯机构设计要点 30
7.2.1 正确选择主型芯位置 30
7.2.2 斜导柱的设计计算 30
7.2.3 滑块和导滑槽的设计 30
8 冷却系统 32
8.1 模具冷却系统的设计原则 32
8.2 模具冷却系统的结构 32
9 总结 33
温馨提示:
1、题目前面的备注【字母数字编号】为本站整理分类的编号,与课题内容无关,请选题时忽视;
2、若题目上备注三维,则表示文件里包含三维源文件,由于三维组成零件数量较多,为保证预览截图的简洁性,本站将三维文件夹进行了打包。三维及CAD预览截图,均为本站电脑打开软件进行截图的,保证能够打开,下载原件超高清,下载后解压即可;
3、本站所有资源如无特殊说明,都需要本地电脑安装Office2007。图纸软件为AutoCAD,PROE,UG,SolidWorks,CATIA等;
4、本站所有图文资料仅供用户学习参考,不作为任何商用或其他用途;
5、本站不保证下载资源的准确性、安全性和完整性, 不包修改,不支持退换,同时也不承担用户因使用这些下载资源对自己和他人造成任何形式的伤害或损失;
6、 下载文件中如有侵权或不适当内容,请与我们联系,我们立即纠正。