

作品包括:
Word版设计说明书1份,共47页,约15000字
外文翻译一份
开题报告一份
CAD版本图纸,共14张
饮水机出水口手把的塑料注射模具设计
摘要
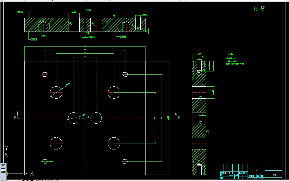
本文基于CAD技术对饮水机出水口手把注塑模具进行了设计。通过对塑件的结构分析,确定了可行的总体设计方案。运用Pro.E软件对塑件进行建模,使用并且对模具进行了分析,优化了浇口位置。根据塑件结构,采用侧浇口的双分型面结构,模具采用一模两腔,且模具采用斜导柱抽芯机构以及推件板推出机构。同时,详细地叙述了模具成型零件包括型芯、型腔的尺寸计算过程以及各重要机构的设计过程。设计方案在保证塑件质量与模具结构合理的前提下尽量做到模具的结构简单、成本低、易加工、使用性好。
最后则是模具的装配环节,包括制定装配步骤、明确注意事项等。
通过本设计,可以对注塑模具有一个初步的认识,注意到设计中的某些细节问题,了解模具结构及工作原理;通过对AutoCAD的学习,可以建立较简单零件的零件库,从而有效的提高工作效率。
目 录
1 绪论 1
2 产品工艺性分析 3
2.1 产品材料分析 3
2.2 塑件结构和尺寸精度分析 5
2.2.1 其塑件的产品结构图如下: 5
2.2.2 产品形状分析 6
3 模具结构设计 9
3.1 总体方案拟订 9
3.1.1 型腔数目的确定 10
3.1.2 分型面的设计 10
3.2注射机的选择 11
3.3型腔数目的校核 12
3.4浇注系统设计 12
3.4.1 主流道的设计 13
3.4.2 分流道的设置 14
3.4.3 浇口设计 14
3.4.4 冷料穴设计 15
3.5成型零件的结构设计 16
3.5.1定模板的结构形式 16
3.5.2 动模板的结构形式 17
3.5.3 型芯的结构形式如下: 17
3.6 模具温度调节系统 20
3.6.1 温度调节对塑件质量的影响 20
3.6.2 温度调节对生产力的影响 21
3.6.3 模具加热和冷却系统的计算 21
3.7 顶出系统的设计 24
3.7.1 浇口凝料的顶出 24
3.7.2 塑料件的顶出 25
3.8导向机构的设计 26
3.8.1.导向机构的功用 26
3.8.2、导向机构的设计 26
3.8.3 承受一定的侧向压力 27
3.9排气系统的设计 28
3.10 斜导柱设计 28
3.10.1 斜导柱的形状及技术要求 28
3.10.2 斜导柱的倾斜角 29
3.10.3斜导柱的长度 29
.3.11滑块设计 30
.3.12.导滑槽设计 31
.3.13脱模机构设计 32
3.13.1 设计原则 32
3.13.2 顶出部件 32
4 注射机的校核 33
4.1 锁模力的校核 33
4.2 开模行程的校核 33
5 模具材料的选择 35
总结 36
参 考 文 献 37
致 谢 38
环保和经济技术型分析 39
三维装配图 42
温馨提示:
1、题目前面的备注【字母数字编号】为本站整理分类的编号,与课题内容无关,请选题时忽视;
2、若题目上备注三维,则表示文件里包含三维源文件,由于三维组成零件数量较多,为保证预览截图的简洁性,本站将三维文件夹进行了打包。三维及CAD预览截图,均为本站电脑打开软件进行截图的,保证能够打开,下载原件超高清,下载后解压即可;
3、本站所有资源如无特殊说明,都需要本地电脑安装Office2007。图纸软件为AutoCAD,PROE,UG,SolidWorks,CATIA等;
4、本站所有图文资料仅供用户学习参考,不作为任何商用或其他用途;
5、本站不保证下载资源的准确性、安全性和完整性, 不包修改,不支持退换,同时也不承担用户因使用这些下载资源对自己和他人造成任何形式的伤害或损失;
6、 下载文件中如有侵权或不适当内容,请与我们联系,我们立即纠正。