

作品包括:
word说明书一份,共34页,约11000字
CAD版本图纸,共18张
UG三维图纸1张
摘 要
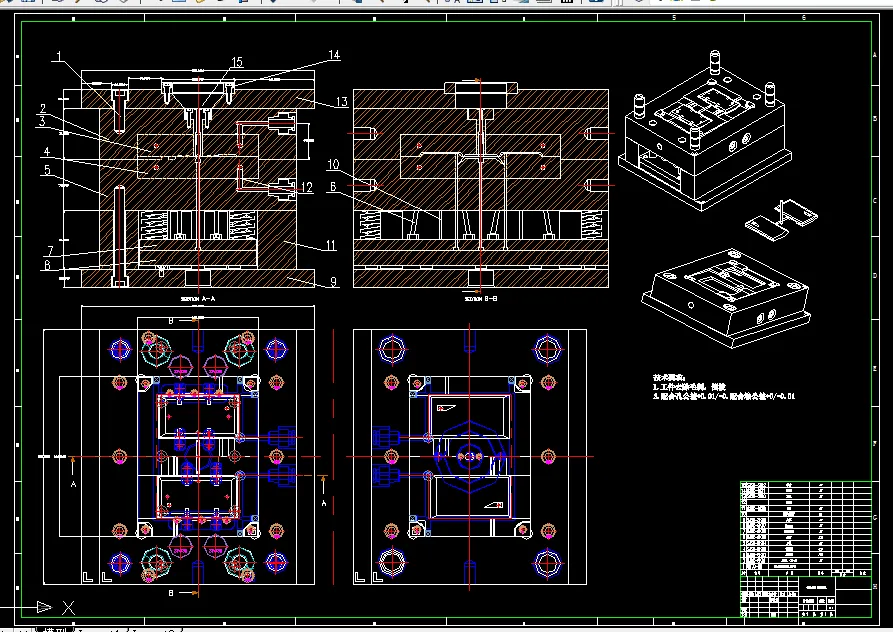
本设计叙述了手机电池盖注射模具设计全过程。通过对制件的工艺分析,确定了模具的设计方案,并绘制了装配图和零件图。模具斜顶、顶针等推出机构;并且详细介绍了用专业软件UG进行模具设计,用UG导出,最后利用AUTOCAD作模具的二维图。
关键词:手机电池盖,UG注塑模设计,AUTOCAD作模具的二维图。
目 录
摘要…………………………………………………………..1
目 录…………………………………………………………2
第1章 绪论……………………………………………….4
1.1 UG发展前景…………………………………………..4
1.2中国与国外先进技术的差距………………………….5
1.3注射成型的原理……………………………………….5
1.4注塑模具工艺简介…………………………………….6
1.5本设计的意义和目地………………………………….8
第2章 塑件的工艺分析…………………………………10
2.1产品分析………………………………………………10
2.2塑件的使用要求………………………………………10
2.3塑件的材料分析………………………………………11
第3章 拟定模具的结构形式……………………………13
3.1分型面的选择…………………………………………13
3.2型腔数目的确定…………………………………………13
3.3注射机的选择…………………………………………14
第4章 模体总体结构设计………………………………18
4.1标准模架选择…………………………………………18
4.2浇注系统设计…………………………………………19
2
4.3合模导向机构设计……………………………………23
4.4成型零部件设计………………………………………24
4.5推出机构设计…………………………………………25
第5章 模具上、下模,以及总装图……………………28
第6章 心得体会…………………………………………31
第7章 致 谢……………………………………………33
第8章 参考文献…………………………………………34
温馨提示:
1、题目前面的备注【字母数字编号】为本站整理分类的编号,与课题内容无关,请选题时忽视;
2、若题目上备注三维,则表示文件里包含三维源文件,由于三维组成零件数量较多,为保证预览截图的简洁性,本站将三维文件夹进行了打包。三维及CAD预览截图,均为本站电脑打开软件进行截图的,保证能够打开,下载原件超高清,下载后解压即可;
3、本站所有资源如无特殊说明,都需要本地电脑安装Office2007。图纸软件为AutoCAD,PROE,UG,SolidWorks,CATIA等;
4、本站所有图文资料仅供用户学习参考,不作为任何商用或其他用途;
5、本站不保证下载资源的准确性、安全性和完整性, 不包修改,不支持退换,同时也不承担用户因使用这些下载资源对自己和他人造成任何形式的伤害或损失;
6、 下载文件中如有侵权或不适当内容,请与我们联系,我们立即纠正。