

作品包括:
Word说明书1份,共38页,约12000字
CAD版本图纸,共12张
床身固定件落料弯曲级进模具板类零件加工
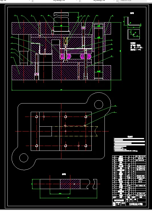
本文对我国模具的发展和应用进行简单的分析,该模具的设计来源于我们寝室床身固定件零件。运用当前所学的模具制造工艺以及设备来设计合理的级进模具结构。根据设计好的零件尺寸编制出合理的工艺和程序。利用现有的条件数控机床,电火花机床和车床进行该模具中的板类零件的加工。所有零件加工完成后进行总装配。
关键词:级进模具;板类零件;加工
目 录
1 绪 论 1
2 冲裁弯曲件的工艺分析 2
2.1工艺方案 2
2.2导向方式的选择 2
2.3模具总结构设计工艺分析 3
2.3.1模具类型的选择 3
2.3.2定位方式的选择 3
2.4工序组合方式的选择 3
3 冲压模具工艺参数的设计 4
3.1模具总体结构设计 4
3.1.1模具类型的选择 4
3.1.2定位方式的选择 4
3.1.3卸料方式的选择 4
3.2模具设计工艺计算 4
3.2.1毛坯尺寸计算 4
3.2.2搭边值的确定 4
3.2.3材料利用率的计算 4
3.3冲压力的计算 5
3.3.1落料力的计算 5
3.3.2冲孔力的计算 5
3.3.3卸料力、推件力的计算 5
3.3.4弯曲力的计算 6
3.3.5 总的冲压力的计算 6
3.4模具压力中心与计算 6
3.5冲裁模间隙的确定 6
3.6计算凸、凹模刃口的尺寸 7
4 主要零部件的设计 8
4.1凸模、凹模毛坯的确定 8
4.1.1毛坯的种类 8
4.1.2毛坯形状和尺寸的确定 8
4.2工作零件的结构设计 8
4.2.1落料凹模的设计 8
4.2.2冲孔凸模的设计 9
4.2.3橡胶的选用与计算 9
5 非标准零件的加工工艺 12
5.1凸凹模固定板的加工工艺 12
5.1.1凸凹模固定板的工艺分析 12
5.1.2 加工方法及工艺方案比较 12
5.1.3有关工艺装备的准备 13
5.1.4 加工路线的拟定 14
5.1.5工艺过程的制定 16
5.1.6 加工程序的编写 16
5.2凹模固定板的加工工艺 18
5.2.1凹模固定板的工艺性分析 18
5.2.2加工方案及工艺方案比较 19
5.2.3有关工艺装备的准备 20
5.2.4 加工路线的拟定 21
5.2.5工艺过程的制定 22
5.3导料板的加工工艺分析 22
5.3.1导料板的工艺性分析 22
5.3.2 加工方法及工艺方案比较 23
5.3.3 有关工艺准备 24
5.3.4 加工路线的拟定 25
5.3.5 工艺过程的制定 26
6 压力机的选择 27
7 模具总装图 28
结 论 30
致 谢 31
参考文献 32
附 录 33
温馨提示:
1、题目前面的备注【字母数字编号】为本站整理分类的编号,与课题内容无关,请选题时忽视;
2、若题目上备注三维,则表示文件里包含三维源文件,由于三维组成零件数量较多,为保证预览截图的简洁性,本站将三维文件夹进行了打包。三维及CAD预览截图,均为本站电脑打开软件进行截图的,保证能够打开,下载原件超高清,下载后解压即可;
3、本站所有资源如无特殊说明,都需要本地电脑安装Office2007。图纸软件为AutoCAD,PROE,UG,SolidWorks,CATIA等;
4、本站所有图文资料仅供用户学习参考,不作为任何商用或其他用途;
5、本站不保证下载资源的准确性、安全性和完整性, 不包修改,不支持退换,同时也不承担用户因使用这些下载资源对自己和他人造成任何形式的伤害或损失;
6、 下载文件中如有侵权或不适当内容,请与我们联系,我们立即纠正。