

作品包括:
说明书一份,共41页,约14000字
开题报告一份
PPT答辩一份
外文翻译一份
CAD版本图纸,共15张
摘要
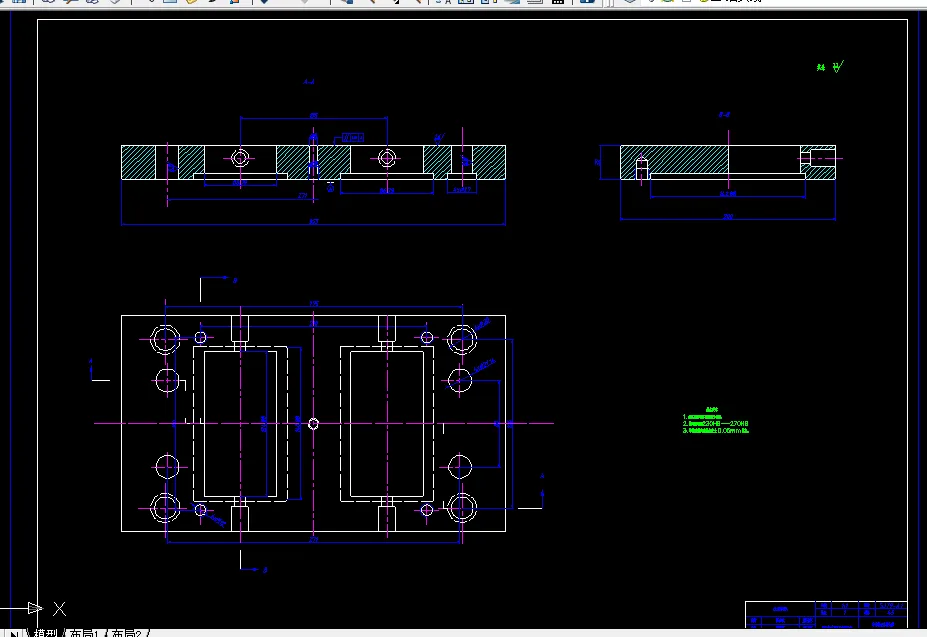
手机保护套注射模具设计通过对各种塑料进行详细的分析,ABS的综合性能良好,符合制品的质量和使用要求,故选取ABS作为制品材料,并采用注塑成型。
本模具设计说明书阐述了手机保护套模具设计的设计全过程,应用CAD/CAE/CAM技术,提高了模具的使用寿命和制造技术。根据产品零件图,使用Pro/ENGINEER软件进行零件的分析、分型面的选择、成型零件的设计。针对脱模困难,采用不等距推杆推出;根据手机保护套的结构特点,对动模采取冷却水道以加强冷却效果。
本次主要设计项目是零件型腔的设计、制造及其工艺,基于所设计制品结构较复杂,所以将模具设计为一模二腔。在本论文中还对生产工艺方案作了初步分析探讨。
关键词 生产方案 注射 手机保护套 塑料模具设计
目 录
1 绪论……………………………………………………………………………………1
2 塑件成型工艺性分析…………………………………………………………………3
2.1 塑件分析……………………………………………………………………………3
2.2 选材及材料性能分析………………………………………………………………6
2.3 注射成型过程及工艺参数…………………………………………………………7
3 拟定模具的结构形式…………………………………………………………………8
3.1 分型面位置的确定…………………………………………………………………8
3.2 型腔数和排列方式的确定…………………………………………………………8
3.3 注射机型号的确定…………………………………………………………………9
4 浇注系统的设计………………………………………………………………………11
4.1 主流道的设计………………………………………………………………………11
4.2 分流道设计…………………………………………………………………………11
4.3 浇口的设计…………………………………………………………………………13
4.4 校核主流道的剪切速率……………………………………………………………14
4.5 冷料穴的设计及计算………………………………………………………………14
5 成型零件的结构设计及计算…………………………………………………………15
5.1 成型零件的结构设计………………………………………………………………15
5.2 成型零件的钢材选用………………………………………………………………15
5.3 成型零件的工作尺寸计算…………………………………………………………15
5.4 成型零件尺寸及动模垫板厚度的计算……………………………………………16
6 模架的确定……………………………………………………………………………19
6.1 各模板尺寸的确定…………………………………………………………………19
6.2 模架各尺寸的确定…………………………………………………………………19
7 排气槽的设计…………………………………………………………………………20
8 脱模机构的设计………………………………………………………………………21
8.1 推出方式的确定……………………………………………………………………21
8.2 脱模力的计算………………………………………………………………………21
8.3 推杆尺寸的计算及校核……………………………………………………………21
9 侧向分型抽芯机构……………………………………………………………………23
9.1 侧向抽芯机构的分类及特点………………………………………………………23
9.2 抽芯力的计算………………………………………………………………………23
9.3 抽拔距的确定………………………………………………………………………23
9.4 侧抽芯机构的选定…………………………………………………………………24
9.5 斜导柱的长度的计算………………………………………………………………25
9.6 滑块的设计…………………………………………………………………………26
9.7 楔紧块的设计………………………………………………………………………27
10 冷却系统的设计 ……………………………………………………………………28
10.1 冷却介质 …………………………………………………………………………28
10.2 冷却系统的简单计算及冷却水道的布置 ………………………………………28
11 导向与定位结构的设计 ……………………………………………………………31
温馨提示:
1、题目前面的备注【字母数字编号】为本站整理分类的编号,与课题内容无关,请选题时忽视;
2、若题目上备注三维,则表示文件里包含三维源文件,由于三维组成零件数量较多,为保证预览截图的简洁性,本站将三维文件夹进行了打包。三维及CAD预览截图,均为本站电脑打开软件进行截图的,保证能够打开,下载原件超高清,下载后解压即可;
3、本站所有资源如无特殊说明,都需要本地电脑安装Office2007。图纸软件为AutoCAD,PROE,UG,SolidWorks,CATIA等;
4、本站所有图文资料仅供用户学习参考,不作为任何商用或其他用途;
5、本站不保证下载资源的准确性、安全性和完整性, 不包修改,不支持退换,同时也不承担用户因使用这些下载资源对自己和他人造成任何形式的伤害或损失;
6、 下载文件中如有侵权或不适当内容,请与我们联系,我们立即纠正。