

作品包括:
word说明书一份,共68页,约33000字
CAD版本图纸,共8张
摘要
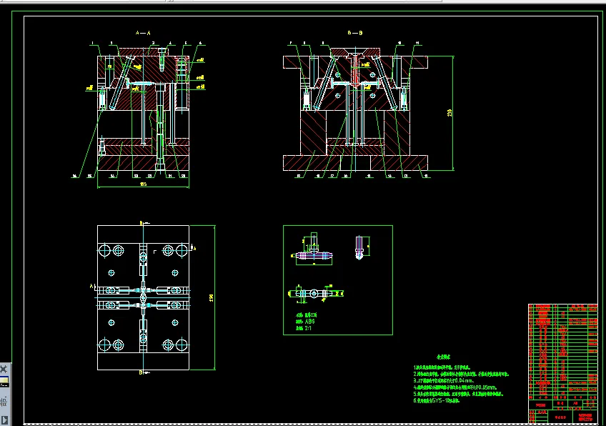
本文讨论了塑料三通注塑模设计过程。介绍了注塑模成型工艺和注塑模具的结构及工作原理。塑料三通采用的是塑料-ABS,热塑性塑料的主要成型工艺是注射成型,因此,塑料三通成型方法采用注塑成型。
本设计对塑料三通进行了工艺分析,确定了分型面、浇注系统等,选择了注塑机,计算了成型零部件的尺寸。确定了模具浇口、限位装置、顶出机构、导柱和导套,这样设计出的结构可确保模具工作可靠和灵活。最后对注射机进行选择和校核。
本论文基于Pro/E、CAD系统,通过该系统,用户可以在可视化平台上交互式的设计注塑模具各个部件,不仅可以避免相似零件设计的重复性,大大提高其设计效率和设计质量,缩短产品的开发周期,而且方便了产品后续的有限元分析,同时也符合了现代设计思想的发展要求。
关键词:成型 斜导柱 抽芯机构 锁紧机构 Pro/E CAD ABS
目录
摘要I
AbstractII
第1章 绪论1
1.1 模具工业在国民经济中的地位1
1.2 各种模具的分类和占有量2
1.3 我国模具工业的现状2
1.4 世界五大塑料生产国的产能状况4
1.5 我国模具技术的现状及发展趋势7
1.6 毕业设计的主要研究目标及内容8
1.6.1设计目标8
1.6.2设计内容8
1.7 本章小结9
第2章 注塑件的工艺性10
2.1 塑件材料工艺性分析10
2.1.1材料基本特征11
2.1.2材料主要用途13
2.1.3材料成型特点16
2.2 塑料制品的工艺性分析17
2.2.1收缩性17
2.2.1.1模具结构设计对塑件收缩的影响17
2.2.1.2塑件结构设计对塑件收缩的影响18
2.2.2脱模斜度19
2.2.3壁厚19
2.2.4侧孔20
2.2.5圆角20
2.2.6塑件的尺寸精度及表面质量20
2.2.6.1尺寸精度20
2.2.6.2塑件的表面质量21
2.3 成型周期21
2.4 本章小结22
第3章 注塑成型的准备23
3.1 注塑成型工艺简介23
3.2 注塑成型工艺条件23
3.3 注塑机的选择25
3.3.1注塑机简介25
3.3.2注射机基本参数27
3.3.3选择注塑机28
3.4 注射机的校核28
3.4.1最大注射量的校核28
3.4.2锁模力的校核29
3.4.3塑化能力的校核29
3.5 安装部分的尺寸校核29
3.5.1模具安装尺寸校核29
3.5.1.1定位圈尺寸校核30
3.5.1.2模具的长度与宽度校核30
3.5.1.3模具厚度校核30
3.5.1.4喷嘴尺寸校核30
3.6 开模行程校核31
3.7 本章小结31
第4章 模具设计32
4.1 分型面的确定32
4.2 型腔数目的确定33
4.3 浇口确定33
4.4 模具材料的选择34
4.4.1模具满足工作条件要求34
4.4.2模具满足工艺性能要求35
4.4.3模具满足经济性要求36
4.5 浇注系统设计36
4.5.1主流道36
4.5.2分流道37
4.5.3冷料穴38
4.5.4浇口38
4.6 模架的确定40
4.6.1 模架的选用40
4.7 导向与定位机构42
4.7.1导向机构的设计42
4.8 顶出系统设计43
4.8.1 脱模力的计算44
4.8.2推杆脱模机构45
4.8.3推板厚度的确定47
4.9 侧抽芯机构47
4.9.1抽芯距的计算48
4.9.2斜导柱所受弯曲力的计算48
4.9.3斜导柱长度的计算49
4.10 锁紧机构50
4.10.1锁紧机构设计50
4.10.2锁紧机构的结构形式51
4.11 排气设计51
4.11.1排气部位的选择51
4.11.2排气的方式51
4.11.3排气槽设计要点52
4.12 温度调节系统设计52
4.12.1 温度调节对塑件质量的影响52
4.12.2 温度调节与生产效率的关系52
4.12.3 冷却系统设计53
4.13 本章小结54
第5章 模具主要零件的计算55
5.1 型腔和型芯的成型尺寸计算55
5.1.1 型腔的径向尺寸计算55
5.1.2 型腔深度尺寸计算56
5.1.3 型腔横向尺寸计算56
5.1.4 型芯横向尺寸计算56
5.1.5 型芯径向尺寸计算56
5.1.6型芯高度尺寸计算57
5.2 型腔壁厚计算57
5.3 弹簧的选用58
5.4 本章小结58
结论59
致谢60
参考文献61
附录162
温馨提示:
1、题目前面的备注【字母数字编号】为本站整理分类的编号,与课题内容无关,请选题时忽视;
2、若题目上备注三维,则表示文件里包含三维源文件,由于三维组成零件数量较多,为保证预览截图的简洁性,本站将三维文件夹进行了打包。三维及CAD预览截图,均为本站电脑打开软件进行截图的,保证能够打开,下载原件超高清,下载后解压即可;
3、本站所有资源如无特殊说明,都需要本地电脑安装Office2007。图纸软件为AutoCAD,PROE,UG,SolidWorks,CATIA等;
4、本站所有图文资料仅供用户学习参考,不作为任何商用或其他用途;
5、本站不保证下载资源的准确性、安全性和完整性, 不包修改,不支持退换,同时也不承担用户因使用这些下载资源对自己和他人造成任何形式的伤害或损失;
6、 下载文件中如有侵权或不适当内容,请与我们联系,我们立即纠正。