

作品包括:
word说明书一份,共21页,约8900字
CAD版本图纸,共19张
目 录
引言??????????????????????????????????????????????
第一章 制件的工艺分析???????????????????????????
第二章 拉深次数的确定和计算?????????????????????
第三章 毛坯展开尺寸计算?????????????????????????
第四章 排样设计?????????????????????????????????
第一节 多工位级进模排样设计原则??????????????????????
第二节 产品的公差????????????????????????????????????
第三节 排样设计及工位确定???????????????????????????
第五章 成形设备的选择???????????????????????????
第一节 冲裁力的计算??????????????????????????????????
第二节 拉深力计算???????????????????????????????????
第三节 卸件力、推件力计算??????????????????????????
第四节 总冲压力计算?????????????????????????????????
第五节 成形设备的选取???????????????????????????????
第六章 模具基本结构选材及热处理?????????????????
第一节 上模座????????????????????????????????????????
第二节 模柄?????????????????????????????????????????
第三节 导柱导套?????????????????????????????????????
第四节 上模垫板????????????????????????????????????
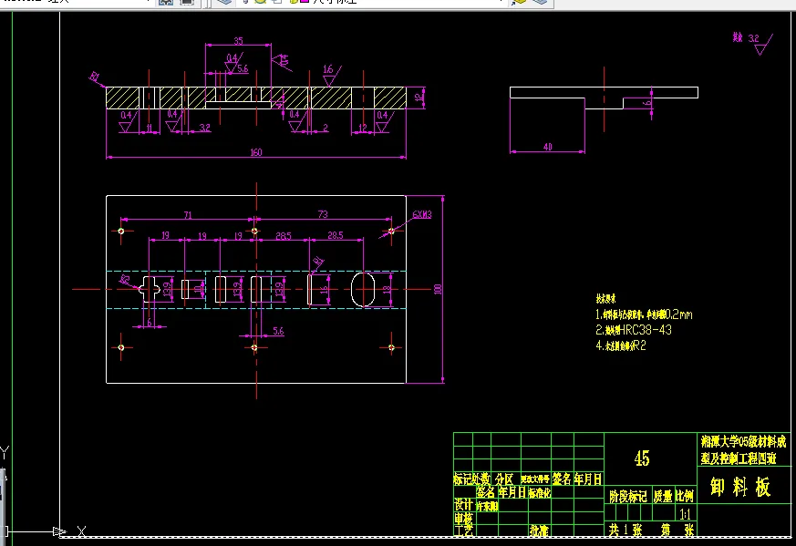
第五节 卸料板??????????????????????????????????????
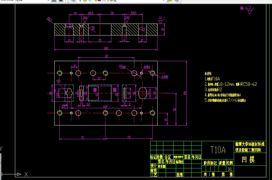
第六节 凹、凸模固定板????????????????????????????????
第七节 下模垫板?????????????????????????????????????
第八节 下模座????????????????????????????????????????
第九节 冲裁模????????????????????????????????????????
第十节 拉深模???????????????????????????????????????
第七章 模架的选取???????????????????????????????
第八章 模具主要结构设计?????????????????????????
第一节 凸、凹模的固定方式????????????????????????????
第二节 定距结构?????????????????????????????????????
第三节 卸料板结构???????????????????????????????????
第四节 浮料方式?????????????????????????????????????
第九章 凸、凹模结构设计?????????????????????????
第一节 冲裁间隙的确定???????????????????????????????
第二节 拉深间隙的确定???????????????????????????????
第三节 凸、凹模的公差确定??????????????????????????
第四节 冲裁模刃口尺寸计算???????????????????????????
第五节 拉深模刃口尺寸计算???????????????????????????
第六节 冲工艺长孔凸凹模尺寸计算????????????????????
第七节 表面粗糙度的确定????????????????????????????
第十章 模具总装配图绘制及相关技术要求??????????
参考文献
致谢
隔离罩多工位级进模设计
摘要:本书设计了一副隔离罩多工位级进模。通过分析隔离罩零件的成形工艺,确定其工艺方案及排样方法。通过相关计算,选择成形设备及确定模具结构类型和主要模具零件结构设计。
关键词:隔离罩,多工位,级进模,成形工艺,工艺方案,排样方法,模具结构
温馨提示:
1、题目前面的备注【字母数字编号】为本站整理分类的编号,与课题内容无关,请选题时忽视;
2、若题目上备注三维,则表示文件里包含三维源文件,由于三维组成零件数量较多,为保证预览截图的简洁性,本站将三维文件夹进行了打包。三维及CAD预览截图,均为本站电脑打开软件进行截图的,保证能够打开,下载原件超高清,下载后解压即可;
3、本站所有资源如无特殊说明,都需要本地电脑安装Office2007。图纸软件为AutoCAD,PROE,UG,SolidWorks,CATIA等;
4、本站所有图文资料仅供用户学习参考,不作为任何商用或其他用途;
5、本站不保证下载资源的准确性、安全性和完整性, 不包修改,不支持退换,同时也不承担用户因使用这些下载资源对自己和他人造成任何形式的伤害或损失;
6、 下载文件中如有侵权或不适当内容,请与我们联系,我们立即纠正。