

作品包括:
Word版说明书一份,共60页,约27000字
外文翻译一份
CAD版本图纸,共9张:
万能手机充电器上翻盖注射模设计及编程
设计者:XXX 指导教师:XXX
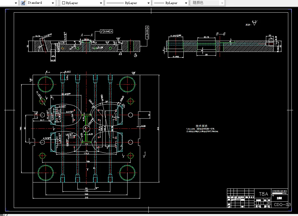
摘要 本次设计是对旅行用的手机充电器上翻盖的注射模进行了设计研究。该塑件成品的表面质量要求较高,使用寿命较长。顾在设计中选用ABS工程材料,潜伏式浇口以保证起模质量要求。
由于塑件的外形轮廓及内部结构较为复杂,因此在该设计中采用一模四腔,对称平衡式布置,型芯型腔大量使用镶嵌件,以减少生产成本,保证塑件制品的加工成型。同时盖的下端面需考虑侧向分型抽芯,这里采用的是斜导柱滑块外侧抽芯,足以保证塑件制品的分型取出。在设计方面,主要进行了注射成形的基本过程、塑件结构分析及材料的选择、拟定模具结构形式、模具材料的选用、模架的选择、排气系统设计、温度调节系统的设计;在计算方面,主要进行了注射机型号的选择及相关参数的校核、浇注系统的设计、成型零件设计、侧向分型与抽芯机构设计、温度调节系统的设计;在编程方面,选择一个具有代表性的成型零件,如:动模座板进行NC编程。该模具结构设计紧凑合理,开合模顺畅,便于加工装配。
关键词:注射模;一模四腔;潜伏式浇口;斜导柱;外侧抽芯。
目 录
1 注射成形的基本过程 1
1.1 注射成形的原理 1
1.2 注射成形的工艺过程 1
1.2.1 成形前的准备 1
1.2.2 注射成形过程 1
1.2.3 塑件的后处理 2
1.3 注射成形的工艺参数 2
1.3.1 温度 3
1.3.2 压力 3
1.3.3 时间 3
2塑件结构分析及材料的选择 5
2.1分析塑件的成型工艺性 5
2.2 分析制品的结构、尺寸精度及表面质量 5
2.3分析制品原材料的工艺性 5
2.3.1 ABS的基本特性 5
2.3.2 成形特性 6
2.3.3 成形条件 6
2.4 塑件建模分析 7
3 拟定模具结构形式 8
3.1 分型面位置的确定 8
3.2 型腔数量的确定 9
3.2.1 塑件尺寸精度 9
3.2.2模具制造成本 9
3.2.3 注塑成形的生产效益 9
3.2.4 制造难度 9
3.3 型腔的布局 9
4 注射机型号的选择及相关参数的校核 11
4.1 注射机型号的选择 11
4.1.1.注射量的计算 11
4.1.2 塑件和流道凝料在分型面上的投影面积及所需锁模力的计算 11
4.1.3. 选择注射机 11
4.2 相关参数的校核 12
4.2.1注射机型腔数的校核 12
4.2.2.注射机最大开模行程与模厚无关时的校核 12
5 模具材料的选用 13
5.1 模具材料选用原则 13
5.2 注塑模具常用材料 13
5.2.1 型腔、型芯类零件 13
5.2.2 导向类零件 13
5.2.3 浇注系统零件 13
5.2.4 推出机构和抽芯机构零件 13
5.2.5 模板类零件 14
5.3 塑料模具成型零件(型腔、型芯)的选材 14
5.4 模板零件的选材 14
5.5 浇注系统零件的选材 14
5.6 导向零件的选材 14
5.7 侧向分型与抽芯机构的选材 15
5.9 其它零件 15
5.10 该套模具所用材料的性能比较 15
6 浇注系统的设计 16
6.1 主流道设计 16
6.1.1主流道的作用 16
6.1.2主流道设计要点 16
6.1.3浇口套的结构形式 17
6.1.4浇口套材料及尺寸 17
6.1.5 定位圈的设计 17
6.1.6主流道凝料体积 18
6.2 分流道的设计 18
6.2.1 分流道的作用 18
6.2.2 设计要点 19
6.2.3分流道的形状和截面尺寸 19
6.2.4分流道长度设计 20
6.2.5 分流道凝料体积 20
6.2.6分流道的表面粗糙度 21
6.3 浇口的设计 21
6.3.1 浇口的作用 21
6.3.2浇口设计的基本要点 21
6.3.3浇口的类型 22
6.3.4浇口尺寸及形状 22
6.4 冷料穴的设计 22
6.4.1冷料穴 22
6.5 拉料杆设计 23
6.6 排气槽的设计 23
7 成型零件设计 25
7.1 成型零件的结构设计 25
7.1.1凹模 25
7.1.2 凸模和型芯 25
7.2 成型零件工作尺寸的计算 25
7.2.1型腔和型芯工作尺寸的计算 26
8 导向、推出及复位机构的设计 29
8.1 导向机构设计 29
8.1.1导向机构的作用 29
8.1.2 导向结构的总体设计 29
8.1.3导柱的设计 30
d数量及布置 31
8.1.4导套 31
8.2 推出机构的设计 32
8.2.1 推出机构的分类 32
8.2.2 脱模推出机构的设计原则 32
8.2.3 塑件的推出机构推杆的设计 33
8.2.4推出机构的复位 33
9 侧向分型与抽芯机构设计 34
9.1 斜导柱侧向分型与抽芯机构 34
9.2侧向抽心机构的设计 34
9.3斜导柱抽芯机构的设计 35
9.4斜导柱直径的计算 35
9.5侧向抽心力的计算 36
9.6斜导柱的长度计算 38
9.7锁紧楔的设计 38
10 模架的选择 39
10.1型腔强度及支撑板厚度计算 39
10.1.1型腔侧壁厚度 39
10.1.2支撑板的厚度 39
10.2模架的确定 40
10.3各个模板的确定 40
11排气系统设计 42
12 温度调节系统的设计 43
12.1冷却水的体积流量计算 43
12.2确定冷却管道的直径 44
12.3确定冷却水在管道的流速 44
12.4求冷却管道孔壁与冷却水之间的传热系数 44
12.5冷却管道的总传热面积 44
12.6求模具上应开设的冷却水孔数 44
13 模具动作过程 46
13.1 模具动作过程 46
14 模具的试模与修模 48
14.1注射机选定 48
14.2试模用注塑料 48
14.3试模工艺 48
14.4试模 48
14.5修模 48
15 NC编程 49
总结 51
致谢词 52
参考文献 53
温馨提示:
1、题目前面的备注【字母数字编号】为本站整理分类的编号,与课题内容无关,请选题时忽视;
2、若题目上备注三维,则表示文件里包含三维源文件,由于三维组成零件数量较多,为保证预览截图的简洁性,本站将三维文件夹进行了打包。三维及CAD预览截图,均为本站电脑打开软件进行截图的,保证能够打开,下载原件超高清,下载后解压即可;
3、本站所有资源如无特殊说明,都需要本地电脑安装Office2007。图纸软件为AutoCAD,PROE,UG,SolidWorks,CATIA等;
4、本站所有图文资料仅供用户学习参考,不作为任何商用或其他用途;
5、本站不保证下载资源的准确性、安全性和完整性, 不包修改,不支持退换,同时也不承担用户因使用这些下载资源对自己和他人造成任何形式的伤害或损失;
6、 下载文件中如有侵权或不适当内容,请与我们联系,我们立即纠正。