

作品包括:
Word版说明书1份,共38页,12000字
任务书一份
开题报告一份
CAD版本图纸,共13张
UG三维图一份

摘要
在科技发达的今天,注塑模具发挥了不小的作用,在机械、器械、用品的产品中都存在注塑模具的生产。从模具的开创至今模具设计和制造也是不断的进步与创新,以前绘制装配图都是用手绘制现如今科技发达绘制图纸只需要用电脑绘制,不仅仅绘制二维装配图连三维也能绘制。
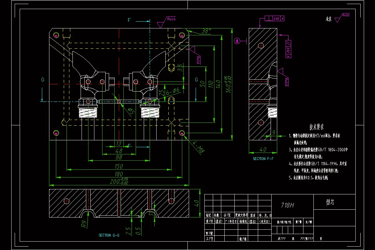
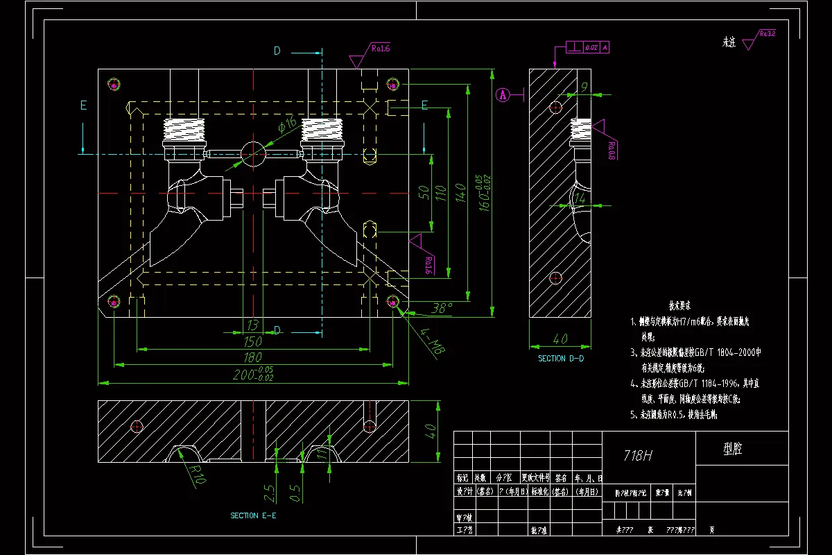
本次设计的参考件是以水龙头为设计任务,此产品外形光滑简单,用UG三维软件绘制产品。在绘制过程中要考虑到抜模斜度,方便顶出脱模。绘制完成后,根据需求排列出一模二腔计算出他的模架,然后确定它的分析面。分型面的选择也要考虑到脱模的方向和零件的外形,还要考虑到型芯型腔的机械加工方便性和顶出机构的受力均匀。根据产品的排列和原料的流动性收缩率选择进料口使其填面不缺料。冷却方法根据模具的设计产品的摆放来确定,一般采用环绕式的水管。推出机构通常采用圆顶针,这种推模方式会留有顶出痕迹,如不能有顶出痕迹可使用推板推出或者使用机型手取出,选用的方式根据产品的使用和外观要求而定。三维软件绘制完成后根据图形再使用CAD绘制二维装配图和零件图,这样绘制二维装配图时思路清晰不容易出错。在设计过程中需考虑到模具在机械加工方面的制造工艺,还有就是在制造完成后模具使用的安全设备维修的方便跟换宜受损部分的简便,这都是在设计过程不可缺少的。
关键词:注塑模具;水龙头;脱模;一模二腔;模架
目录
摘要I
abstract II
第一章概述1
1.1模具的地位1
1.2模具的发展2
1.3注塑模具的重要性3
1.4课题需要解决的问题3
1.5设计思路4
第二章塑件工艺和材料分析5
2.1塑件结构分析5
2.2塑件的工艺分析5
2.3计算塑件的体积和质量6
2.4分型面的选择7
2.5塑料成型设备的选取8
第三章模具结构方案的确定9
3.1出模数量与型腔布局9
3.2型腔出模数量的校核9
3.3、浇注系统设计10
3.3.1浇注系统10
3.3.2主流道的设计10
3.3.3分流道的设计11
3.3.4浇口的设计12
3.3.5冷料穴的设计13
3.4排气机构的设计13
3.5脱模机构设计13
3.5.1脱模力的计算14
3.5.2推杆强度的校核15
3.6复位机构设计15
3.7模架系统设计15
第四章、成型零件结构设计17
4.1成型零件的设计17
4.2、型腔结构设计17
4.3、型芯结构设计17
4.4成型尺寸计算18
4.4.1型腔成型零件尺寸计算18
4.4.2型芯成型零件尺寸计算19
4.4.3型腔零件的强度刚度校核20
4.5成型零件钢材的选用20
第五章、模具冷却系统设计21
5.1、冷却系统概述21
5.2、冷却水道的计算21
5.2.1求塑料制品在固化时每小时释放的热量Q 21
5.2.2水的体积流量22
5.2.3求冷却水道直径d 22
第六章注塑机的选择与校核23
6.1注塑机的工作原理23
6.2注塑机注射容量的校核23
6.3校核压力23
6.4校核模具安装尺寸23
6.5校核移模行程24
6.6校核注塑机锁模力24
第七章抽芯机构的设计25
7.1抽芯机构的概述25
7.2抽芯机构的计算25
第八章、绘制模具总装图27
总结28
致谢29
参考文献30
温馨提示:
1、题目前面的备注【字母数字编号】为本站整理分类的编号,与课题内容无关,请选题时忽视;
2、若题目上备注三维,则表示文件里包含三维源文件,由于三维组成零件数量较多,为保证预览截图的简洁性,本站将三维文件夹进行了打包。三维及CAD预览截图,均为本站电脑打开软件进行截图的,保证能够打开,下载原件超高清,下载后解压即可;
3、本站所有资源如无特殊说明,都需要本地电脑安装Office2007。图纸软件为AutoCAD,PROE,UG,SolidWorks,CATIA等;
4、本站所有图文资料仅供用户学习参考,不作为任何商用或其他用途;
5、本站不保证下载资源的准确性、安全性和完整性, 不包修改,不支持退换,同时也不承担用户因使用这些下载资源对自己和他人造成任何形式的伤害或损失;
6、 下载文件中如有侵权或不适当内容,请与我们联系,我们立即纠正。