

作品包括:
Word版说明书1份,共32页,约15000字
任务书一份
CAD版本图纸,共10张
UG三维图一份


摘要
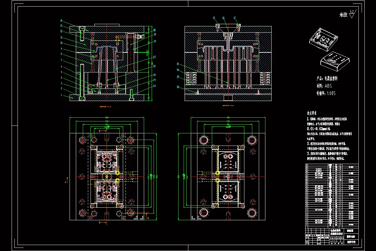
根据塑料电器盒制品的要求,了解塑件的用途,分析塑件的工艺性、尺寸精度等技术要求,选择塑件制件尺寸。本模具采用一模二件,侧浇口进料,注射机采用海天110XB型号,设置冷却系统,CAD和UG绘制二维总装图和零件图,选择模具合理的加工方法。附上说明书,系统地运用简要的文字,简明的示意图和和计算等分析塑件,从而作出合理的注塑模具设计。
按国家职业定义,模具设计是:从事企业模具的数字化设计,包括型腔模与冷冲模,在传统模具设计的基础上,充分应用数字化设计工具,提高模具设计质量,缩短模具设计周期的人员。
模具,是以特定的结构形式通过一定方式使材料成型的一种工业产品,同时也是能成批生产出具有一定形状和尺寸要求的工业产品零部件的一种生产工具。大到飞机、汽车,小到茶杯、钉子,几乎所有的工业产品都必须依靠模具成型。用模具生产制件所具备的高精度、高一致性、高生产率是任何其它加工方法所不能比拟的。模具在很大程度上决定着产品的质量、效益和新产品开发能力。所以模具又有“工业之母”的荣誉称号。
模具设计与制造专业的培养目标是:培养德、智、体、美等方面全面发展,具有良好的职业素质,面向制造行业,从事模具设计、模具加工工艺编制、冲压和塑料成型加工、数控机床的操作以及生产管理等工作的高等技术应用性专门人才。体现为制造方面达到模具制造的补师水平,设计方面达到助理设计师的水平
关键词:电器盒;侧浇口;注射机;冷却系统;注塑模具
温馨提示:
1、题目前面的备注【字母数字编号】为本站整理分类的编号,与课题内容无关,请选题时忽视;
2、若题目上备注三维,则表示文件里包含三维源文件,由于三维组成零件数量较多,为保证预览截图的简洁性,本站将三维文件夹进行了打包。三维及CAD预览截图,均为本站电脑打开软件进行截图的,保证能够打开,下载原件超高清,下载后解压即可;
3、本站所有资源如无特殊说明,都需要本地电脑安装Office2007。图纸软件为AutoCAD,PROE,UG,SolidWorks,CATIA等;
4、本站所有图文资料仅供用户学习参考,不作为任何商用或其他用途;
5、本站不保证下载资源的准确性、安全性和完整性, 不包修改,不支持退换,同时也不承担用户因使用这些下载资源对自己和他人造成任何形式的伤害或损失;
6、 下载文件中如有侵权或不适当内容,请与我们联系,我们立即纠正。