

作品包括:
Word版说明书1份,共50页,约20000字
任务书一份
开题报告一份
CAD版本图纸,共20张
UG三维图一份

摘要
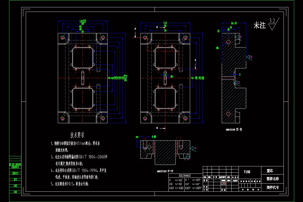
根据塑料制品的要求,了解塑件的用途,分析塑件的工艺性、尺寸精度等技术要求,考量塑件制件尺寸。本模具采用一模二腔,潜浇口进料,注射机采用海天HTF80型号,设置冷却系统,CAD和UG绘制二维总装图和零件图,选择模具合理的加工方法。附上说明书,系统地运用简要的文字,简明的示意图和和计算等分析塑件,从而作出合理的模具设计。
关键字:机械设计;模具设计;CAD绘制二维图;UG绘制3D图
目录
摘要1
Abstract 2
1.绪论3
1.1前言3
1.2我国模具行业发展概述3
1.3 21世纪模具发展趋势6
2.CAD在注塑模具行业中的应用9
2.1 CAD发展概况9
2.2注塑模CAD内容9
2.3 CAD数据组成11
2.4 CAD技术在模具设计中的应用12
2.4.1产品设计12
2.4.2模具设计12
2.5应用在本设计中的CAD技术13
2.6小结13
3注塑工艺分析及成型方法简介15
3.1塑件(电器盒盖)分析15
3.1.1塑件15
3.1.2塑料名称15
3.1.3生产纲领16
3.2塑件的结构及成型工艺分析16
3.2材料ABS的注射成型过程及工艺参数16
3.3.1注射成型过程16
3.3.2材料ABS的注塑成型参数17
3.3.3材料ABS性能17
4模具设计19
4.1拟定模具结构设计19
4.1.1分型面位置的确定19
4.2确定型腔数量及排列方式20
4.3模具结构形式的确定21
4.4注射机型号的确定21
4.5浇注系统、关键零部件设计26
4.5.1浇注系统形式和浇口的设计26
4.5.2分型面设计30
4.5.3成型零件设计30
4.5.4排气系统的设计33
4.5.5温度调节系统设计33
4.5.6脱模机构的设计36
4.6.侧向抽芯机构类型选择39
斜导柱侧向抽芯机构设计计算40
4.7模架的确定44
5总结46
5.1模具设计过程体会46
5.2设计存在问题及解决设想46
参考文献47
致谢48
温馨提示:
1、题目前面的备注【字母数字编号】为本站整理分类的编号,与课题内容无关,请选题时忽视;
2、若题目上备注三维,则表示文件里包含三维源文件,由于三维组成零件数量较多,为保证预览截图的简洁性,本站将三维文件夹进行了打包。三维及CAD预览截图,均为本站电脑打开软件进行截图的,保证能够打开,下载原件超高清,下载后解压即可;
3、本站所有资源如无特殊说明,都需要本地电脑安装Office2007。图纸软件为AutoCAD,PROE,UG,SolidWorks,CATIA等;
4、本站所有图文资料仅供用户学习参考,不作为任何商用或其他用途;
5、本站不保证下载资源的准确性、安全性和完整性, 不包修改,不支持退换,同时也不承担用户因使用这些下载资源对自己和他人造成任何形式的伤害或损失;
6、 下载文件中如有侵权或不适当内容,请与我们联系,我们立即纠正。