

作品包括:
Word版说明书1份,共65页,约20000字
PPT答辩一份
开题报告一份
外文翻译一份
CAD版本图纸,共7张
Proe三维图一份

摘要
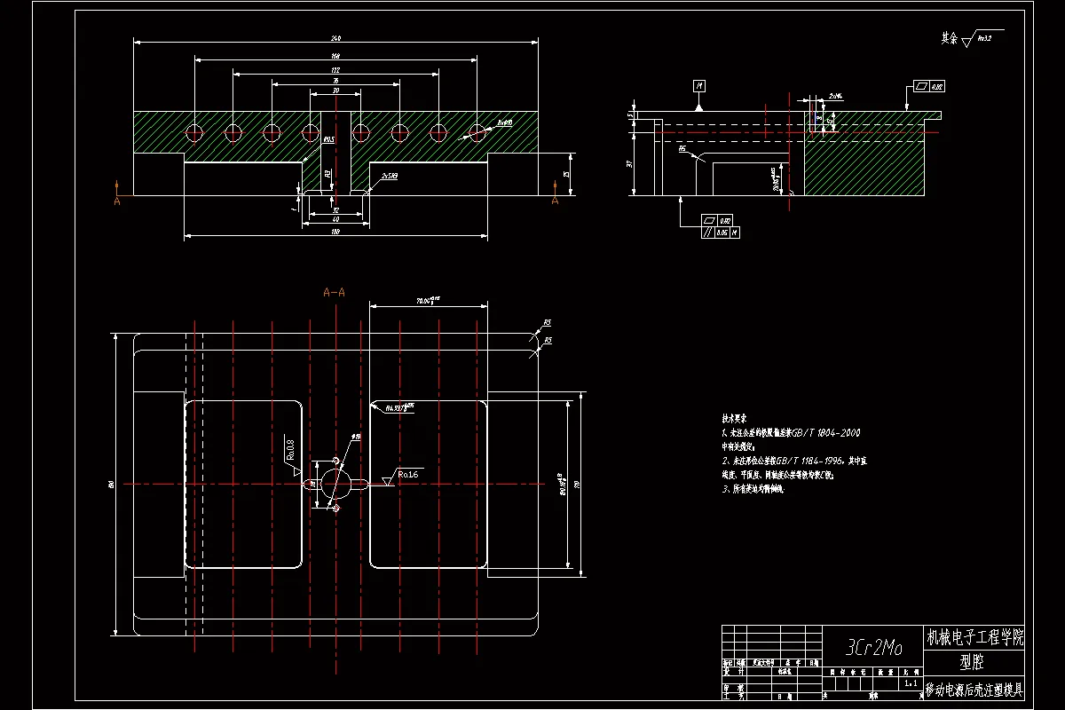
本设计介绍了以丙烯腈-丁二烯-苯乙烯共聚物(ABS)为材料的移动电源后壳注塑模具的设计过程。塑件形状为矩形,内部有加强筋,一边侧壁有孔,其要求它具有耐光,耐化学腐蚀、耐磨。由于塑件侧壁有孔,要求模具必需采用斜导柱侧抽芯机构分型。设计过程中用MoldFlow软件进行模流分析,用Pro/E软件进行三维图的绘制,然后转入Auto CAD绘制完整的模具装配总图和主要的各种模具零部件及编制成型零部件的制造加工工艺。
此模具在设计时,充分考虑了生产批量、以提高生产效率、降低生产成本为主要宗旨。在设计过程中,最主要的是确定型芯和型腔的结构,此外还分析了模具受力,脱模结构的设计、合模导向机构的设计、冷却系统的设计等,重点是一模两腔的注射模具结构、侧向抽芯机构和多杆顶出机构,实现自动复位。在设计时合理选择模具材料,在保证达到强度要求和节省成本的基础上提高生产效率。
关键词:移动电源后壳;塑料注塑模;模流分析;注塑模具结构
目录
摘要I
Abstract II
1绪论1
1.1注塑模具基本概念1
1.2注塑成型原理1
1.3注塑模具的现状2
1.4注塑模具的发展趋势3
1.5选题的依据和方向3
2塑件的工艺性分析5
2.1塑件的原材料分析5
2.2塑件的结构、尺寸精度和表面质量分析7
2.3计算塑件的体积和质量8
2.4注塑机的概述8
2.5注塑机的选择9
2.6本章小结10
3 MOLDFLOW模流分析11
3.1浇口位置分析11
3.2成型窗口分析12
3.3充填过程模拟分析13
3.4流动分析17
3.5冷却分析19
3.6翘曲分析21
3.7本章小结24
4注射模的结构设计25
4.1分型面选择25
4.2确定型腔的排列方式26
4.3浇注系统的设计26
4.4侧向抽芯机构的设计32
4.5合模导向机构的设计37
4.6脱模顶出机构的设计39
4.7本章小结40
5模具设计的有关计算41
5.1成型零件工作尺寸的计算41
5.2型腔侧壁厚度和底板厚度的计算45
5.3模具加热和冷却系统的计算47
5.4排气系统设计48
5.5模具闭合高度的确定49
5.6本章小结49
6注塑机参数的校核50
6.1最大注塑量的校核50
6.2注塑压力校核50
6.3锁模力的校核51
6.4模具闭合高度的校核51
6.5开模行程的校核52
7绘制模具总装图53
8总结56
8.1经济性分析56
8.2设计总结59
参考文献64
致谢65
温馨提示:
1、题目前面的备注【字母数字编号】为本站整理分类的编号,与课题内容无关,请选题时忽视;
2、若题目上备注三维,则表示文件里包含三维源文件,由于三维组成零件数量较多,为保证预览截图的简洁性,本站将三维文件夹进行了打包。三维及CAD预览截图,均为本站电脑打开软件进行截图的,保证能够打开,下载原件超高清,下载后解压即可;
3、本站所有资源如无特殊说明,都需要本地电脑安装Office2007。图纸软件为AutoCAD,PROE,UG,SolidWorks,CATIA等;
4、本站所有图文资料仅供用户学习参考,不作为任何商用或其他用途;
5、本站不保证下载资源的准确性、安全性和完整性, 不包修改,不支持退换,同时也不承担用户因使用这些下载资源对自己和他人造成任何形式的伤害或损失;
6、 下载文件中如有侵权或不适当内容,请与我们联系,我们立即纠正。