

作品包括:
Word版说明书1份,共37页,约13000字
开题报告一份
PPT答辩一份
CAD版本图纸,共11张
UG三维图一份

摘要
塑料注射模具是成型塑料的一种重要工艺装备,通过对PSP游戏机上盖塑料模具设计,能够全面的了解塑料模具设计的基本原则、方法.并能较为熟练的使用UG、AUTOCAD软件进行塑料模具设计,提高自己的绘图能力。为今后从事设计工作打下了坚实的基矗
随着现代工业发展的需要,塑料制品在工业、农业、日常生活和军事等各个领域的应用范围越来越广,质量要求也越来越高,中国已经成为全球最大的塑料市场之一,塑料制品产量全球第二。
本次主要设计是对PSP游戏机上盖注射模的设计,重点对塑件的成型原理、原料选用和注射技术进行分析。通过根据形状、尺寸、精度及表面质量要求的分析结果,确定所需的模塑成型方案,制品的后加工、分型面的选择、型腔的数目和排列、成型零件的结构、浇注系统等。
关键词:工艺方案;模具结构;注塑机;模具设计
目录
摘要II
Abstract III
1绪论1
1.1前言1
1.2模具发展现状及发展方向1
1.2.1国内外注塑模具的发展现状1
1.2.2国内外注塑模具的发展趋向2
2塑料制品分析4
2.1明确制品设计要求4
2.2明确制品批量4
2.3材料选择及性能4
2.3.1材料选择4
2.3.2材料品种4
2.4成型设备5
2.5拔模斜度5
2.6计算制品的体积和质量5
2.6.1表面质量的分析5
2.6.2塑件的体积重量5
3注射机及成型方案的确定7
3.1注射机的确定7
3.2成型方案的确定7
3.2.1成型设备的选择7
3.2.2成型的特点8
3.2.3成型的原理8
3.2.4成型过程8
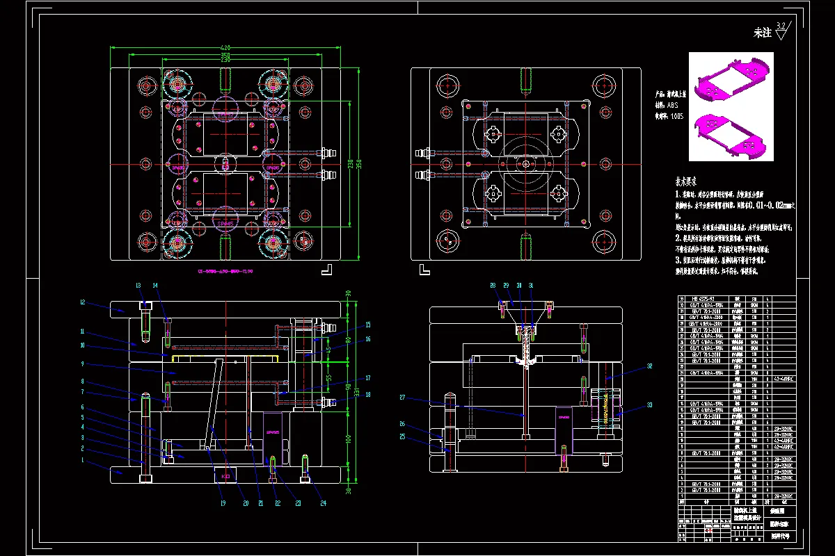
4型腔数的确定及分型面的选择9
4.1型腔数的确定9
4.2分型面的选择9
4.2.1分型面的主要选择原则9
4.3确定型腔的排列方式11
4.4标准模架的选用12
4.3模架装配图12
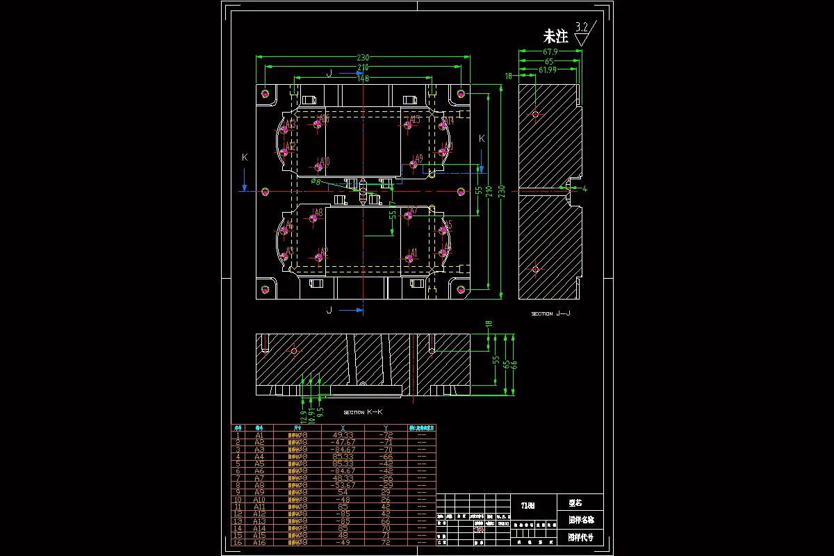
5成型零部件的设计与计算13
5.1凸模设计13
5.2凹模的设计13
5.3成型零件工作尺寸的计算14
6浇注系统的设计17
6.1主流道设计17
6.2浇口的设计17
7排气与冷却系统的设计19
7.1冷却系统设计的原则19
7.2冷却水路的计算19
7.3排气系统的设计20
8顶出机构的设计22
8.1推杆复位装置22
8.2推件机构的设计22
8.2推杆长度的计算23
8.3斜推杆的设计24
8.4斜推杆的设计要点24
8.5斜推杆倾斜角的确定25
9导向机构的设计27
9.1导向、定位机构的主要功能27
9.2导向机构的设计27
9.2.1导柱的设计27
9.2.2导套的设计27
10模具材料的选用29
10.1成型零件材料选用29
10.2注射模用钢种29
总结30
致谢31
参考文献32
温馨提示:
1、题目前面的备注【字母数字编号】为本站整理分类的编号,与课题内容无关,请选题时忽视;
2、若题目上备注三维,则表示文件里包含三维源文件,由于三维组成零件数量较多,为保证预览截图的简洁性,本站将三维文件夹进行了打包。三维及CAD预览截图,均为本站电脑打开软件进行截图的,保证能够打开,下载原件超高清,下载后解压即可;
3、本站所有资源如无特殊说明,都需要本地电脑安装Office2007。图纸软件为AutoCAD,PROE,UG,SolidWorks,CATIA等;
4、本站所有图文资料仅供用户学习参考,不作为任何商用或其他用途;
5、本站不保证下载资源的准确性、安全性和完整性, 不包修改,不支持退换,同时也不承担用户因使用这些下载资源对自己和他人造成任何形式的伤害或损失;
6、 下载文件中如有侵权或不适当内容,请与我们联系,我们立即纠正。