

作品包括:
Word版说明书1份,共39页,约15000字
CAD版本图纸,共10张
UG三维图一份


摘要
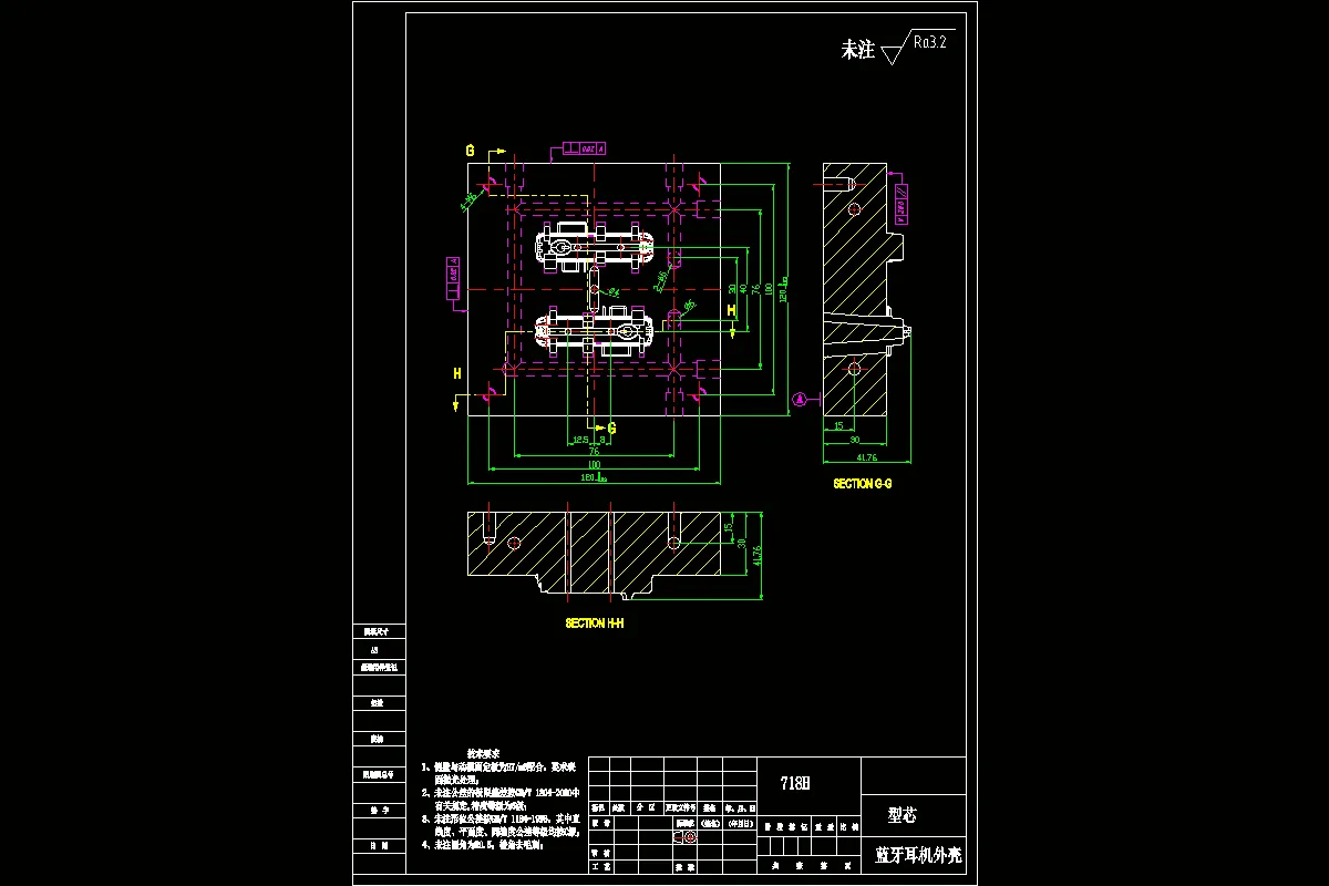
此以蓝牙耳机外壳为设计模型,以塑胶模具设计与制造,模具加工工艺的相关知识作为依据,讲述整个蓝牙耳机外壳注塑模具设计过程。设计初期首先使用UG软件进行蓝牙耳机外壳的实体造型。然后分析得到最佳注射点和注射方式。最后明确设计思路,确定成型工艺。模具结构可采用一模两腔,侧浇口进料,注射机采用海天80×A型号,并对其相关的数据进行校核。首先根据UG软件设计出分型面,进而设计出型腔、型芯。通过各种手册选择标准模架的绘制,并且进行分型面的选择、浇注系统、脱模机构、冷却系统、标准模架的选用等模具重要结构的设计。塑件内部倒扣可采用斜顶抽芯机构,利用推出机构的推力驱动斜导柱斜向运动,在制品被推出脱模的同时由斜导柱完成侧向抽芯动作。
此结构可确保模具工作运行平稳并保证配件之间的配合精度,通过对蓝牙耳机外壳注塑模具的设计,帮助我总结并深化了所学的模具设计,模具加工工艺的相关知识,达到了我的设计意图。
关键词:蓝牙耳机外壳;注塑模具;一模两腔;侧浇口;注射机;型腔;型芯
目录
摘要I
Abstract II
前言1
1塑件的材料及工艺分析2
1.1塑件的材料分析3
1.2塑件的结构设计4
1.3塑件尺寸及精度5
1.4塑件表面粗糙度5
2注射成型工艺方案6
2.1注射成型工艺过程分析6
2.2浇口种类的确定7
2.3型腔数目的确定7
2.4注射机的选择和校核7
2.4.1注射量的校核8
2.4.2塑件在分型面上的投影面积与锁模力的校核8
2.4.3模具与注射机安装模具部分相关尺寸校核9
3注射模具结构设计11
3.1分型面的设计11
3.2型腔的布局12
3.3浇注系统的设计12
3.3.1浇注系统组成12
3.3.2确定浇注系统的原则12
3.3.4分流道的设计15
3.3.5浇口的设计15
3.3.6冷料穴的设计16
3.4注射模成型零部件的设计[7] 16
3.4.1成型零部件工作尺寸的计算16
3.4.2成型零部件结构设计17
3.5排气结构设计21
3.6脱模机构的设计21
3.6.1脱模机构的选用原则21
3.6.2脱模机构类型的选择22
3.6.3顶杆和斜顶机构具体设计22
3.7注射模温度调节系统23
3.7.1温度调节对塑件质量的影响23
3.7.2冷却系统之设计规则24
3.8模架的选用24
3.9侧向抽芯机构类型选择26
3.10斜顶的设计28
4模具材料的选用32
4.1成型零件材料选用32
4.2注射模用钢种32
5注塑模工作原理33
总结34
致谢34
参考文献35
温馨提示:
1、题目前面的备注【字母数字编号】为本站整理分类的编号,与课题内容无关,请选题时忽视;
2、若题目上备注三维,则表示文件里包含三维源文件,由于三维组成零件数量较多,为保证预览截图的简洁性,本站将三维文件夹进行了打包。三维及CAD预览截图,均为本站电脑打开软件进行截图的,保证能够打开,下载原件超高清,下载后解压即可;
3、本站所有资源如无特殊说明,都需要本地电脑安装Office2007。图纸软件为AutoCAD,PROE,UG,SolidWorks,CATIA等;
4、本站所有图文资料仅供用户学习参考,不作为任何商用或其他用途;
5、本站不保证下载资源的准确性、安全性和完整性, 不包修改,不支持退换,同时也不承担用户因使用这些下载资源对自己和他人造成任何形式的伤害或损失;
6、 下载文件中如有侵权或不适当内容,请与我们联系,我们立即纠正。